2123 Serenity Ln, Arlington, TX 76015
Local realty services provided by:CENTURY 21 Middleton
2123 Serenity Ln,Arlington, TX 76015
$353,990
- 4 Beds
- 3 Baths
- 1,750 sq. ft.
- Single family
- Active
Listed by: kristapher haney512-868-1771
Office: keller williams realty lone st
MLS#:21182492
Source:GDAR
Price summary
- Price:$353,990
- Price per sq. ft.:$202.28
- Monthly HOA dues:$83.33
About this home
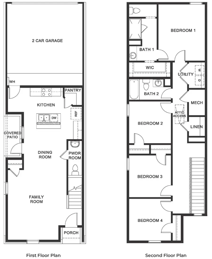
The Concord plan by D.R. Horton in the California Meadows community in Arlington, Texas, offers a modern and spacious two-story home with approximately 1,750 sq. ft. of living space. This home includes 4 bedrooms, 2.5 bathrooms, and a 2-car garage. A welcoming front porch and entry leading into an open-concept layout that seamlessly connects the dining, living, and kitchen areas, ideal for both family time and entertaining guests. A well-appointed kitchen featuring painted cabinetry, a generous walk-in pantry, quartz countertops, a large island, stainless steel appliances with gas cooking range. The dining room opens to a relaxing outdoor covered patio, providing a perfect space for outdoor enjoyment. A convenient powder bath located off the kitchen for guests' use. Vinyl flooring throughout the foyer, dining, kitchen, and family room, bathrooms, and utility room. Upstairs, the spacious Bedroom 1 suite provides a private retreat with quartz countertops, walk-in shower, a walk-in closet, and a private bathroom. Three additional bedrooms and a secondary bathroom provide ample space for family and guests. The laundry room is conveniently located upstairs. You’ll also enjoy smart home features, from your couch or from 500 miles away. You’ll never be too far from home with America’s smart home. The Concord plan offers a blend of comfort and style, ideal for families looking for a spacious home....
Contact an agent
Home facts
- Year built:2026
- Listing ID #:21182492
- Added:44 day(s) ago
- Updated:April 03, 2026 at 11:47 AM
Rooms and interior
- Bedrooms:4
- Total bathrooms:3
- Full bathrooms:2
- Half bathrooms:1
- Flooring:Carpet, Ceramic Tile, Laminate
- Kitchen Description:Dishwasher, Disposal, Gas Oven, Gas Range, Microwave, Vented Exhaust Fan, Water Purifier
- Living area:1,750 sq. ft.
Heating and cooling
- Cooling:Ceiling Fans, Electric, Heat Pump
- Heating:Heat Pump
Structure and exterior
- Roof:Composition
- Year built:2026
- Building area:1,750 sq. ft.
- Lot area:0.06 Acres
- Lot Features:Corner Lot, Interior Lot
- Architectural Style:Traditional
- Construction Materials:Brick, Fiber Cement, Stone
- Foundation Description:Slab
- Levels:2 Story
Schools
- High school:Arlington
- Elementary school:Short
Finances and disclosures
- Price:$353,990
- Price per sq. ft.:$202.28
Features and amenities
- Appliances:Dishwasher, Disposal, Gas Oven, Gas Range, Microwave, Tankless Water Heater, Vented Exhaust Fan, Water Purifier
- Amenities:Carbon Monoxide Detectors, Smoke Detectors
- Smart home:Yes
Parking
- Garage:Yes
- Garage spaces:2
New listings near 2123 Serenity Ln
- New
$285,000Active3 beds 2 baths1,250 sq. ft.809 Castleview Drive, Arlington, TX 76001
MLS# 21228017Listed by: JPAR WEST METRO - New
$464,990Active4 beds 3 baths2,502 sq. ft.4921 Angus Drive, Arlington, TX 76001
MLS# 21226936Listed by: CENTURY 21 MIKE BOWMAN, INC. - New
$477,990Active4 beds 3 baths2,832 sq. ft.6873 Brahman Drive, Arlington, TX 76001
MLS# 21227027Listed by: CENTURY 21 MIKE BOWMAN, INC. - New
$500,000Active5 beds 4 baths2,980 sq. ft.6111 Sandstone Drive, Arlington, TX 76001
MLS# 21218242Listed by: KELLER WILLIAMS LONESTAR DFW - Open Sat, 12 to 2pmNew
$498,000Active4 beds 3 baths3,332 sq. ft.905 Live Oak Lane, Arlington, TX 76012
MLS# 21218366Listed by: KELLER WILLIAMS LEGACY - New
$390,000Active4 beds 3 baths2,156 sq. ft.5206 Boyd Trail, Arlington, TX 76017
MLS# 21223856Listed by: KELLER WILLIAMS LONESTAR DFW - New
$99,000Active1 beds 1 baths486 sq. ft.2312 Balsam Drive #A303, Arlington, TX 76006
MLS# 21225139Listed by: BEVANS REAL ESTATE - New
$430,000Active4 beds 2 baths2,234 sq. ft.1401 Allegheny Drive, Arlington, TX 76012
MLS# 21225219Listed by: EBBY HALLIDAY, REALTORS - New
$260,000Active2 beds 2 baths1,172 sq. ft.2425 Esquire Drive, Arlington, TX 76018
MLS# 21226793Listed by: COLDWELL BANKER APEX, REALTORS - New
$320,000Active3 beds 2 baths1,715 sq. ft.3100 Wintersmith Drive, Arlington, TX 76014
MLS# 21226845Listed by: KELLER WILLIAMS CENTRAL