3624 N Fitzhugh Avenue, Dallas, TX 75204
Local realty services provided by:CENTURY 21 Gold Coat Realtors
Listed by: brent king
Office: brent king group
MLS#:21196762
Source:GDAR
Price summary
- Price:$4,250,000
- Price per sq. ft.:$812.46
About this home
Stunning Custom Home with Elevator Access and Amenities one block to Katy Trail and Turtle Creek! - Will be completed end of April.
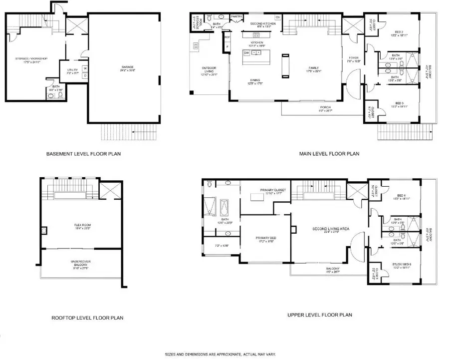
Welcome to your dream home, an exquisite custom masterpiece with luxury living across multiple floors. This architectural gem boasts an elevator that transports you from the expansive lower floor, where you'll find a spacious 3 car garage, living, storage, half bath, to each beautifully designed level.
As you step inside, the 1st floor invites you into an elegant living area, where natural light dances through the windows. This level features 2 generously sized bedrooms and 2 full bathrooms. The heart of the home, an extraordinary kitchen with a 2nd catering kitchen, showcases unique features. Enjoy the warmth of the see through fireplace or take your entertaining outdoors with direct access to the pool and patio area with grill and drop down screens, complete with a convenient half-bath for poolside and guest convenience.
Ascend to the next floor, where you'll discover another 2 bedrooms and 2 full bathrooms, alongside a luxurious master suite that epitomizes relaxation. The master bedroom offers a full bath suite and a spacious walk-in closet, thoughtfully designed with a 2nd laundry area for your convenience. An office nook, tucked away, provides the perfect space for productivity or quiet reflection.
Venture to the top floor and enjoy a versatile space ready to fit your lifestyle, whether as an exercise or yoga room, a game room, or a tranquil retreat.
Step out onto the large balcony, an ideal spot for morning coffee or evening sunsets.
Located just steps away from the scenic Katy Trail and Turtle Creek, this home offers not only luxury, but also the perfect blend of city living and nature. Experience the best of both worlds in this unparalleled residence that promises to elevate your lifestyle.
Don’t miss your chance to own this extraordinary home that truly has it all!
Schedule your private tour today...
Contact an agent
Home facts
- Year built:2026
- Listing ID #:21196762
- Added:514 day(s) ago
- Updated:April 25, 2026 at 11:46 AM
Rooms and interior
- Bedrooms:5
- Total bathrooms:7
- Full bathrooms:5
- Half bathrooms:2
- Flooring:Carpet, Tile, Wood
- Kitchen Description:Built In Refrigerator, Dishwasher, Disposal, Gas Cooktop, Gas Oven, Microwave
- Basement:Yes
- Living area:5,231 sq. ft.
Heating and cooling
- Cooling:Ceiling Fans, Central Air, Electric
- Heating:Fireplaces, Natural Gas
- Central air:Yes
Structure and exterior
- Roof:Metal
- Year built:2026
- Building area:5,231 sq. ft.
- Lot area:0.17 Acres
- Lot Features:Few Trees, Interior Lot
- Construction Materials:Brick, Stucco
- Foundation Description:Combination, Pillar Post Pier, Slab
Schools
- High school:North Dallas
- Middle school:Spence
- Elementary school:Milam
Finances and disclosures
- Price:$4,250,000
- Price per sq. ft.:$812.46
Features and amenities
- Appliances:Built In Refrigerator, Dishwasher, Disposal, Gas Cooktop, Gas Oven, Gas Water Heater, Microwave, Tankless Water Heater
- Amenities:Smoke Detectors
Parking
- Garage:Yes
- Garage spaces:3
New listings near 3624 N Fitzhugh Avenue
- New
$399,000Active2 beds 2 baths1,264 sq. ft.414 N Montreal Avenue, Dallas, TX 75208
MLS# 21246060Listed by: KELLER WILLIAMS REALTY - New
$399,000Active1 beds 1 baths1,264 sq. ft.412 N Montreal Avenue, Dallas, TX 75208
MLS# 21247041Listed by: KELLER WILLIAMS REALTY - New
$525,000Active3 beds 1 baths1,080 sq. ft.4811 Belmont Avenue, Dallas, TX 75204
MLS# 21249028Listed by: EXP REALTY LLC - New
$349,500Active2 beds 3 baths1,569 sq. ft.543 Josephine Street, Dallas, TX 75246
MLS# 21249461Listed by: COMPASS RE TEXAS, LLC - New
$569,000Active4 beds 3 baths2,235 sq. ft.2014 White Grove Drive, Dallas, TX 75228
MLS# 21250487Listed by: JPAR NORTH METRO - New
$165,000Active3 beds 1 baths904 sq. ft.2319 Kathleen Avenue, Dallas, TX 75216
MLS# 21250668Listed by: CRESCENT REAL ESTATE GROUP-DFW - New
$300,000Active0.99 Acres2401 Gibbs Williams Road, Dallas, TX 75233
MLS# 21250724Listed by: ULTIMA REAL ESTATE - Open Sun, 12 to 3pmNew
$995,000Active3 beds 2 baths2,280 sq. ft.5552 Belmont Avenue, Dallas, TX 75206
MLS# 21238383Listed by: BRAY REAL ESTATE GROUP- DALLAS - New
$179,950Active3 beds 2 baths1,696 sq. ft.4926 Rand, Dallas, TX 75216
MLS# 21250609Listed by: APLOMB REAL ESTATE - Open Sun, 1 to 3pmNew
$385,000Active4 beds 2 baths1,751 sq. ft.2970 Sundial Drive, Dallas, TX 75229
MLS# 21250623Listed by: EXP REALTY