3841 Canada Drive, Dallas, TX 75212
Local realty services provided by:CENTURY 21 Gold Coat Realtors
Listed by: hai hoang214-449-2840
Office: monument realty
MLS#:21150452
Source:GDAR
Price summary
- Price:$719,000
- Price per sq. ft.:$263.18
About this home
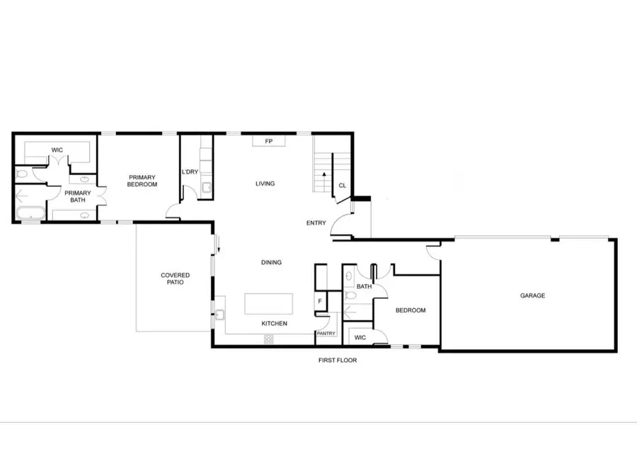
Introducing the newest statement home from Modish Custom Homes, thoughtfully designed for buyers who expect more than builder grade finishes and ordinary layouts! This is not just new construction, it is a carefully crafted home where modern architecture meets everyday livability and elevated detail at every turn. New construction by Modish Custom Homes offering modern design, functional layout and high quality upgrades throughout. This 4 bedroom, 3.5 bath home delivers 2,732 sqft of open concept living with an estimated completion of April 2026.
Notable features and upgrades include:
• Striking 4 foot wide metal and glass pivot front door
• 8 foot solid core interior doors throughout
• Electric linear fireplace in main living area
• Open concept kitchen with an extended island
• Walk in pantry plus dedicated butler’s pantry
• ZLINE appliance package
• Private primary suite on main level
• Guest Wing located on main level that's ideal for guests or multigenerational living
• Study-flex space with open overlook
• Secret hidden room
• Oversized 3 car garage
• EVSE interface for Level 2 charging
• Tankless water heater with recirculation pump
• Extensive LED lighting elements throughout
• Oversized covered patio for indoor outdoor living
• Private balcony
• Bidet ready outlets behind toilets
• Deep lot with expansive backyard potential.
Early opportunities available. Seller’s preferred lender is offering a 1% lender credit to go towards buyer’s closing costs or an interest rate buy down. Secure this home early and take advantage of pre completion momentum while selections and strategy still matter! Built with intention, positioned for impact and designed to stand apart, this is your opportunity to own a Modish Custom Homes original before it ever officially hits full market presence!...
Contact an agent
Home facts
- Year built:2026
- Listing ID #:21150452
- Added:45 day(s) ago
- Updated:April 03, 2026 at 07:36 AM
Rooms and interior
- Bedrooms:4
- Total bathrooms:4
- Full bathrooms:3
- Half bathrooms:1
- Flooring:Luxury Vinyl Plank, Tile
- Kitchen Description:Dishwasher, Disposal, Gas Cooktop, Microwave, Vented Exhaust Fan
- Living area:2,732 sq. ft.
Heating and cooling
- Cooling:Ceiling Fans, Electric
- Heating:Central, Electric, Fireplaces
Structure and exterior
- Roof:Composition
- Year built:2026
- Building area:2,732 sq. ft.
- Lot area:0.25 Acres
- Lot Features:Few Trees, Interior Lot, Landscaped
- Foundation Description:Slab
- Levels:2 Story
Schools
- High school:Nimitz
- Middle school:Bowie
- Elementary school:Schulze
Finances and disclosures
- Price:$719,000
- Price per sq. ft.:$263.18
- Tax amount:$2,254
Features and amenities
- Appliances:Dishwasher, Disposal, Gas Cooktop, Microwave, Plumbed For Gas, Some Gas Appliances, Vented Exhaust Fan
- Amenities:Carbon Monoxide Detectors
Parking
- Garage:Yes
- Garage spaces:3
New listings near 3841 Canada Drive
- New
$924,900Active4 beds 4 baths2,917 sq. ft.3824 Waldorf Circle, Dallas, TX 75229
MLS# 21223147Listed by: COMPASS RE TEXAS, LLC - New
$695,000Active3 beds 5 baths2,354 sq. ft.730 Spanish Oaks Place, Dallas, TX 75204
MLS# 21225850Listed by: COMPASS RE TEXAS, LLC - New
$974,900Active4 beds 4 baths3,250 sq. ft.5609 Bent Creek Trail, Dallas, TX 75252
MLS# 21226954Listed by: BRIAN THOMAS REAL ESTATE - New
$560,000Active3 beds 3 baths2,614 sq. ft.11104 Manorview Circle, Dallas, TX 75228
MLS# 21227715Listed by: CITIWIDE PROPERTIES CORP. - New
$264,900Active4 beds 2 baths1,323 sq. ft.9620 Dale Glade Drive, Dallas, TX 75217
MLS# 21227883Listed by: KAREN COLLINS - New
$1,250,000Active4 beds 3 baths2,380 sq. ft.6645 Lange Circle, Dallas, TX 75214
MLS# 21227891Listed by: MUSTANG REALTY GROUP - New
$240,000Active3 beds 2 baths1,114 sq. ft.2831 W Clarendon Drive, Dallas, TX 75211
MLS# 21227906Listed by: REFIND REALTY DFW - New
$309,900Active4 beds 2 baths1,582 sq. ft.1811 Vatican Lane, Dallas, TX 75224
MLS# 21227948Listed by: EXP REALTY LLC - New
$820,000Active4 beds 3 baths2,452 sq. ft.4106 Walnut Hill Lane, Dallas, TX 75229
MLS# 21227983Listed by: OPENDOOR BROKERAGE, LLC
$700,000Pending3 beds 2 baths1,635 sq. ft.9836 Lanshire Drive, Dallas, TX 75238
MLS# 21227953Listed by: COMPASS RE TEXAS, LLC