4091 Lava Forest Drive, Dallas, TX 75241
Local realty services provided by:CENTURY 21 Gold Coat Realtors
Listed by: mona hill281-362-8998
Office: lgi homes
MLS#:20955426
Source:GDAR
Price summary
- Price:$323,900
- Price per sq. ft.:$199.08
- Monthly HOA dues:$35
About this home
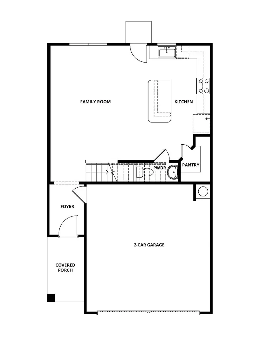
Jaguar – 2 story, 3-bed, 2.5 bath, 1,627 sqft! The spacious, two-story Jaguar offers three bedrooms and two-and-a-half baths. The Jaguar plan has a thoughtfully designed, open layout on the main floor with the family room opening to the dining area and kitchen. Highlighted by great natural light and vinyl-plank flooring, this space is the ideal backdrop for creating lasting family memories. In the private master suite, enjoy peaceful back yard views and plenty of space for your king-sized furniture. Additionally, the en-suite master bath offers a beautiful vanity with great storage, an extended shower and a huge walk-in closet. The Jaguar plan features incredible upgrades spread throughout the home at no extra cost to you. From the covered front porch that welcomes you into the home to the beautiful kitchen island, every aspect of this home was handpicked with families in mind.
Contact an agent
Home facts
- Year built:2025
- Listing ID #:20955426
- Added:197 day(s) ago
- Updated:December 17, 2025 at 09:36 AM
Rooms and interior
- Bedrooms:3
- Total bathrooms:3
- Full bathrooms:2
- Half bathrooms:1
- Living area:1,627 sq. ft.
Heating and cooling
- Cooling:Ceiling Fans, Central Air, Electric
- Heating:Central, Electric, Natural Gas
Structure and exterior
- Roof:Composition
- Year built:2025
- Building area:1,627 sq. ft.
- Lot area:0.11 Acres
Schools
- High school:Wilmerhutc
- Middle school:Kennedy
- Elementary school:Ervin
Finances and disclosures
- Price:$323,900
- Price per sq. ft.:$199.08
New listings near 4091 Lava Forest Drive
- New
$295,000Active3 beds 2 baths1,594 sq. ft.6439 Lazy River Drive, Dallas, TX 75241
MLS# 21104957Listed by: IMAGE REALTY - New
$215,000Active0.18 Acres3515 Wendelkin Street, Dallas, TX 75215
MLS# 21134324Listed by: TEXAS INVESTORS REALTY - New
$215,000Active3 beds 2 baths1,682 sq. ft.3828 Kimball Ridge Drive, Dallas, TX 75233
MLS# 21134300Listed by: THE REAL ESTATE COMPANY - New
$1,399,000Active4 beds 7 baths3,137 sq. ft.10314 Country Club Drive, Dallas, TX 75218
MLS# 21131832Listed by: MONUMENT REALTY - New
$1,350,000Active3 beds 4 baths2,945 sq. ft.6943 Wildgrove Avenue, Dallas, TX 75214
MLS# 21133911Listed by: ALLIE BETH ALLMAN & ASSOC. - New
$92,000Active2 beds 1 baths784 sq. ft.8112 Arlene Lane, Dallas, TX 75217
MLS# 21134239Listed by: BRADFORD ELITE REAL ESTATE LLC - New
$459,000Active3 beds 2 baths1,854 sq. ft.2316 Daybreak Drive, Dallas, TX 75287
MLS# 21130100Listed by: CORNERSTONE REALTY GROUP, LLC - New
$145,000Active2 beds 2 baths615 sq. ft.2930 Alabama Avenue, Dallas, TX 75216
MLS# 21131614Listed by: VETERAN REALTY GROUP - New
$359,000Active3 beds 2 baths1,544 sq. ft.2512 Harbinger Lane, Dallas, TX 75287
MLS# 21131629Listed by: COLDWELL BANKER APEX, REALTORS - New
$1,550,000Active4 beds 4 baths3,020 sq. ft.5938 Goliad Avenue, Dallas, TX 75206
MLS# 21132284Listed by: COMPASS RE TEXAS, LLC