603 Bardfield Avenue, Garland, TX 75041
Local realty services provided by:CENTURY 21 Judge Fite Company
603 Bardfield Avenue,Garland, TX 75041
$695,000
- 4 Beds
- 4 Baths
- 2,750 sq. ft.
- Single family
- Active
Listed by: meagan jiles
Office: meagan jiles, broker
MLS#:21196049
Source:GDAR
Price summary
- Price:$695,000
- Price per sq. ft.:$252.73
About this home
Experience refined living in this stunning 2,750 sq ft new construction residence in Garland, just 20 minutes from downtown Dallas. Currently under construction, this architectural showpiece blends sophisticated design with elevated finishes, offering the rare opportunity to own a custom-feel home in a prime, convenient location.
At the heart of the home, the gourmet chef’s kitchen is designed to impress and inspire. Exquisite quartzite countertops cascade across an oversized statement island, complemented by designer lighting, premium stainless steel appliances, and a gas cooktop. The expansive butler’s pantry enhances both beauty and function, featuring additional atorage, a microwave, generous custom cabinetry, and exceptional prep space, perfect for effortless entertaining.
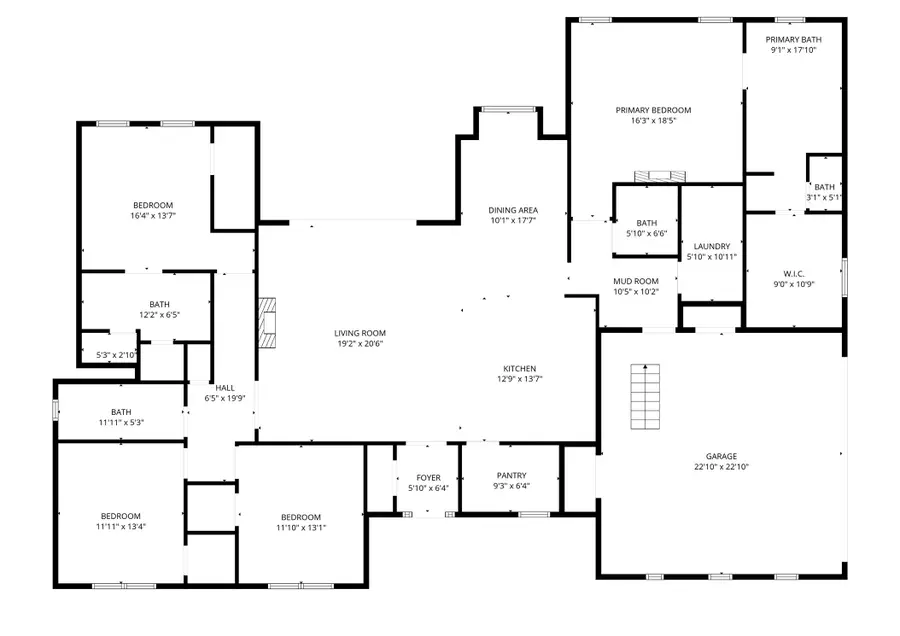
Designed with privacy and comfort in mind, this home offers four spacious bedrooms, along with a beautifully appointed powder room for guests. The primary suite is a true sanctuary, featuring spa-inspired finishes, dual vanities, a freestanding soaking tub, an oversized walk-in shower, and a custom-designed walk-in closet that delivers both luxury and organization.
Thoughtfully curated details, expansive living areas, and modern elegance throughout make this home a standout. With its generous footprint, high-end craftsmanship, and proximity to the vibrancy of Dallas, this residence offers the perfect balance of luxury, comfort, and convenience....
Contact an agent
Home facts
- Year built:2026
- Listing ID #:21196049
- Added:55 day(s) ago
- Updated:April 28, 2026 at 11:46 AM
Rooms and interior
- Bedrooms:4
- Total bathrooms:4
- Full bathrooms:3
- Half bathrooms:1
- Flooring:Carpet, Luxury Vinyl Plank
- Kitchen Description:Dishwasher, Disposal, Gas Range, Ice Maker, Microwave, Some Commercial Grade
- Living area:2,750 sq. ft.
Heating and cooling
- Cooling:Central Air
- Heating:Central
- Central air:Yes
Structure and exterior
- Roof:Composition
- Year built:2026
- Building area:2,750 sq. ft.
- Lot area:0.4 Acres
- Foundation Description:Brick Mortar, Slab
- Levels:1 Story
Schools
- High school:Choice Of School
- Middle school:Choice Of School
- Elementary school:Choice Of School
Finances and disclosures
- Price:$695,000
- Price per sq. ft.:$252.73
- Tax amount:$1,676
Features and amenities
- Appliances:Dishwasher, Disposal, Dryer, Gas Range, Ice Maker, Microwave, Range, Some Commercial Grade
- Laundry features:Dryer
- Amenities:Carbon Monoxide Detectors, Fire Alarm
Parking
- Garage:Yes
- Garage spaces:2
- Carport spaces:2
New listings near 603 Bardfield Avenue
- New
$429,000Active4 beds 3 baths2,964 sq. ft.1209 Crabtree Street, Garland, TX 75040
MLS# 21240114Listed by: CITIWIDE PROPERTIES CORP. - New
$355,000Active3 beds 2 baths1,544 sq. ft.2414 Mapleridge Drive, Garland, TX 75044
MLS# 21252408Listed by: COMPASS RE TEXAS, LLC. - New
$315,000Active4 beds 2 baths1,475 sq. ft.2129 Richbrook Drive, Garland, TX 75044
MLS# 21137427Listed by: KELLER WILLIAMS REALTY - New
$249,000Active3 beds 2 baths1,014 sq. ft.2906 Nova Drive, Garland, TX 75044
MLS# 21252425Listed by: HOMESMART - New
$315,000Active4 beds 2 baths1,650 sq. ft.922 Meadowdale Circle, Garland, TX 75043
MLS# 21251500Listed by: UNITED REAL ESTATE - New
$179,000Active3 beds 1 baths828 sq. ft.808 Lilac Drive, Garland, TX 75040
MLS# 21251738Listed by: MARK SPAIN REAL ESTATE - New
$270,000Active3 beds 2 baths1,568 sq. ft.302 Independence Drive, Garland, TX 75043
MLS# 21252007Listed by: BEYCOME BROKERAGE REALTY LLC - New
$399,900Active3 beds 2 baths2,033 sq. ft.2325 Lancecrest Drive, Garland, TX 75044
MLS# 21243990Listed by: INC REALTY, LLC - New
$220,000Active3 beds 2 baths1,225 sq. ft.1033 Rockledge Drive, Garland, TX 75043
MLS# 21251404Listed by: BEAM REAL ESTATE, LLC - New
$220,000Active3 beds 3 baths1,336 sq. ft.3209 Whatley Drive, Garland, TX 75043
MLS# 21246281Listed by: CENTURY 21 JUDGE FITE CO.