2220 Via Vicky Road, Houston, TX 77051

Local realty services provided by:CENTURY 21 Tevas
2220 Via Vicky Road,Houston, TX 77051
  • 3 Beds
  • 2 Baths
  • - sq. ft.
  • Townhouse
  • Sold
Listed by: jared turner
Office: lennar homes village builders, llc.
MLS#:58821542
Source:HARMLS

Sorry, we are unable to map this address


Price summary

  • Price:
  • Monthly HOA dues:$83.33

About this home

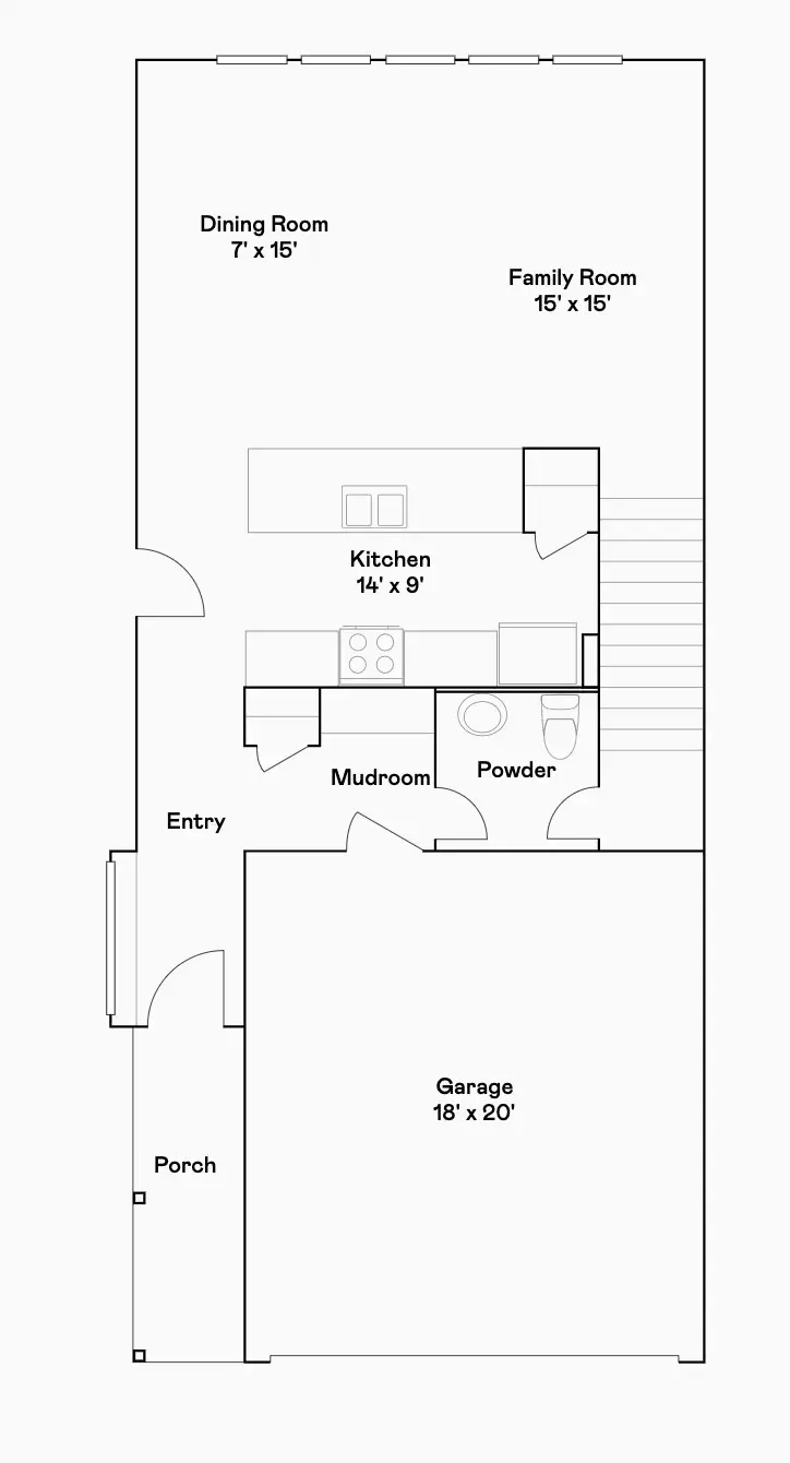
NEW! Lennar Urban Villas Collection "Allen II" Plan with Stone Elevation "CM" in the Beautiful Community of Piccolina! A two-story home with an open first-floor layout that includes a kitchen, dining room and a family room. Upstairs boasts two secondary bedrooms, with one offering flexibility as a work or play space. The owner’s suite highlights a private bathroom with a walk-in closet.

Contact an agent

contact an agent

Yes, I would like more information. Please use and/or share my information with an independent agent affiliated with the CENTURY 21®  brand to contact me about my real estate needs. By clicking Send message, I request to be contacted by phone or text message and consent to being contacted by automated means. I understand that my consent to receive calls or texts is not a condition of purchasing any property, goods, or services. Alternatively, I understand that I can access real estate services by email or I can contact the agent myself.

If an independent agent affiliated with the CENTURY 21®  brand is not available in the area where I need assistance, I agree to be contacted by a real estate agent affiliated with another brand owned or licensed by Anywhere Real Estate (BHGRE® , Coldwell Banker® , Corcoran® , ERA® , Sotheby's International Realty® ).
 I acknowledge that I have read and agree to theTerms of useandPrivacy notice

Home facts

  • Year built:2025
  • Listing ID #:58821542
  • Updated:March 08, 2026 at 06:22 AM

Rooms and interior

  • Bedrooms:3
  • Total bathrooms:2
  • Full bathrooms:2
  • Rooms Total:6

Heating and cooling

  • Cooling:Central Air, Electric
  • Heating:Central, Gas

Structure and exterior

  • Roof:Composition
  • Year built:2025
  • Architectural Style:Traditional
  • Construction Materials:Cement Siding, Stone
  • Foundation Description:Slab
  • Levels:2 Stories

Schools

  • High school:WORTHING HIGH SCHOOL
  • Middle school:ATTUCKS MIDDLE SCHOOL
  • Elementary school:YOUNG ELEMENTARY SCHOOL (HOUSTON)

Finances and disclosures

  • Price:

Features and amenities

  • Amenities:Gated
Copyright 2026, Houston Realtors Information Service, Inc. All information provided is deemed reliable but is not guaranteed and should be independently verified. IDX information is provided exclusively for consumers' personal, non-commercial use, it may not be used for any purpose other than to identify prospective properties consumers may be interested in purchasing, and the data is deemed reliable but is not guaranteed accurate by the MLS.