2611 Lawrence Street, Houston, TX 77008
Local realty services provided by:
2611 Lawrence Street,Houston, TX 77008
$3,500 per month
- 3 Beds
- 4 Baths
- 2,994 sq. ft.
- Rental
- Active
Listed by: null null
MLS#:90855423
Price summary
- Price:$3,500 per month
- Price per sq. ft.:$1.17
About this home
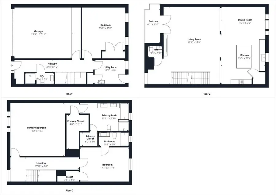
Prime Greater Heights Location! Three Bedroom, Three and a Half Bathroom, Three Story Single-Family Home for Lease. Full Bedroom Down with Full Bath. Marble & Wood Flooring Throughout. Main Living on the Second Floor with High Ceilings & a Guest Powder Room. Spacious Living Room with Gas Log Fireplace and French Doors to a Private Balcony. Great Kitchen for Entertaining with Huge Central Island, Rich Espresso Cabinetry, Granite Counters & SS Appliances. Huge Third Floor Primary Bedroom with Luxurious Bath and Huge Walk-in Closets. Additional Bedroom with Full En-Suite Bath. Available for Showing May 1, 2026 Call to Schedule a Viewing!, Detached,Mediterranean, Detached - Houston, TX, From 610 & Yale, take Yale to E. 26th. West (left) on E. 26th, follow to Lawrence. North on Lawrence, properties on the northwest corner of E. 26th & Lawrence
Contact an agent
Home facts
- Year built:2010
- Listing ID #:90855423
- Added:3 day(s) ago
- Updated:April 22, 2026 at 10:55 AM
Rooms and interior
- Bedrooms:3
- Total bathrooms:4
- Full bathrooms:3
- Half bathrooms:1
- Flooring:Tile
- Kitchen Description:Dishwasher, Garbage Disposal, Microwave, Range / Oven, Refrigerator
- Living area:2,994 sq. ft.
Heating and cooling
- Cooling:Central A/C
Structure and exterior
- Year built:2010
- Building area:2,994 sq. ft.
- Lot area:0.04 Acres
- Architectural Style:Spanish/Mediterranean
Schools
- High school:HEIGHTS HIGH SCHOOL
- Middle school:HAMILTON MIDDLE SCHOOL (HOUSTON)
- Elementary school:HELMS ELEMENTARY SCHOOL
Finances and disclosures
- Price:$3,500 per month
- Price per sq. ft.:$1.17
Features and amenities
- Amenities:Cable, Ceiling Fan(s), Electric
Parking
- Parking description:Attached Garage
New listings near 2611 Lawrence Street
- New
$255,000Active1.25 Acres6137 Fitzhugh, Houston, TX 77028
MLS# 82122596Listed by: WHITE HOUSE GLOBAL PROPERTIES - New
$110,000Active2 beds 1 baths816 sq. ft.7325 Phillips Street, Houston, TX 77088
MLS# 14595310Listed by: WOMACK DEVELOPMENT & INVESTMENT REALTORS - New
$349,000Active3 beds 2 baths1,665 sq. ft.9731 Clanton Street, Houston, TX 77080
MLS# 17084064Listed by: REALM REAL ESTATE PROFESSIONALS - SUGAR LAND - New
$100,000Active3 beds 2 baths1,085 sq. ft.6601 Sidney Street, Houston, TX 77021
MLS# 22138327Listed by: WOMACK DEVELOPMENT & INVESTMENT REALTORS - New
$1,050,000Active1.36 Acres7413 Jensen Drive, Houston, TX 77093
MLS# 23567860Listed by: JLA REALTY - Open Sat, 1 to 4pmNew
$379,990Active3 beds 3 baths2,031 sq. ft.1424 W 24th Street, Houston, TX 77008
MLS# 24145753Listed by: VAQUERO RE LLC - New
$240,000Active0.2 Acres6513 Laura Koppe Road, Houston, TX 77016
MLS# 61261782Listed by: ALLIANCE PROPERTIES - New
$85,000Active0.11 Acres7734 Booker Street, Houston, TX 77028
MLS# 65920097Listed by: ALLIANCE PROPERTIES - New
$230,000Active0.3 Acres3110 Druid St, Houston, TX 77091
MLS# 98449643Listed by: COLDWELL BANKER UNIVERSAL - New
$293,750Active4 beds 3 baths2,582 sq. ft.10326 Greencreek Drive, Houston, TX 77070
MLS# 9811566Listed by: RE/MAX INTEGRITY