- CENTURY 21 Real Estate
- Texas
- Houston
- 763 Paul Quinn Street
763 Paul Quinn Street, Houston, TX 77091
Local realty services provided by:CENTURY 21 Tevas
763 Paul Quinn Street,Houston, TX 77091
$449,000
- 0.5 Acres
- Lots / Land
- Active
Listed by: cesar espinoza
Office: equity real estate
MLS#:78312874
Source:HARMLS
Price summary
- Price:$449,000
About this home
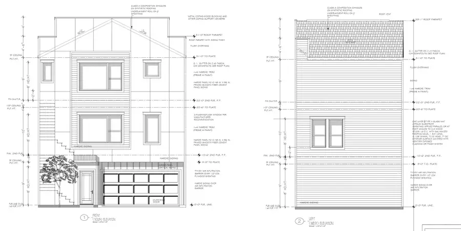
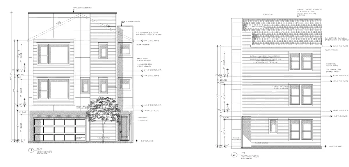
An exceptional development opportunity-this cleared, level, and fully replatted lot includes seven shovel-ready residential lots with all impact fees paid. Approved architectural and structural plans are included, saving time and cost. The site previously known as 763 Paul Quinn Street (pre-replat address) now carries a new tax account-please email the listing agent for updated parcel details.
Located minutes from TC Jester, The Heights, and Highway 290, this prime land sits in the fast-growing Highland Heights area, surrounded by new construction and luxury homes. With pre-approved permits and modern plans ready to go, this site provides an ideal opportunity for builders or investors seeking a streamlined, high-return project in one of Houston s most rapidly appreciating neighborhoods. Don t miss out on this rare find!
Contact an agent
Home facts
- Listing ID #:78312874
- Updated:January 30, 2026 at 12:38 PM
Structure and exterior
- Lot area:0.5 Acres
Schools
- High school:WASHINGTON HIGH SCHOOL
- Middle school:WILLIAMS MIDDLE SCHOOL
- Elementary school:HIGHLAND HEIGHTS ELEMENTARY SCHOOL
Utilities
- Sewer:Public Sewer
Finances and disclosures
- Price:$449,000
- Tax amount:$2,796 (2022)
New listings near 763 Paul Quinn Street
$399,900Active3 beds 4 baths1,816 sq. ft.5103 Avenue J, Houston, TX 77011
MLS# 49925531Listed by: MANOR, LLC- New
$174,990Active4 beds 2 baths851 sq. ft.10705 Munn Street, Houston, TX 77029
MLS# 13622623Listed by: NUWAY REALTY GROUP LLC - Open Sat, 12 to 2pmNew
$625,000Active3 beds 3 baths2,536 sq. ft.805 Fisher Street #A, Houston, TX 77018
MLS# 24956392Listed by: COMPASS RE TEXAS, LLC - THE HEIGHTS - Open Sun, 1 to 4pmNew
$1,599,000Active4 beds 4 baths4,239 sq. ft.3607 Drummond Street, Houston, TX 77025
MLS# 28492442Listed by: MARTHA TURNER SOTHEBY'S INTERNATIONAL REALTY - New
$830,000Active3 beds 3 baths3,106 sq. ft.2431 Calumet Street, Houston, TX 77004
MLS# 42810657Listed by: WOMACK DEVELOPMENT & INVESTMENT REALTORS - New
$299,990Active3 beds 3 baths1,624 sq. ft.8303 Venus Street, Houston, TX 77088
MLS# 49200408Listed by: NEW AGE - Open Sun, 2 to 4pmNew
$1,695,000Active5 beds 5 baths4,047 sq. ft.814 Azalea Street, Houston, TX 77018
MLS# 49744798Listed by: BRENT ALLEN PROPERTIES - New
$165,000Active0 Acres4615 Fulton Street, Houston, TX 77009
MLS# 55665513Listed by: BROOKS & DAVIS REAL ESTATE - Open Sat, 12 to 3pmNew
$245,000Active3 beds 2 baths1,545 sq. ft.2622 Strait Lane, Houston, TX 77084
MLS# 63258608Listed by: THE SEARS GROUP - Open Sun, 1:30 to 3:30pmNew
$689,000Active3 beds 4 baths2,450 sq. ft.1728 Michigan Street #A, Houston, TX 77006
MLS# 64477465Listed by: MARTHA TURNER SOTHEBY'S INTERNATIONAL REALTY