2200 Beech Avenue, McAllen, TX 78501
Local realty services provided by:CENTURY 21 Johnston Company
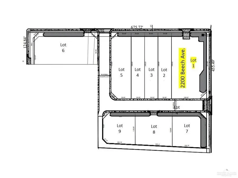
2200 Beech Avenue,McAllen, TX 78501
$495,000
- 0.69 Acres
- Lots / Land
- Active
Listed by: leslie de leon
Office: abolengo properties llc
MLS#:463789
Source:TX_GMAR
Price summary
- Price:$495,000
About this home
Prime Commercial Opportunity at 2200 Beech Ave, McAllen, TX! This exceptional corner lot, spanning 0.69 acres (30,075 sq ft), is zoned C3L Light Industrial, making it a prime location for warehouse development. Fully equipped with **sewer, water, and electricity**, it’s ready for your project to take shape. With **nine available lots** of varying sizes, you have the flexibility to design and build your ideal warehouse to meet the growing demand in this thriving business hub.
Strategically located with **easy access to major transportation routes** and surrounded by a bustling commercial district, these lots offer an unparalleled investment opportunity. Don’t miss your chance to be part of **McAllen’s booming industrial landscape**—secure your spot today and turn your vision into reality!
Contact an agent
Home facts
- Listing ID #:463789
- Added:393 day(s) ago
- Updated:March 19, 2026 at 04:01 PM
Structure and exterior
- Lot area:0.69 Acres
- Lot Features:Curb & Gutters
- Exterior Features:Curb & Gutters
Schools
- High school:McAllen H.S.
- Middle school:Travis
- Elementary school:Wilson
Utilities
- Water:City Water, Public Water, Water Connected
- Sewer:City Sewer
Finances and disclosures
- Price:$495,000
- Tax amount:$3,526
Features and amenities
- Amenities:Curbs, Electricity Connected, Street Lights
New listings near 2200 Beech Avenue
- New
$749,000Active5 beds 6 baths3,927 sq. ft.301 Byron Nelson Street #6, McAllen, TX 78503
MLS# 500260Listed by: Fox Real Estate Pros - New
$101,600Active2 beds 1 baths1,421 sq. ft.700 N Broadway Street, McAllen, TX 78501
MLS# 500266Listed by: Exp Realty Llc - New
$220,000Active3 beds 2 baths1,557 sq. ft.5307 N 41st Lane, McAllen, TX 78504
MLS# 500200Listed by: Winners Circle - New
$450,000Active4 beds 5 baths2,846 sq. ft.13819 N 34th Lane N, McAllen, TX 78504
MLS# 500243Listed by: Big Realty - New
$298,000Active4 beds 3 baths1,716 sq. ft.3501 Harvard Avenue, McAllen, TX 78504
MLS# 498575Listed by: Dominion Real Estate - New
$350,000Active4 beds 3 baths2,502 sq. ft.2421 Robin Avenue, McAllen, TX 78504
MLS# 500085Listed by: Tierra Frontera Llc - New
$249,999Active4 beds 3 baths2,019 sq. ft.2716 Duke Avenue, McAllen, TX 78504
MLS# 500241Listed by: Tierra Frontera Llc - New
$349,900Active4 beds 3 baths1,880 sq. ft.10605 31st Street, McAllen, TX 78504
MLS# 500189Listed by: The Firm Real Estate Co. Llc - New
$348,000Active4 beds 3 baths1,869 sq. ft.10609 31st Street, McAllen, TX 78504
MLS# 500190Listed by: The Firm Real Estate Co. Llc - New
$320,000Active-- beds -- baths3,276 sq. ft.2913 Harvey Drive, McAllen, TX 78501
MLS# 500198Listed by: Saneti Realty Group