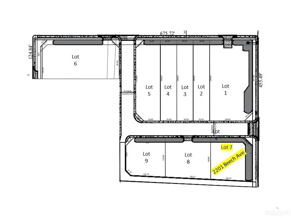
2201 Beech Avenue, McAllen, TX 78501
Local realty services provided by:CENTURY 21 Johnston Company
2201 Beech Avenue,McAllen, TX 78501
$264,460
- 0.43 Acres
- Lots / Land
- Active
Listed by: leslie de leon
Office: leslie j. de leon - office
MLS#:427927
Source:TX_GMAR
Price summary
- Price:$264,460
About this home
Discover the ultimate commercial opportunity at 2201 Beech Ave, McAllen, TX! This specific lot #7, spanning 0.43 acres (18,890 sq ft), offers unmatched potential for warehouse development. Fully developed and improved with sewer, water, and electricity, these lots are ready for you to bring your project to life and start building. With 9 lots available in various sizes, seize the chance to build your ideal warehouse and capitalize on the booming demand in this thriving business hub. Perfectly situated with easy access to major transportation routes and surrounded by a flurry of commercial activity, these lots present an irresistible investment opportunity. Don't miss your chance to be part of McAllen's dynamic landscape – seize this opportunity now and unlock the door to limitless possibilities!
Contact an agent
Home facts
- Listing ID #:427927
- Added:699 day(s) ago
- Updated:February 10, 2026 at 04:59 PM
Structure and exterior
- Lot area:0.43 Acres
Schools
- High school:McAllen H.S.
- Middle school:Travis
- Elementary school:Wilson
Utilities
- Water:City Water, Public Water, Water Connected
- Sewer:City Sewer, Sewer Connected
Finances and disclosures
- Price:$264,460
- Tax amount:$2
New listings near 2201 Beech Avenue
- New
$97,000Active2 beds 1 baths712 sq. ft.2149 Azteca Avenue, McAllen, TX 78503
MLS# 494626Listed by: Exp Realty, Llc - New
$116,000Active2 beds 2 baths1,016 sq. ft.1921 S 8th Street #15, McAllen, TX 78503
MLS# 494716Listed by: Casablanca Real Estate Of Texas, Llc. - New
$120,000Active2 beds 2 baths1,016 sq. ft.1921 S 8th Street #19, McAllen, TX 78503
MLS# 494720Listed by: Casablanca Real Estate Of Texas, Llc. - New
$235,000Active3 beds 3 baths1,376 sq. ft.4213 Hummingbird Avenue #92, McAllen, TX 78504
MLS# 494573Listed by: Texas Landmark Realty Llc - New
$207,500Active3 beds 2 baths1,253 sq. ft.2113 Cortez Avenue, McAllen, TX 78503
MLS# 494578Listed by: Big Realty - New
$235,000Active3 beds 3 baths1,376 sq. ft.4204 Heron Avenue #109, McAllen, TX 78504
MLS# 494579Listed by: Texas Landmark Realty Llc - New
$235,000Active3 beds 3 baths1,376 sq. ft.4208 Heron Avenue #116, McAllen, TX 78504
MLS# 494580Listed by: Texas Landmark Realty Llc - New
$235,000Active3 beds 3 baths1,376 sq. ft.4212 Heron Avenue #120, McAllen, TX 78504
MLS# 494526Listed by: Texas Landmark Realty Llc - New
$140,000Active2 beds 1 baths868 sq. ft.2741 Judith Avenue, McAllen, TX 78503
MLS# 494544Listed by: Coldwell Banker La Mansion - New
$396,895Active4 beds 3 baths2,298 sq. ft.13811 N 34th Ln, MCALLEN, TX 78504
MLS# 29771997Listed by: COLDWELL BANKER LA MANSION REAL ESTATE BROWNSVILLE