2212 Beech Avenue, McAllen, TX 78501
Local realty services provided by:CENTURY 21 Johnston Company
2212 Beech Avenue,McAllen, TX 78501
$173,865
- 0 Acres
- Lots / Land
- Active
Listed by: leslie de leon
Office: abolengo properties llc
MLS#:427885
Source:TX_GMAR
Price summary
- Price:$173,865
About this home
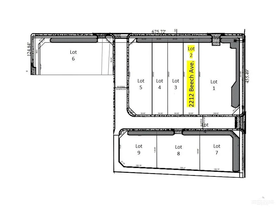
Discover the ultimate commercial opportunity at 2212 Beech Ave, McAllen, TX! This specific lot #2, spanning 0.26 acres (11,591.50 sq ft), offers unmatched potential for warehouse development. Fully developed and improved with sewer, water, and electricity, these lots are ready for you to bring your project to life and start building. With 9 lots available in various sizes, seize the chance to build your ideal warehouse and capitalize on the booming demand in this thriving business hub. Perfectly situated with easy access to major transportation routes and surrounded by a flurry of commercial activity, these lots present an irresistible investment opportunity. Don't miss your chance to be part of McAllen's dynamic landscape – seize this opportunity now and unlock the door to limitless possibilities!
Contact an agent
Home facts
- Listing ID #:427885
- Added:769 day(s) ago
- Updated:April 23, 2026 at 07:40 PM
Structure and exterior
- Lot Features:Irregular Lot
Schools
- High school:McAllen H.S.
- Middle school:Travis
- Elementary school:Wilson
Utilities
- Water:City Water, Public Water, Water Connected
- Sewer:City Sewer, Sewer Connected
Finances and disclosures
- Price:$173,865
- Tax amount:$2
Features and amenities
- Amenities:City Garbage
New listings near 2212 Beech Avenue
- New
$1,200,000Active6 beds 6 baths5,977 sq. ft.5601 N 4th Street, McAllen, TX 78504
MLS# 502480Listed by: Key Realty - New
$329,900Active-- beds -- baths3,020 sq. ft.906 N 29th Street, McAllen, TX 78501
MLS# 501609Listed by: Pinnacle Realty Advisors - New
$339,000Active3 beds 2 baths2,375 sq. ft.1312 Jay Avenue, McAllen, TX 78504
MLS# 502022Listed by: Trendsetters Real Estate & Investments - New
$145,000Active0 Acres1935 S 48th Lane, McAllen, TX 78503
MLS# 502618Listed by: Monarca Real Estate Group Llc - New
$219,500Active2 beds 3 baths1,253 sq. ft.9407 Providence Avenue #A, McAllen, TX 78504
MLS# 502628Listed by: Big Realty - New
$234,500Active3 beds 3 baths1,462 sq. ft.9407 Providence Avenue #G, McAllen, TX 78504
MLS# 502631Listed by: Big Realty - New
$215,000Active2 beds 3 baths1,253 sq. ft.9407 Providence Avenue #B, McAllen, TX 78504
MLS# 502632Listed by: Big Realty - New
$215,000Active2 beds 3 baths1,253 sq. ft.9407 Providence Avenue #C, McAllen, TX 78504
MLS# 502634Listed by: Big Realty - New
$219,500Active2 beds 3 baths1,253 sq. ft.9407 Providence Avenue #D, McAllen, TX 78504
MLS# 502636Listed by: Big Realty - New
$212,500Active2 beds 3 baths1,253 sq. ft.9407 Providence Avenue #E, McAllen, TX 78504
MLS# 502637Listed by: Big Realty