- CENTURY 21 Real Estate
- Texas
- McAllen
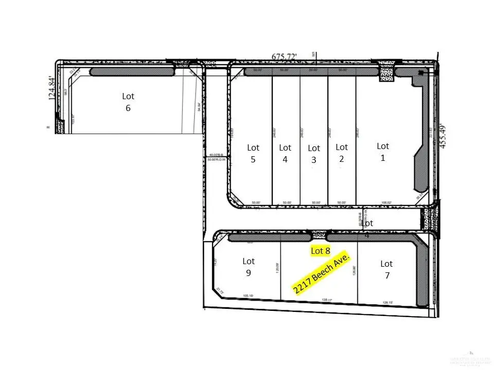
- 2217 Beech Avenue
2217 Beech Avenue, McAllen, TX 78501
Local realty services provided by:CENTURY 21 Johnston Company
2217 Beech Avenue,McAllen, TX 78501
$277,242
- 0.45 Acres
- Lots / Land
- Active
Listed by: leslie de leon
Office: leslie j. de leon - office
MLS#:427928
Source:TX_GMAR
Price summary
- Price:$277,242
About this home
Discover the ultimate commercial opportunity at 2217 Beech Ave, McAllen, TX! This specific corner lot #8, spanning 0.45 acres (19,803 sq ft), offers unmatched potential for warehouse development. Fully developed and improved with sewer, water, and electricity, these lots are ready for you to bring your project to life and start building. With 9 lots available in various sizes, seize the chance to build your ideal warehouse and capitalize on the booming demand in this thriving business hub. Perfectly situated with easy access to major transportation routes and surrounded by a flurry of commercial activity, these lots present an irresistible investment opportunity. Don't miss your chance to be part of McAllen's dynamic landscape – seize this opportunity now and unlock the door to limitless possibilities!
Contact an agent
Home facts
- Listing ID #:427928
- Added:696 day(s) ago
- Updated:February 10, 2026 at 04:59 PM
Structure and exterior
- Lot area:0.45 Acres
Schools
- High school:McAllen H.S.
- Middle school:Travis
- Elementary school:Wilson
Utilities
- Water:City Water, Public Water, Water Connected
- Sewer:City Sewer, Sewer Connected
Finances and disclosures
- Price:$277,242
- Tax amount:$2
New listings near 2217 Beech Avenue
$78,660Pending0.16 Acres5209 Teal Avenue, McAllen, TX 78504
MLS# 494422Listed by: Imperio Real Estate Llc
$78,660Pending0.16 Acres5216 Teal Avenue, McAllen, TX 78504
MLS# 494423Listed by: Imperio Real Estate Llc
$78,660Pending0.16 Acres5213 Teal Avenue, McAllen, TX 78504
MLS# 494425Listed by: Imperio Real Estate Llc
$78,660Pending0.16 Acres5212 Teal Avenue, McAllen, TX 78504
MLS# 494426Listed by: Imperio Real Estate Llc- New
$86,457Active0.17 Acres5517 Teal Avenue, McAllen, TX 78504
MLS# 494427Listed by: Imperio Real Estate Llc - New
$78,660Active0.16 Acres5208 Teal Avenue, McAllen, TX 78504
MLS# 494428Listed by: Imperio Real Estate Llc - New
$80,040Active0.16 Acres5408 Teal Avenue, McAllen, TX 78504
MLS# 494429Listed by: Imperio Real Estate Llc - New
$375,000Active4 beds 3 baths2,440 sq. ft.1713 N 7th Street, McAllen, TX 78501
MLS# 494409Listed by: Wall Street Real Estate Llc - New
$390,000Active4 beds 3 baths2,665 sq. ft.2020 Rice Avenue, McAllen, TX 78504
MLS# 494296Listed by: Winners Circle - New
$55,000Active0.16 Acres6333 S 11th Circle, McAllen, TX 78503
MLS# 494103Listed by: Aurora International Real Estate