2225 Beech Avenue, McAllen, TX 78501
Local realty services provided by:CENTURY 21 Johnston Company
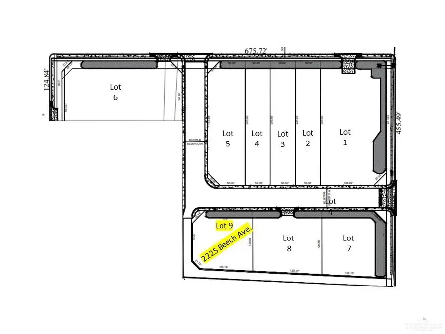
2225 Beech Avenue,McAllen, TX 78501
$265,000
- 0.44 Acres
- Lots / Land
- Active
Listed by: leslie de leon
Office: leslie j. de leon - office
MLS#:427930
Source:TX_GMAR
Price summary
- Price:$265,000
About this home
Seize the opportunity to bring your commercial vision to life with this meticulously developed and subdivided land at 2200 Beech Ave, McAllen, TX. Spanning an irregular but substantial 19,138 sq. ft. (0.439 acres), this property is ready to accommodate your entrepreneurial dreams. Currently zoned C3, it offers versatile possibilities, and an application for I-1 zoning has been submitted with the City of McAllen, unveiling the potential for even more diverse uses. Although rezoning approval is pending confirmation in the next 3 months, the strategic location amidst McAllen's vibrant community and business hub ensures a promising future. Don't miss your chance to be part of this transformative journey – submit your offer today and secure your place in the heart of McAllen's commercial growth!
Contact an agent
Home facts
- Listing ID #:427930
- Added:709 day(s) ago
- Updated:February 10, 2026 at 04:59 PM
Structure and exterior
- Lot area:0.44 Acres
Schools
- High school:McAllen H.S.
- Middle school:Travis
- Elementary school:Wilson
Utilities
- Water:City Water, Public Water, Water Connected
- Sewer:City Sewer, Sewer Connected
Finances and disclosures
- Price:$265,000
- Tax amount:$1
New listings near 2225 Beech Avenue
- New
$235,000Active3 beds 3 baths1,376 sq. ft.4213 Hummingbird Avenue #92, McAllen, TX 78504
MLS# 494573Listed by: Texas Landmark Realty Llc - New
$207,500Active3 beds 2 baths1,253 sq. ft.2113 Cortez Avenue, McAllen, TX 78503
MLS# 494578Listed by: Big Realty - New
$235,000Active3 beds 3 baths1,376 sq. ft.4204 Heron Avenue #109, McAllen, TX 78504
MLS# 494579Listed by: Texas Landmark Realty Llc - New
$235,000Active3 beds 3 baths1,376 sq. ft.4208 Heron Avenue #116, McAllen, TX 78504
MLS# 494580Listed by: Texas Landmark Realty Llc - New
$235,000Active3 beds 3 baths1,376 sq. ft.4212 Heron Avenue #120, McAllen, TX 78504
MLS# 494526Listed by: Texas Landmark Realty Llc - New
$140,000Active2 beds 1 baths868 sq. ft.2741 Judith Avenue, McAllen, TX 78503
MLS# 494544Listed by: Coldwell Banker La Mansion - New
$396,895Active4 beds 3 baths2,298 sq. ft.13811 N 34th Ln, MCALLEN, TX 78504
MLS# 29771997Listed by: COLDWELL BANKER LA MANSION REAL ESTATE BROWNSVILLE - New
$289,000Active3 beds 3 baths2,196 sq. ft.3101 Academy Avenue, Edinburg, TX 78541
MLS# 494464Listed by: Sublime Realty - New
$425,000Active4 beds 4 baths2,482 sq. ft.5104 Escondido Pass, McAllen, TX 78504
MLS# 494497Listed by: Coldwell Banker La Mansion - New
$185,000Active3 beds 2 baths1,333 sq. ft.4217 Colbath Avenue #210A, McAllen, TX 78503
MLS# 494499Listed by: Verite Realty Llc