5442 Woodland Drive, Orange, TX 77632

Local realty services provided by:CENTURY 21 Tevas
5442 Woodland Drive,Orange, TX 77632
$165,000
  • 3 Beds
  • 2 Baths
  • 1,680 sq. ft.
  • Mobile / Manufactured
  • Active
Listed by: ruby miranda
Office: keller williams summit
MLS#:43588422
Source:HARMLS

Price summary

  • Price:$165,000
  • Price per sq. ft.:$98.21

About this home

Welcome to your next home, tucked away on almost an acre of land! From the moment you arrive, you’ll notice the inviting curb appeal and expansive front yard that gives this property a warm and welcoming feel. Inside, you’ll find bright, comfortable living spaces designed for both everyday living and entertaining. Step out back to enjoy a private yard with plenty of room for outdoor fun, complete with a chicken coop ready for your feathered friends or a touch of country charm. Whether it’s weekend cookouts, relaxing evenings, or simply soaking up the outdoors, this space has so much to offer. Blending comfort, space, and a hint of rural living, this home gives you the best of both worlds, peaceful surroundings while being just 15 minutes from the Louisiana–Texas state line.

Contact an agent

contact an agent

Yes, I would like more information. Please use and/or share my information with an independent agent affiliated with the CENTURY 21®  brand to contact me about my real estate needs. By clicking Send message, I request to be contacted by phone or text message and consent to being contacted by automated means. I understand that my consent to receive calls or texts is not a condition of purchasing any property, goods, or services. Alternatively, I understand that I can access real estate services by email or I can contact the agent myself.

If an independent agent affiliated with the CENTURY 21®  brand is not available in the area where I need assistance, I agree to be contacted by a real estate agent affiliated with another brand owned or licensed by Anywhere Real Estate (BHGRE® , Coldwell Banker® , Corcoran® , ERA® , Sotheby's International Realty® ).
 I acknowledge that I have read and agree to theTerms of useandPrivacy notice

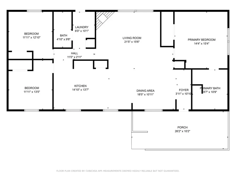
Home facts

  • Year built:1997
  • Listing ID #:43588422
  • Updated:March 19, 2026 at 11:42 AM

Rooms and interior

  • Bedrooms:3
  • Total bathrooms:2
  • Full bathrooms:2
  • Rooms Total:6
  • Flooring:Carpet, Laminate
  • Dining Description:Kitchen Dining Combo, Living Dining Room
  • Bathrooms Description:Separate Shower, Soaking Tub, Tub Shower
  • Kitchen Description:Breakfast Bar, Dishwasher, Electric Oven, Electric Range, Kitchen Dining Combo, Pantry
  • Living area:1,680 sq. ft.

Heating and cooling

  • Cooling:Central Air, Electric
  • Heating:Central, Electric
  • Central air:Yes

Structure and exterior

  • Roof:Composition
  • Year built:1997
  • Building area:1,680 sq. ft.
  • Lot area:0.92 Acres
  • Lot Features:Corner Lot, Side Yard, Wooded
  • Architectural Style:ManufacturedHome, Ranch
  • Construction Materials:Aluminium Siding, Vinyl Siding
  • Exterior Features:Fence, Fully Fenced, Private Yard
  • Levels:1 Story

Schools

  • High school:LITTLE CYPRESS-MAURICEVILLE HIGH SCHOOL
  • Middle school:MAURICEVILLE MIDDLE SCHOOL
  • Elementary school:MAURICEVILLE ELEMENTARY SCHOOL

Utilities

  • Sewer:Septic Tank

Finances and disclosures

  • Price:$165,000
  • Price per sq. ft.:$98.21
  • Tax amount:$1,080 (2024)

Features and amenities

  • Appliances:Dishwasher, Electric Oven, Electric Range
  • Amenities:High Ceilings

Parking

  • Parking description:Additional Parking, Attached Carport, Converted Garage, Detached Carport, Driveway
  • Carport spaces:2
Copyright 2026, Houston Realtors Information Service, Inc. All information provided is deemed reliable but is not guaranteed and should be independently verified. IDX information is provided exclusively for consumers' personal, non-commercial use, it may not be used for any purpose other than to identify prospective properties consumers may be interested in purchasing, and the data is deemed reliable but is not guaranteed accurate by the MLS.