184 Buffalo Boulevard, Rhome, TX 76078
Local realty services provided by:CENTURY 21 Judge Fite Company
184 Buffalo Boulevard,Rhome, TX 76078
$469,990Last list price
- 4 Beds
- 3 Baths
- - sq. ft.
- Single family
- Sold
Listed by: eric stanley972-410-5701
Office: american legend homes
MLS#:21003025
Source:GDAR
Sorry, we are unable to map this address
Price summary
- Price:$469,990
- Monthly HOA dues:$90
About this home
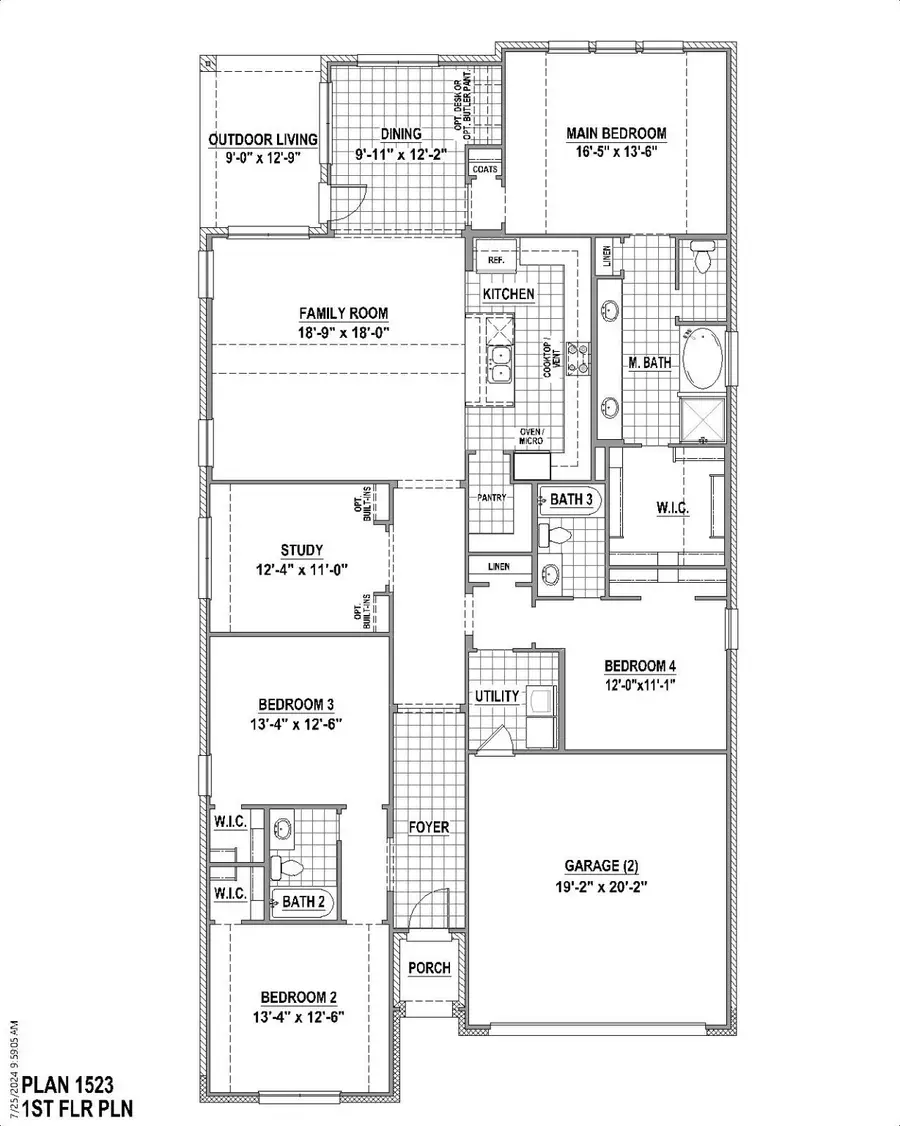
This is our top selling model plan with an upgraded brick and stone exterior. Walk inside and discover gorgeous hardwood floors throughout. In the heart of the home, you will find a spacious kitchen equipped with quartz countertops, upgraded, built-in appliances, a large walk-in pantry, designer cabinetry, an abundance of counterspace and cabinets. The furniture style island overlooks the dining area and family room, which features a cozy fireplace. With open style concept, entertaining will be a breeze. The main suite features a large bedroom, double door entry to the bath, with a soaker tub, separate glass enclosed shower, quartz countertops and a must-see walk-in closet. Your guests will enjoy the private bedroom with a full bathroom. The study has French glass doors, making for a quiet space for those work at home days. The two-car garage has insulated doors and openers. The covered outdoor living space, 8 foot doors, upgraded carpet and tile, make this a must see! Don't miss this amazing opportunity! Reunion Neighborhood is part of the award winning NISD school district with bus transportation. Easy freeway access to Fort Worth and DFW airport. Start making memories in your new American Legend home!!!...
Contact an agent
Home facts
- Year built:2025
- Listing ID #:21003025
- Added:245 day(s) ago
- Updated:March 19, 2026 at 06:03 AM
Rooms and interior
- Bedrooms:4
- Total bathrooms:3
- Full bathrooms:3
- Flooring:Carpet, Ceramic Tile, Hardwood, Wood
- Kitchen Description:Dishwasher, Disposal, Electric Oven, Gas Cooktop, Microwave
Heating and cooling
- Cooling:Ceiling Fans, Central Air, Zoned
- Heating:Central, Natural Gas, Zoned
- Central air:Yes
Structure and exterior
- Roof:Composition
- Year built:2025
- Lot Features:Landscaped, Sprinkler System, Subdivision
- Architectural Style:Traditional
- Construction Materials:Brick, Fiber Cement, Stone
- Foundation Description:Slab
- Levels:1 Story
Schools
- High school:Northwest
- Middle school:Chisholmtr
- Elementary school:Prairievie
Finances and disclosures
- Price:$469,990
Features and amenities
- Appliances:Dishwasher, Disposal, Electric Oven, Gas Cooktop, Microwave, Tankless Water Heater
- Amenities:Carbon Monoxide Detectors, Smoke Detectors
Parking
- Garage:Yes
- Garage spaces:2
New listings near 184 Buffalo Boulevard
- New
$292,500Active4 beds 2 baths2,280 sq. ft.1115 Daytona Drive, Rhome, TX 76078
MLS# 21210524Listed by: POST OAK REALTY, LLC - New
$485,000Active4 beds 2 baths2,426 sq. ft.110 Ridgetop Trail, Rhome, TX 76078
MLS# 21201766Listed by: LEGACY PREMIER GROUP - Open Sat, 1 to 4pmNew
$424,900Active3 beds 3 baths2,168 sq. ft.227 Buffalo Boulevard, Rhome, TX 76078
MLS# 21207215Listed by: ELITE REAL ESTATE TEXAS - New
$624,305Active4 beds 4 baths3,091 sq. ft.147 Derrett Lane, Rhome, TX 76078
MLS# 21207882Listed by: AMERICAN LEGEND HOMES - New
$499,990Active4 beds 3 baths2,413 sq. ft.180 Buffalo Boulevard, Rhome, TX 76078
MLS# 21207908Listed by: AMERICAN LEGEND HOMES - New
$375,845Active4 beds 2 baths2,014 sq. ft.109 Hugo Court, Rhome, TX 76078
MLS# 21203730Listed by: CENTURY 21 MIKE BOWMAN, INC. - New
$428,240Active4 beds 3 baths2,526 sq. ft.215 Windmill Drive, Rhome, TX 76078
MLS# 21203976Listed by: CENTURY 21 MIKE BOWMAN, INC. - New
$384,240Active5 beds 3 baths2,095 sq. ft.129 Hugo Court, Rhome, TX 76078
MLS# 21204004Listed by: CENTURY 21 MIKE BOWMAN, INC. - New
$384,390Active5 beds 3 baths2,120 sq. ft.227 Windmill Drive, Rhome, TX 76078
MLS# 21204033Listed by: CENTURY 21 MIKE BOWMAN, INC. - New
$442,990Active5 beds 4 baths2,882 sq. ft.133 Hugo Court, Rhome, TX 76078
MLS# 21204053Listed by: CENTURY 21 MIKE BOWMAN, INC.