2046 S 350 E #4, Bountiful, UT 84010
Local realty services provided by:CENTURY 21 Wasatch Life Realty
2046 S 350 E #4,Bountiful, UT 84010
$979,999
- 4 Beds
- 3 Baths
- 3,869 sq. ft.
- Single family
- Pending
Listed by: martin r everett, julie blum
Office: brighton realty llc.
MLS#:2134975
Source:SL
Price summary
- Price:$979,999
- Price per sq. ft.:$253.3
About this home
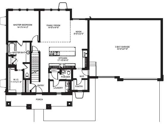
Edgewood A two-story in the heart of Bountiful with no HOA. Designed base package with options to personalize colors and upgrades. Gourmet kitchen with double ovens, gas cooktop and vented hood. Quartz counters, tile & LVP, fireplace, primary suite w/ dual sinks and separate tub/shower, plus 9' basement foundation walls. Ask agent about builder incentives with preferred lenders.
Contact an agent
Home facts
- Year built:2026
- Listing ID #:2134975
- Added:57 day(s) ago
- Updated:April 03, 2026 at 07:55 AM
Rooms and interior
- Bedrooms:4
- Total bathrooms:3
- Full bathrooms:2
- Half bathrooms:1
- Rooms Total:13
- Flooring:Carpet, Tile
- Bathrooms Description:Bath: Sep. Tub/Shower
- Kitchen Description:Disposal, Microwave, Oven: Double, Range Hood, Range: Countertop, Range: Gas
- Basement Description:Full
- Living area:3,869 sq. ft.
Heating and cooling
- Cooling:Central Air
- Heating:Forced Air, Gas: Central
Structure and exterior
- Roof:Asphalt
- Year built:2026
- Building area:3,869 sq. ft.
- Lot area:0.19 Acres
- Lot Features:Cul-De-Sac, Cul-de-sac, Curb & Gutter, Fenced: Partial, Road: Paved
- Construction Materials:Brick, Cement Siding
- Exterior Features:Basement Entrance
- Levels:3 Story
Schools
- High school:Bountiful
- Middle school:Mueller Park
- Elementary school:Muir
Utilities
- Water:Culinary, Secondary, Water Connected
- Sewer:Sewer: Public
Finances and disclosures
- Price:$979,999
- Price per sq. ft.:$253.3
- Tax amount:$1
Features and amenities
- Laundry features:Electric Dryer Hookups
- Amenities:Closet: Walk-In
Parking
- Total parking spaces:3
- Parking description:3 Car Garage
- Garage spaces:3
New listings near 2046 S 350 E #4
- Open Sat, 11am to 1pmNew
$500,000Active4 beds 2 baths1,856 sq. ft.282 E 650 N, Bountiful, UT 84010
MLS# 2147733Listed by: REAL BROKER, LLC - Open Sat, 11am to 1pmNew
$675,000Active3 beds 4 baths2,400 sq. ft.2156 S Elaine Dr, Bountiful, UT 84010
MLS# 2147677Listed by: BERKSHIRE HATHAWAY HOMESERVICES UTAH PROPERTIES (NORTH SALT LAKE) - Open Sat, 11am to 1pmNew
$899,000Active6 beds 4 baths4,308 sq. ft.3551 S Huntington Dr, Bountiful, UT 84010
MLS# 2147669Listed by: CITYHOME COLLECTIVE - Open Fri, 4 to 6pmNew
$625,000Active4 beds 3 baths2,912 sq. ft.11 E Bonneville Dr, Bountiful, UT 84010
MLS# 2147602Listed by: REAL BROKER, LLC - New
$297,000Active2 beds 2 baths1,011 sq. ft.650 S Main St #7107, Bountiful, UT 84010
MLS# 2147581Listed by: KELLY RIGHT REAL ESTATE OF UTAH, LLC - Open Sat, 10:30am to 12:30pmNew
$515,000Active4 beds 3 baths2,352 sq. ft.1885 Spring Creek Dr, Bountiful, UT 84010
MLS# 2147557Listed by: EXP REALTY, LLC - New
$589,000Active4 beds 3 baths1,832 sq. ft.749 E 400 N, Bountiful, UT 84010
MLS# 2147239Listed by: CENTURY 21 EVEREST - Open Sat, 2 to 4pmNew
$375,000Active5 beds 2 baths2,184 sq. ft.2273 S 200 E, Bountiful, UT 84010
MLS# 2146887Listed by: REAL ESTATE ESSENTIALS - New
$850,000Active7 beds 4 baths3,720 sq. ft.110 E 2250 S, Bountiful, UT 84010
MLS# 2146815Listed by: KW WESTFIELD - New
$599,000Active6 beds 3 baths3,620 sq. ft.2136 S 900 E, Bountiful, UT 84010
MLS# 2146849Listed by: SHINER & COMPANY REAL ESTATE, INC.