1593 N 110 W #138, Logan, UT 84341
Local realty services provided by:CENTURY 21 Naomi
1593 N 110 W #138,Logan, UT 84341
$300,000
- 2 Beds
- 2 Baths
- 1,173 sq. ft.
- Condominium
- Pending
Listed by: larry bradley
Office: abode & co. real estate llc.
MLS#:2100974
Source:SL
Price summary
- Price:$300,000
- Price per sq. ft.:$255.75
- Monthly HOA dues:$125
About this home
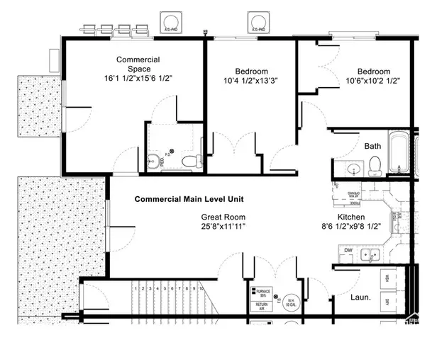
Luxurious Band new condo living at its finest! This is a Live/Work unit which is a perfect setup for a small business. Live in the 2 be 1 bath condo and have your own space that is connected, but has a separate entrance for your business/work. Close to shopping, bus transit and centrally located. Situated in a community that has residential/commercial mix. Features include LVP Flooring, Granite counter tops, great room, walk in closet in en suite, and covered parking. :Seller to contribute $9,000 toward buyers closing costs and/or rate buy down when using a preferred lender. Come and take a look. Estimated completion: End of August
Contact an agent
Home facts
- Year built:2025
- Listing ID #:2100974
- Added:272 day(s) ago
- Updated:November 15, 2025 at 09:25 AM
Rooms and interior
- Bedrooms:2
- Total bathrooms:2
- Full bathrooms:1
- Half bathrooms:1
- Rooms Total:9
- Flooring:Carpet
- Kitchen Description:Disposal, Microwave, Range/Oven: Free Stdng., Range: Countertop
- Basement Description:Slab
- Living area:1,173 sq. ft.
Heating and cooling
- Cooling:Central Air
- Heating:Forced Air, Gas: Central
Structure and exterior
- Roof:Asphalt
- Year built:2025
- Building area:1,173 sq. ft.
- Lot area:0.03 Acres
- Lot Features:Sidewalks, Sprinkler: Auto-Full
- Architectural Style:Condo
- Construction Materials:Brick, Cement Siding, Stucco
- Levels:1 Story
Schools
- High school:Logan
- Middle school:Mt Logan
- Elementary school:Bridger
Utilities
- Water:Culinary, Water Connected
- Sewer:Sewer Connected, Sewer: Connected, Sewer: Public
Finances and disclosures
- Price:$300,000
- Price per sq. ft.:$255.75
- Tax amount:$1
Features and amenities
- Amenities:Insurance, Maintenance, Pets Permitted, Snow Removal
Parking
- Total parking spaces:3
- Parking description:Covered, Parking: Uncovered
- Carport spaces:1
New listings near 1593 N 110 W #138
- Open Sat, 12 to 2pmNew
$389,990Active3 beds 2 baths1,234 sq. ft.1174 W 240 S, Logan, UT 84321
MLS# 2152568Listed by: THE AGENCY SALT LAKE CITY - New
$450,000Active4 beds 3 baths2,000 sq. ft.220 W 100 N, Logan, UT 84321
MLS# 2152503Listed by: KW SOUTH VALLEY KELLER WILLIAMS - Open Sat, 10am to 12pmNew
$355,000Active3 beds 3 baths2,454 sq. ft.325 N 150 W, Logan, UT 84321
MLS# 2152516Listed by: ENGEL & VOLKERS LOGAN, LLC - New
$465,000Active5 beds 3 baths3,432 sq. ft.466 W 200 N, Logan, UT 84321
MLS# 2152448Listed by: NORTH REALTY, LLC - New
$559,000Active4 beds 4 baths3,263 sq. ft.1340 Cliffside Dr, Logan, UT 84321
MLS# 2152342Listed by: CENTURY 21 N & N REALTORS - New
$494,900Active4 beds 2 baths2,632 sq. ft.1347 E Juniper Dr N, Logan, UT 84321
MLS# 2152306Listed by: CENTURY 21 N & N REALTORS - New
$359,500Active3 beds 2 baths1,064 sq. ft.896 Park Ave, Logan, UT 84321
MLS# 2152287Listed by: DWELL REALTY GROUP, LLC - New
$449,900Active5 beds 3 baths2,806 sq. ft.52 N 1250 E, Logan, UT 84321
MLS# 2152263Listed by: KW UNITE KELLER WILLIAMS LLC - New
$1,055,000Active5 beds 5 baths3,994 sq. ft.965 E Johnson Ln, Logan, UT 84321
MLS# 2152173Listed by: EQUITY REAL ESTATE
$85,000Pending3 beds 2 baths880 sq. ft.1797 S 1380 W #LOT 1, Logan, UT 84321
MLS# 2152079Listed by: ABODE & CO. REAL ESTATE LLC