1354 W Jordan Ln #026, West Jordan, UT 84088
Local realty services provided by:CENTURY 21 Lifestyle Real Estate
1354 W Jordan Ln #026,West Jordan, UT 84088
$1,150,000
- 5 Beds
- 5 Baths
- 4,383 sq. ft.
- Single family
- Active
Listed by: sean buttars, samantha woodward
Office: real estate essentials
MLS#:2148455
Source:SL
Price summary
- Price:$1,150,000
- Price per sq. ft.:$262.38
- Monthly HOA dues:$50
About this home
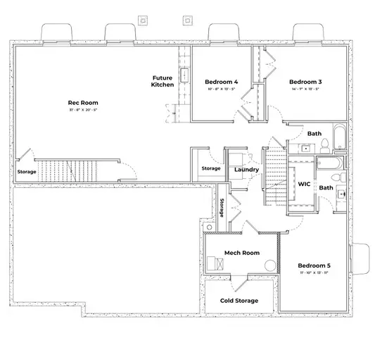
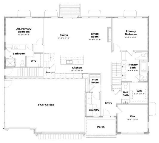
Spacious and versatile, this 5-bedroom, 4.5-bath Henry floor plan offers 4,383 sq. ft. of thoughtfully designed living space with a 3-car garage and flexible areas to suit your lifestyle. Featuring two primary suites on the main floor, this home provides ultimate convenience and privacy. The lower level includes three additional bedrooms with potential for a future mother-in-law suite or ADU, complete with a separate exterior entry, dedicated laundry room, and kitchen roughed-in for independent living. The main-level kitchen is a chef's dream, showcasing a gorgeous layout with a huge island, perfect for entertaining. Primary bathrooms include both a shower and tub along with generous walk-in closets. Come see the beautiful model home and ask me about our Preferred Lender incentive! This home is currently under construction, and photos will be updated as progress continues. Don't miss the chance to make this stunning, multi-functional home yours in the desirable Jordan River Heights community....
Contact an agent
Home facts
- Year built:2026
- Listing ID #:2148455
- Added:1 day(s) ago
- Updated:April 07, 2026 at 11:14 AM
Rooms and interior
- Bedrooms:5
- Total bathrooms:5
- Full bathrooms:3
- Half bathrooms:1
- Rooms Total:18
- Flooring:Carpet, Tile
- Bathrooms Description:Bath: Sep. Tub/Shower
- Kitchen Description:Microwave, Oven: Double, Oven: Gas, Oven: Wall, Range Hood, Range: Gas
- Basement Description:Entrance, Full
- Living area:4,383 sq. ft.
Heating and cooling
- Cooling:Central Air
- Heating:Gas: Central
Structure and exterior
- Roof:Asphalt
- Year built:2026
- Building area:4,383 sq. ft.
- Lot area:0.2 Acres
- Architectural Style:Rambler/Ranch
- Construction Materials:Asbestos, Cement Siding, Stone, Stucco
- Levels:2 Story
Schools
- High school:West Jordan
- Middle school:West Jordan
- Elementary school:Riverside
Utilities
- Water:Culinary, Water Connected
- Sewer:Sewer Connected, Sewer: Connected, Sewer: Public
Finances and disclosures
- Price:$1,150,000
- Price per sq. ft.:$262.38
- Tax amount:$1
Features and amenities
- Amenities:Ceiling Fan, Closet: Walk-In, Den/Office, Gas Logs, Mother-In-Law Apartment
Parking
- Total parking spaces:3
- Parking description:3 Car Garage, Attached Garage
- Garage spaces:3
New listings near 1354 W Jordan Ln #026
- New
$329,000Active3 beds 2 baths1,212 sq. ft.6304 W Passenger Ln S #5, West Jordan, UT 84081
MLS# 2148416Listed by: CDA PROPERTIES INC
$1,025,000Pending6 beds 4 baths3,441 sq. ft.9298 S Mac Duff Ln #015, West Jordan, UT 84088
MLS# 2148453Listed by: REAL ESTATE ESSENTIALS- Open Sat, 9am to 12pmNew
$425,000Active4 beds 4 baths1,933 sq. ft.7626 S Calendula Ln W, West Jordan, UT 84081
MLS# 2148366Listed by: THE SUMMIT GROUP - New
$534,900Active4 beds 3 baths2,416 sq. ft.7607 S Graphite Dr #325, West Jordan, UT 84081
MLS# 2148383Listed by: LENNAR HOMES OF UTAH, LLC - Open Sat, 10am to 1pmNew
$875,000Active6 beds 4 baths3,684 sq. ft.8804 S Millrace View Cir, West Jordan, UT 84088
MLS# 2148331Listed by: RED EMERALD REAL ESTATE LLC - New
$515,000Active3 beds 2 baths1,491 sq. ft.1440 W Countrywood Ln, West Jordan, UT 84088
MLS# 2148290Listed by: REALTYPATH LLC (PLATINUM) - New
$990,000Active4 beds 5 baths3,740 sq. ft.5949 W Eric Ln #118, West Jordan, UT 84081
MLS# 2148155Listed by: TOLL BROTHERS REAL ESTATE, INC. - New
$740,000Active6 beds 4 baths3,370 sq. ft.7066 W Reflection Bay Rd, West Valley City, UT 84081
MLS# 2148096Listed by: EXP REALTY, LLC - New
$548,875Active3 beds 3 baths1,912 sq. ft.6978 W Hidden Hills Way S #326, West Jordan, UT 84081
MLS# 2148106Listed by: S H REALTY LC