25 W Wyatt Ave, Alexandria, VA 22301
Local realty services provided by:CENTURY 21 Advantage Gold
25 W Wyatt Ave,Alexandria, VA 22301
$2,500,000
- 5 Beds
- 4 Baths
- 3,017 sq. ft.
- Single family
- Active
Upcoming open houses
- Sat, May 0902:00 pm - 04:00 pm
Listed by: elizabeth h lucchesi
Office: long & foster real estate, inc.
MLS#:VAAX2053634
Source:BRIGHTMLS
Price summary
- Price:$2,500,000
- Price per sq. ft.:$828.64
About this home
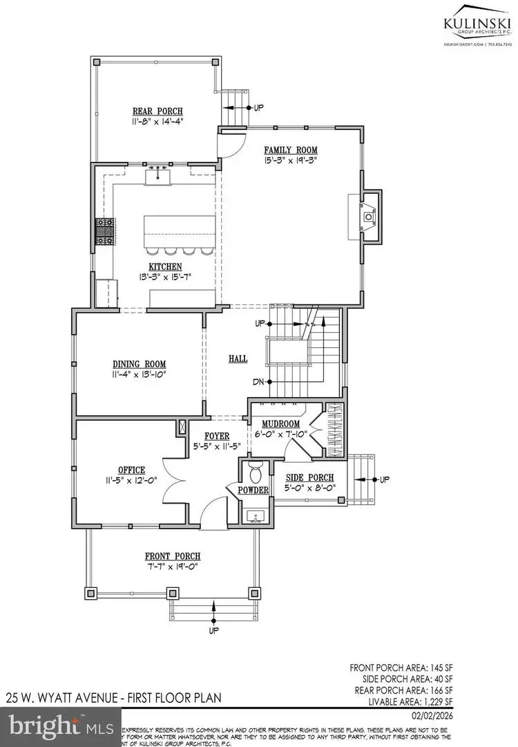
Currently under construction by renowned builder Windmill Hill, LLC, this brand-new home combines quality craftsmanship with a thoughtfully designed floor plan. The layout balances open gathering spaces with practical everyday living.
A specifications sheet is available outlining the planned construction details. Sherwin-Williams paint, Avaron engineered hardwood flooring throughout the first floor, and a full suite of Thermador stainless steel appliances are planned for the kitchen. Gold accents and moody paint colors will add warmth and character to this soon-to-be stunning home.
An updated lookbook featuring the selected finishes and design details is available upon request to interested parties. Hard-hat tours are now available by appointment. Please contact the listing agent to schedule or for additional information. Expected completion in May 2026.
Ideally located in Del Ray, one of Alexandria’s most beloved neighborhoods, residents enjoy easy access to community events, local shops, and popular restaurants along Mount Vernon Avenue....
Contact an agent
Home facts
- Year built:1930
- Listing ID #:VAAX2053634
- Added:56 day(s) ago
- Updated:April 24, 2026 at 01:42 PM
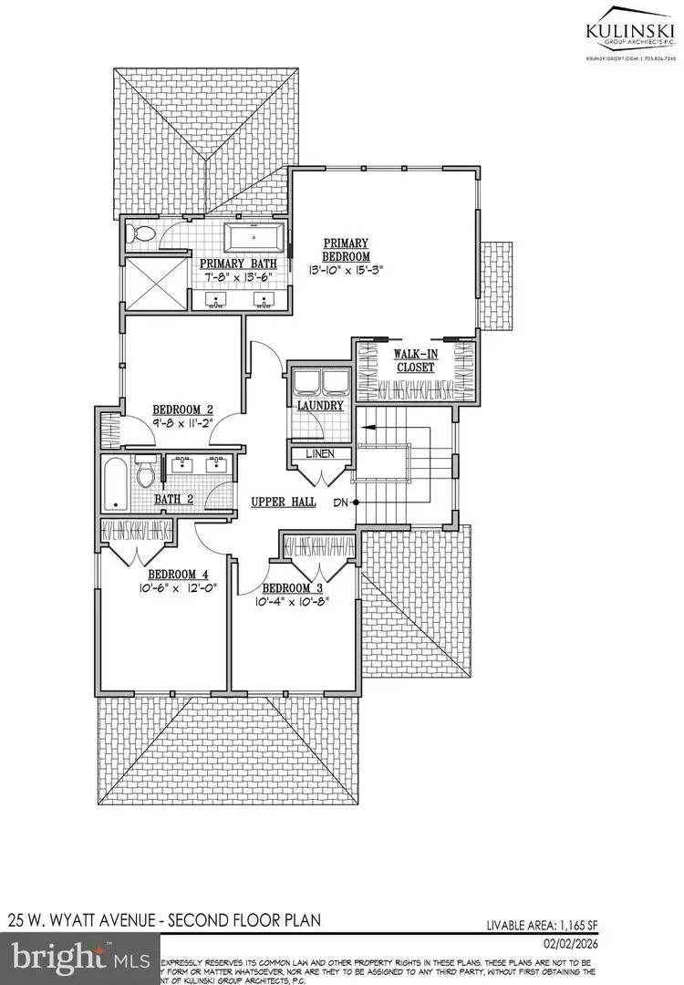
Rooms and interior
- Bedrooms:5
- Total bathrooms:4
- Full bathrooms:3
- Half bathrooms:1
- Flooring:Hardwood, Tile/Brick
- Dining Description:Dining Room
- Bathrooms Description:Primary Bathroom
- Kitchen Description:Dishwasher, Disposal, Microwave, Refrigerator, Stove
- Bedroom Description:Primary Bedroom
- Basement:Yes
- Basement Description:Daylight, Full
- Living area:3,017 sq. ft.
Heating and cooling
- Cooling:Ceiling Fan(s), Central A/C
- Heating:Electric, Forced Air, Heat Pump(s), Natural Gas, Zoned
Structure and exterior
- Roof:Architectural Shingle
- Year built:1930
- Building area:3,017 sq. ft.
- Lot area:0.11 Acres
- Architectural Style:Farmhouse/National Folk
- Construction Materials:HardiPlank Type
- Exterior Features:Porch(es), Sidewalks, Street Lights
- Foundation Description:Permanent
- Levels:3 Story
Schools
- High school:ALEXANDRIA CITY
- Middle school:GEORGE WASHINGTON
- Elementary school:MOUNT VERNON
Utilities
- Water:Public
- Sewer:Public Sewer
Finances and disclosures
- Price:$2,500,000
- Price per sq. ft.:$828.64
- Tax amount:$10,023 (2025)
Features and amenities
- Laundry features:Dryer, Dryer In Unit, Has Laundry, Laundry, Washer, Washer In Unit
Parking
- Parking description:On Street
New listings near 25 W Wyatt Ave
- Coming Soon
$1,149,000Coming Soon3 beds 4 baths832 Snowden Hallowell Way, ALEXANDRIA, VA 22314
MLS# VAAX2059682Listed by: SAMSON PROPERTIES - Coming Soon
$500,000Coming Soon2 beds 3 baths1734 Kingsgate Ct #302, ALEXANDRIA, VA 22302
MLS# VAAX2059224Listed by: SAMSON PROPERTIES - Open Sun, 1 to 3pmNew
$391,000Active2 beds 1 baths878 sq. ft.4561 Strutfield Ln #3318, ALEXANDRIA, VA 22311
MLS# VAAX2059302Listed by: LONG & FOSTER REAL ESTATE, INC. - Open Sat, 1 to 3pmNew
$1,100,000Active2 beds 2 baths1,348 sq. ft.635 Slaters Ln #301, ALEXANDRIA, VA 22314
MLS# VAAX2059292Listed by: CORCORAN MCENEARNEY - Open Sun, 1 to 4pmNew
$1,195,000Active4 beds 3 baths2,600 sq. ft.4320 Loyola Ave, ALEXANDRIA, VA 22304
MLS# VAAX2059760Listed by: COMPASS - New
$1,070,000Active3 beds 5 baths3,105 sq. ft.5164 Carters Ln, ALEXANDRIA, VA 22311
MLS# VAAX2059734Listed by: KW METRO CENTER - Coming Soon
$610,000Coming Soon1 beds 1 baths1115 Cameron St #213, ALEXANDRIA, VA 22314
MLS# VAAX2058662Listed by: EXP REALTY, LLC - Open Sat, 1 to 3pmNew
$3,599,000Active5 beds 6 baths6,189 sq. ft.1231 N Pickett St, ALEXANDRIA, VA 22304
MLS# VAAX2059652Listed by: URBAN LIVING REAL ESTATE, LLC - Open Sat, 1 to 3pmNew
$1,695,000Active3 beds 4 baths2,793 sq. ft.7 E Walnut St, ALEXANDRIA, VA 22301
MLS# VAAX2059708Listed by: TTR SOTHEBY'S INTERNATIONAL REALTY - Open Sun, 2 to 4pmNew
$439,900Active1 beds 1 baths608 sq. ft.520 John Carlyle St #430, ALEXANDRIA, VA 22314
MLS# VAAX2055278Listed by: COMPASS