- CENTURY 21 Real Estate
- Virginia
- Richmond
- 2007 Cedar Street
2007 Cedar Street, Richmond, VA 23223
Local realty services provided by:CENTURY 21 Realty @ Home
2007 Cedar Street,Richmond, VA 23223
$399,950
- 0.08 Acres
- Lots / Land
- Active
Listed by: patrick sullivan
Office: samson properties
MLS#:2526981
Source:RV
Price summary
- Price:$399,950
About this home
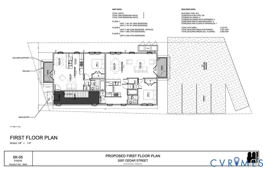
Prime Church Hill Development Opportunity! Unlock the potential of one of Richmond’s most vibrant neighborhoods with the land, design and approvals for this ready-to-build 5-unit multifamily project in the heart of Church Hill. Just steps from Jefferson Park and surrounded by cafes, markets, and local favorites, this property is positioned to thrive in RVA’s high-demand rental market. Future tenants will love the convenience of off-street parking and the lifestyle perks of living in a highly walkable, historic community. Act now and step directly into a streamlined construction timeline that can help accelerate your return and begin accumulating long-term value appreciation. Whether you’re an experienced investor looking to grow your portfolio or a newcomer ready to capture a rare opportunity, this project delivers on design, location, and financial upside. The image is an artist rendering of the approved 5-unit building on the lot for sale created from the project elevations and spec sheet.
Artist rendering shown. Don’t miss your chance to build and own in Church Hill—contact us today for full details.
Contact an agent
Home facts
- Listing ID #:2526981
- Added:128 day(s) ago
- Updated:December 17, 2025 at 06:56 PM
Structure and exterior
- Lot area:0.08 Acres
Schools
- High school:Armstrong
- Middle school:Martin Luther King Jr.
- Elementary school:Bellevue
Utilities
- Water:Public
- Sewer:Public Sewer
Finances and disclosures
- Price:$399,950
- Tax amount:$720 (2024)
New listings near 2007 Cedar Street
- Open Sat, 1 to 3pmNew
$1,325,000Active4 beds 4 baths3,721 sq. ft.1404 Park Avenue, Richmond, VA 23220
MLS# 2602030Listed by: JOYNER FINE PROPERTIES - New
$391,950Active3 beds 3 baths1,464 sq. ft.220 N 20th Street #U4, Richmond, VA 23223
MLS# 2602423Listed by: HOMETOWN REALTY
$365,000Pending3 beds 3 baths2,172 sq. ft.2301 Overby Bend Road, Richmond, VA 23222
MLS# 2602420Listed by: ICON REALTY GROUP- New
$309,950Active3 beds 2 baths1,509 sq. ft.108 E 33rd Street, Richmond, VA 23224
MLS# 2601928Listed by: SHAHEEN RUTH MARTIN & FONVILLE - New
$304,950Active3 beds 2 baths1,212 sq. ft.4603 Mason Run Court, Richmond, VA 23234
MLS# 2602116Listed by: LONG & FOSTER REALTORS - New
$2,650,000Active4 beds 5 baths6,445 sq. ft.9120 James Riverwatch Drive, Richmond, VA 23235
MLS# 2601776Listed by: THE STEELE GROUP - New
$574,950Active4 beds 3 baths2,088 sq. ft.907 1/2 N 36th Street, Richmond, VA 23223
MLS# 2602300Listed by: HOMETOWN REALTY - New
$589,950Active4 beds 4 baths2,110 sq. ft.909 1/2 N 36th Street, Richmond, VA 23223
MLS# 2601677Listed by: HOMETOWN REALTY - New
$324,500Active2 beds 2 baths1,004 sq. ft.110 W Marshall Street #28, Richmond, VA 23220
MLS# 2601247Listed by: EXP REALTY LLC - Open Sun, 2 to 4pmNew
$450,000Active3 beds 2 baths1,500 sq. ft.1007 W 48th Street, Richmond, VA 23225
MLS# 2602086Listed by: REAL BROKER LLC