8220 49th Street Ne, Marysville, WA 98270
Local realty services provided by:CENTURY 21 Tri-Cities
Listed by: ebrima wadda
Office: windermere real estate/m2, llc.
MLS#:2451415
Source:NWMLS
8220 49th Street Ne,Marysville, WA 98270
$719,990
- 3 Beds
- 3 Baths
- 2,082 sq. ft.
- Single family
- Pending
Price summary
- Price:$719,990
- Price per sq. ft.:$345.82
- Monthly HOA dues:$100
About this home
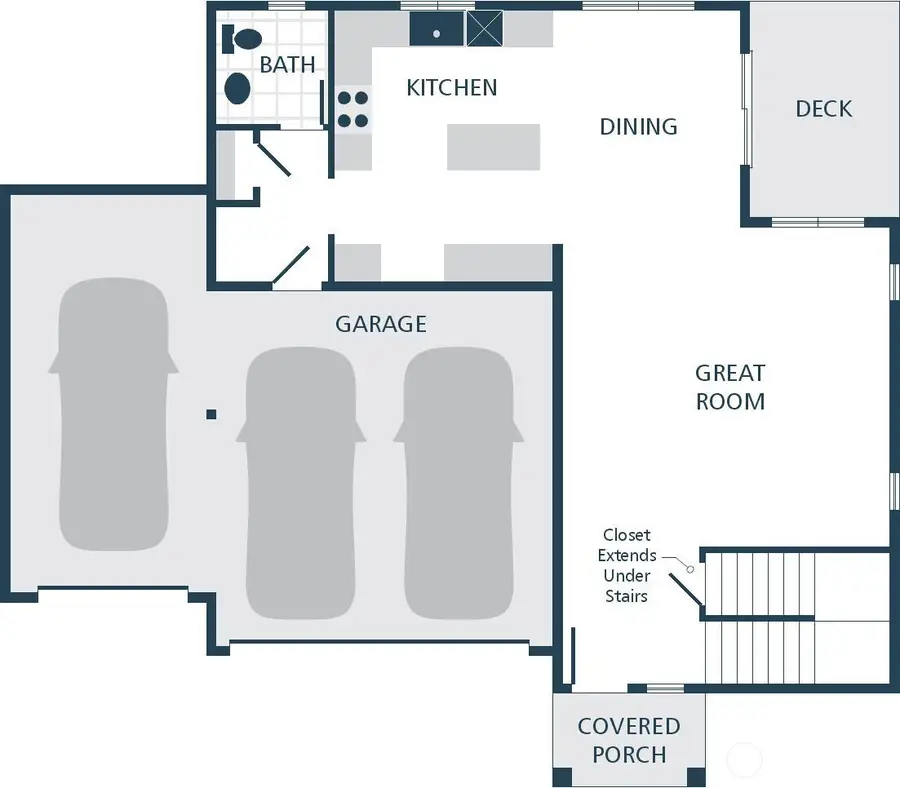
Introducing Taylor Lane, a thoughtfully planned new construction community designed for comfort, efficiency and modern living. THE CAYDEN Design A Plan on Lot 7 offers a spacious 2,082 square foot layout featuring 3 bedrooms, a versatile loft, 2.25 bathrooms, and a generous 3-car garage that provides ample room for vehicles, storage, or projects. The main living areas are designed with a open and functional flow, highlighted by elegant quartz countertops with a matching backsplash, stainless steel kitchen appliances, and durable laminate hardwood flooring throughout the kitchen, dining area, and great room. White painted millwork adds a clean, timeless finish that complements the contemporary design. Efficient heat pump provides reliable heating and cooling for year-round comfort. Large windows allow natural light to fill the home, creating a bright and welcoming atmosphere throughout. The loft offers flexible space suitable for a home office, media room, or additional living area. Taylor Lane is conveniently located with an easy commute and quick access to abundant shopping, dining, and everyday services just minutes away. Enjoy the many advantages of NEW construction, including a new home warranty, energy-efficient features, lower maintenance living, updated safety elements, and modern lifestyle design details that support long-term comfort and peace of mind. This home offers a fantastic opportunity to enjoy quality construction, thoughtful design in a convenient location....
Contact an agent
Home facts
- Year built:2025
- Listing ID #:2451415
- Updated:March 12, 2026 at 01:43 PM
Rooms and interior
- Bedrooms:3
- Total bathrooms:3
- Full bathrooms:2
- Half bathrooms:1
- Flooring:Carpet, Laminate, Vinyl Floor
- Bedroom Description:Upper Level Bedrooms : 3
- Living area:2,082 sq. ft.
Heating and cooling
- Heating:Heat Pump
Structure and exterior
- Roof:Composition
- Year built:2025
- Building area:2,082 sq. ft.
- Lot area:0.11 Acres
- Architectural Style:Craftsman
- Construction Materials:Cement/Concrete Exterior Finish
- Levels:2 Story
Schools
- High school:Lake Stevens Snr Hig
- Middle school:Lake Stevens Middle
- Elementary school:Sunnycrest Elem
Utilities
- Water:Public
- Sewer:Sewer Connected
Finances and disclosures
- Price:$719,990
- Price per sq. ft.:$345.82
Parking
- Total parking spaces:3
- Parking description:Attached Garage
- Garage:Yes
New listings near 8220 49th Street Ne
- New
$129,000Active3 beds 2 baths1,344 sq. ft.11901 55th Avenue Ne, Marysville, WA 98270
MLS# 2491737Listed by: MLS4OWNERS.COM - New
$685,000Active3 beds 2 baths1,461 sq. ft.4913 W Sunnyside Boulevard, Marysville, WA 98270
MLS# 2486159Listed by: COLDWELL BANKER BAIN - Open Sat, 11am to 3pmNew
$555,000Active4 beds 2 baths1,562 sq. ft.5827 145th Street Ne, Marysville, WA 98271
MLS# 2488828Listed by: JOHN L. SCOTT SNOHOMISH - New
$1,250,000Active-- beds -- baths3,568 sq. ft.11807 51st Avenue Ne, Marysville, WA 98271
MLS# 2491436Listed by: WINDERMERE R.E. NORTHEAST, INC - New
$1,250,000Active4 beds 4 baths4,288 sq. ft.11807 51st Avenue Ne, Marysville, WA 98271
MLS# 2490781Listed by: WINDERMERE R.E. NORTHEAST, INC - New
$35,000Active1.42 Acres125 Marine Drive, Marysville, WA 98271
MLS# 2490058Listed by: KW NORTH SOUND - Open Sat, 11am to 1pmNew
$700,000Active4 beds 3 baths2,051 sq. ft.8612 76th Avenue Ne, Marysville, WA 98270
MLS# 2489296Listed by: KW NORTH SOUND - Open Sun, 1 to 4pmNew
$1,050,000Active7 beds 5 baths4,244 sq. ft.7720 72nd Drive Ne, Marysville, WA 98270
MLS# 2477326Listed by: WINDERMERE REAL ESTATE JS
$839,950Pending4 beds 3 baths2,330 sq. ft.5141 87th Drive Ne #MC51, Marysville, WA 98270
MLS# 2490704Listed by: KB HOME SALES- New
$614,950Active3 beds 3 baths1,834 sq. ft.4213 85th Avenue Ne #84, Marysville, WA 98270
MLS# 2490610Listed by: KB HOME SALES