25601 SE 30th Street, Sammamish, WA 98075

Local realty services provided by:CENTURY 21 Tri-Cities
Listed by: ravi kolakaluri
Office: marketplace sotheby's intl rty
MLS#:2412764
Source:NWMLS
25601 SE 30th Street,Sammamish, WA 98075
$1,895,000
  • 0.33 Acres
  • Lots / Land
  • Active

Price summary

  • Price:$1,895,000

About this home

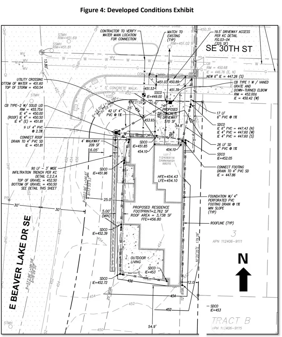
SAMMAMISH CITY Approved Building Permit Ready to build massive 4999 SQ FT house on a huge 0.33 acre lot. Bring your builder and imagination to build this pre-approved contemporary design. Great schools and community. Permitted plans are included in the list price.

Contact an agent

contact an agent

Yes, I would like more information. Please use and/or share my information with an independent agent affiliated with the CENTURY 21®  brand to contact me about my real estate needs. By clicking Send message, I request to be contacted by phone or text message and consent to being contacted by automated means. I understand that my consent to receive calls or texts is not a condition of purchasing any property, goods, or services. Alternatively, I understand that I can access real estate services by email or I can contact the agent myself.

If an independent agent affiliated with the CENTURY 21®  brand is not available in the area where I need assistance, I agree to be contacted by a real estate agent affiliated with another brand owned or licensed by Anywhere Real Estate (BHGRE® , Coldwell Banker® , Corcoran® , ERA® , Sotheby's International Realty® ).
 I acknowledge that I have read and agree to theTerms of useandPrivacy notice

Home facts

  • Listing ID #:2412764
  • Updated:January 31, 2026 at 11:56 AM

Structure and exterior

  • Lot area:0.33 Acres

Schools

  • High school:Skyline High
  • Middle school:Beaver Lake Mid
  • Elementary school:Challenger Elem

Utilities

  • Water:Available, In Street
  • Sewer:In Street

Finances and disclosures

  • Price:$1,895,000
MLS LogoListings courtesy of Northwest MLS as distributed by MLS GRID. Based on information submitted to the MLS GRID as of January 31, 2026. All data is obtained from various sources and may not have been verified by broker or MLS GRID. Supplied Open House Information is subject to change without notice. All information should be independently reviewed and verified for accuracy. Properties may or may not be listed by the office/agent presenting the information. Listing information is provided for consumers' personal, non-commercial use, solely to identify prospective properties for potential purchase; all other use is strictly prohibited and may violate relevant federal and state law. Information deemed reliable but not guaranteed. Copyright © 2026 MLS GRID. All Rights Reserved.