804 Jenifer Street, Madison, WI 53703

Local realty services provided by:CENTURY 21 Affiliated
804 Jenifer Street,Madison, WI 53703
$1,050,000
  • - Beds
  • - Baths
  • - sq. ft.
  • Multi-family
  • Active
Listed by: erik taske
Office: madcity management, llc.
MLS#:2015564
Source:WI_WIREX_SCW

Price summary

  • Price:$1,050,000

About this home

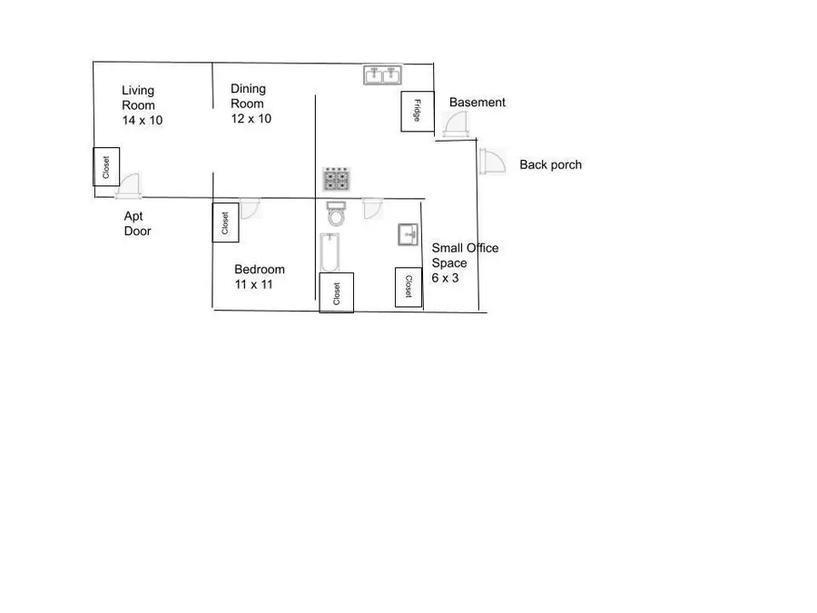
Located in the heart of Madison?s highly sought-after Willy Street neighborhood, 804 Jenifer Street is a rare 7-unit investment opportunity with strong upside. The property features rents below market, offering immediate value-add potential for a new owner, while boasting a history of zero vacancies, a testament to tenant demand and location. The property offers lake views, along with walkable access to Willy Street?s vibrant mix of local restaurants, cafes, shops, parks, and Lake Monona. With stable in-place income, proven occupancy, and significant rent growth potential, this property makes a great addition to any portfolio for investors seeking long-term appreciation and dependable cash flow in a premier neighborhood. Property Sold As-Is.

Contact an agent

contact an agent

Yes, I would like more information. Please use and/or share my information with an independent agent affiliated with the CENTURY 21®  brand to contact me about my real estate needs. By clicking Send message, I request to be contacted by phone or text message and consent to being contacted by automated means. I understand that my consent to receive calls or texts is not a condition of purchasing any property, goods, or services. Alternatively, I understand that I can access real estate services by email or I can contact the agent myself.

If an independent agent affiliated with the CENTURY 21®  brand is not available in the area where I need assistance, I agree to be contacted by a real estate agent affiliated with another brand owned or licensed by Anywhere Real Estate (BHGRE® , Coldwell Banker® , Corcoran® , ERA® , Sotheby's International Realty® ).
 I acknowledge that I have read and agree to theTerms of useandPrivacy notice

Home facts

  • Year built:1909
  • Listing ID #:2015564
  • Added:61 day(s) ago
  • Updated:March 29, 2026 at 02:36 PM

Rooms and interior

  • Basement Description:Full

Heating and cooling

  • Heating:Natural Gas, Radiant/Electric

Structure and exterior

  • Year built:1909
  • Lot area:0.1 Acres
  • Construction Materials:Stucco
  • Foundation Description:Poured Concrete
  • Levels:3+ Story

Schools

  • High school:East
  • Middle school:Okeeffe
  • Elementary school:Lapham/Marquette

Utilities

  • Water:Municipal Water
  • Sewer:Municipal Sewer

Finances and disclosures

  • Price:$1,050,000
  • Tax amount:$16,915 (2025)

Parking

  • Parking description:1 Space, Outside
2026 Wisconsin Real Estate Exchange (WIREX) Information deemed reliable, but not guaranteed. This information, provided by seller, listing broker, and other parties, may not have been verified. Information is provided exclusively for consumers personal, non-commercial use and that it may not be used for any purpose other than to identify prospective properties consumers may be interested in purchasing.