1115 N Corinth Street, Corinth, TX 76208
Local realty services provided by:CENTURY 21 Middleton
Listed by: jared english888-881-4118
Office: congress realty, inc.
MLS#:21097768
Source:GDAR
Price summary
- Price:$2,250,000
About this home
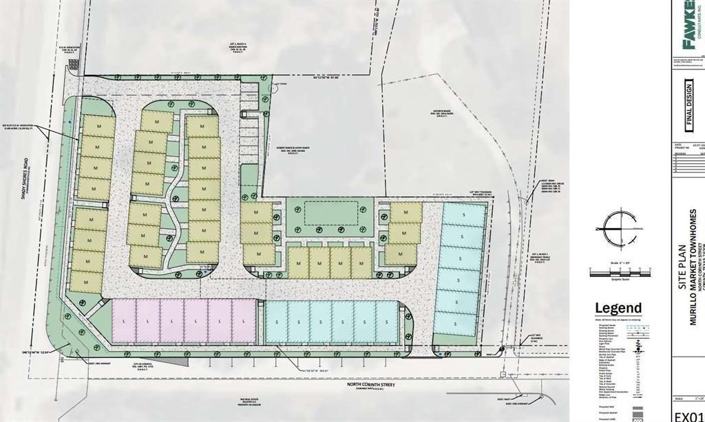
Fully approved, 50 unit townhome development for sale in Corinth, Texas. Project includes complete engineered drawings, architectural plans, geotech, topography survey, ALTA survey, full approvals and everything else that a developer will need to file for a building permit and start digging! Bids are also included in development packet along with proforma that shows projected developer profit.
Price: $2,250,000 (land + plans)
Acreage: 2.14 acre
Units: 50
Individual unit mix:
32 units: 3 bed, 2.5 bath, 2 car garage (1499 sqft)
12 units: 4 bed, 3.5 bath, 2 car garage (2228 sqft)
6 units: live work units: 3 bed, 3 bath, 2 car garage (2174 sqft)
Contact an agent
Home facts
- Listing ID #:21097768
- Added:155 day(s) ago
- Updated:April 01, 2026 at 11:41 AM
Structure and exterior
- Lot area:2.14 Acres
- Lot Features:Subdivision
Schools
- High school:Denton
- Middle school:Bettye Myers
- Elementary school:Alice Moore Alexander
Finances and disclosures
- Price:$2,250,000
New listings near 1115 N Corinth Street
- New
$429,791Active3 beds 3 baths1,882 sq. ft.2772 Teton Street, Corinth, TX 76210
MLS# 21220732Listed by: MERITAGE HOMES REALTY - New
$465,080Active4 beds 3 baths2,472 sq. ft.2768 Teton Street, Corinth, TX 76210
MLS# 21220735Listed by: MERITAGE HOMES REALTY - New
$406,222Active3 beds 3 baths1,650 sq. ft.2764 Teton Street, Corinth, TX 76210
MLS# 21220737Listed by: MERITAGE HOMES REALTY - New
$456,697Active3 beds 3 baths2,309 sq. ft.2760 Teton Street, Corinth, TX 76210
MLS# 21220740Listed by: MERITAGE HOMES REALTY - New
$559,723Active3 beds 3 baths2,400 sq. ft.3615 Fritz Lane, Corinth, TX 76208
MLS# 21223025Listed by: RE/MAX DFW ASSOCIATES - Open Sat, 10am to 12pmNew
$450,000Active3 beds 3 baths2,126 sq. ft.1500 Mission Hills Lane, Corinth, TX 76210
MLS# 21197768Listed by: REAL BROKER, LLC - New
$550,000Active4 beds 3 baths2,612 sq. ft.3012 Hidden Springs Drive, Corinth, TX 76210
MLS# 21219242Listed by: KELLER WILLIAMS REALTY-FM - New
$539,520Active4 beds 3 baths3,012 sq. ft.3401 Attaway Circle, Corinth, TX 76208
MLS# 21221395Listed by: REAL T TEAM BY EXP - New
$335,000Active4 beds 2 baths2,010 sq. ft.2607 Trinity Terrace, Corinth, TX 76210
MLS# 21222014Listed by: RIGHT 1 WAY REALTY - New
$849,000Active4 beds 5 baths3,891 sq. ft.3308 Benbrook Cove, Corinth, TX 76208
MLS# 21195600Listed by: POST OAK REALTY, LLC