181 Delaney Pine Drive, Waleska, GA 30183
Local realty services provided by:CENTURY 21 Results
181 Delaney Pine Drive,Waleska, GA 30183
$515,550
- 3 Beds
- 2 Baths
- - sq. ft.
- Single family
- Sold
Listed by: alan culpepper
Office: atlanta communities
MLS#:10600000
Source:METROMLS
Sorry, we are unable to map this address
Price summary
- Price:$515,550
- Monthly HOA dues:$218
About this home
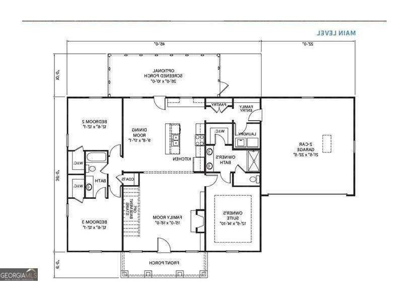
Move In Ready!!! 2 Years FREE HOA Dues!!! Great True Ranch Plan with Amazing Creek & Mountain Views!!! The Charming Covered Front Porch Welcomes you into this Spacious 3 Bedrooms 2 Bath Open Floor Plan, the Rear Covered Deck has Beautiful Wooded Mountain Views, a Gourmet Kitchen with Granite Counters and Loads of Cabinet Space. The Private Master Suite has Double Vanity, Walk In Closet and Spacious Shower. Quick Access to the North Gate. A Great Mountain Retreat!
Contact an agent
Home facts
- Year built:2025
- Listing ID #:10600000
- Updated:March 21, 2026 at 06:14 AM
Rooms and interior
- Bedrooms:3
- Total bathrooms:2
- Full bathrooms:2
- Flooring:Carpet
- Bathrooms Description:Double Vanity
- Kitchen Description:Dishwasher, Disposal, Kitchen Island, Microwave, Pantry
- Bedroom Description:Master On Main Level, Walk-In Closet(s)
- Basement Description:Daylight, Exterior Entry, Interior Entry
Heating and cooling
- Cooling:Central Air, Electric, Zoned
- Heating:Central, Electric, Heat Pump, Zoned
- Central air:Yes
Structure and exterior
- Roof:Composition
- Year built:2025
- Lot Features:Private
- Architectural Style:Craftsman
- Construction Materials:Concrete
- Exterior Features:Deck
- Levels:1 Story
Schools
- High school:Cherokee
- Middle school:Teasley
- Elementary school:R M Moore
Utilities
- Water:Private, Water Available
- Sewer:Private Sewer, Sewer Available
Finances and disclosures
- Price:$515,550
- Tax amount:$26 (2024)
Features and amenities
- Appliances:Dishwasher, Disposal, Electric Water Heater, Microwave
- Laundry features:In Hall
- Amenities:Carbon Monoxide Detector(s), Double Pane Windows, Electric Water Heater, High Ceilings, Pulldown Attic Stairs, Smoke Detector(s), Vaulted Ceiling(s)
Parking
- Total parking spaces:2
- Parking description:Attached, Garage
- Garage:Yes
New listings near 181 Delaney Pine Drive
- New
$599,900Active4 beds 4 baths3,082 sq. ft.109 Jack Pine Court, Waleska, GA 30183
MLS# 10715127Listed by: Porch Property Group, LLC - New
$569,900Active4 beds 2 baths2,100 sq. ft.2020 Darby Road, Waleska, GA 30183
MLS# 10714583Listed by: Coldwell Banker Realty - New
$929,900Active4 beds 4 baths3,148 sq. ft.535 Thomas Lane, Waleska, GA 30183
MLS# 10713620Listed by: Watkins Real Estate Associates - New
$885,000Active4 beds 4 baths3,900 sq. ft.980 Cowart Mountain Trail, Waleska, GA 30183
MLS# 10713432Listed by: Path & Post - New
$315,000Active3 beds 2 baths106 Lake Cottages Court, Waleska, GA 30183
MLS# 10713260Listed by: Pratt & Associates Realty - New
$7,500Active0.43 Acres282 Chickasaw Drive, Waleska, GA 30183
MLS# 10713196Listed by: Porch Property Group, LLC - Coming Soon
$1,350,000Coming Soon4 beds 3 baths129 Broadwater Court, Waleska, GA 30183
MLS# 10712635Listed by: Atlanta Communities - New
$827,500Active10 Acres0 Lake Arrowhead Drive, Waleska, GA 30183
MLS# 7736419Listed by: BRIGHTSTAR REALTY - New
$375,000Active2 beds 3 baths1,429 sq. ft.125 Wolverine Drive, Waleska, GA 30183
MLS# 10711248Listed by: Atlanta Communities - New
$264,000Active3 beds 2 baths6855 Reinhardt College Parkway, Waleska, GA 30183
MLS# 10709815Listed by: Sanders Real Estate