2175 OGLETREE PLACE, Pell City, AL 35125
Local realty services provided by:CENTURY 21 Novus
Listed by: mellanie wright
Office: dhi realty of alabama
MLS#:21447445
Source:AL_BAMLS
Price summary
- Price:$347,400
- Price per sq. ft.:$138.35
About this home
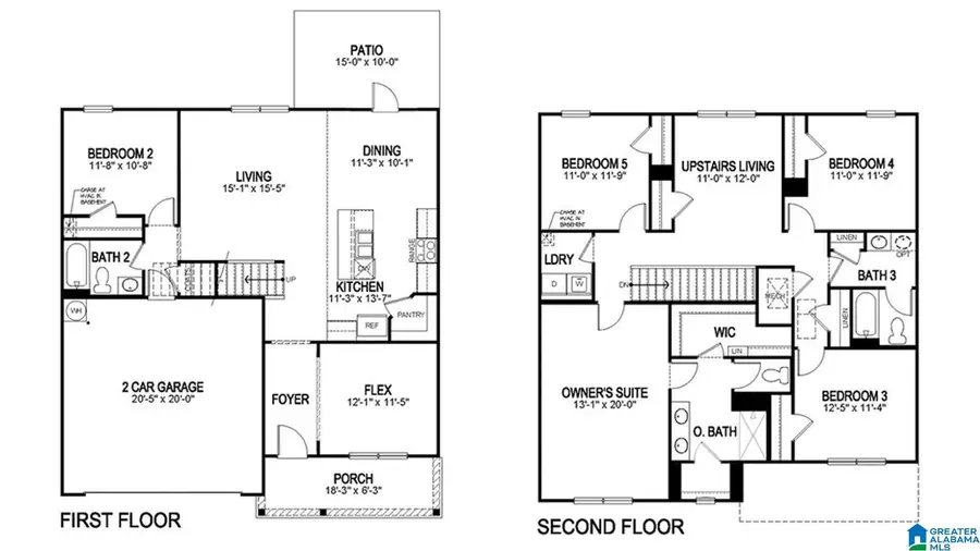
Ask about our interest rates, paid closing cost and easily added options. The Hayden is a two-story plan with 5 bedrooms and 3 bathrooms in 2,511 square feet. The main level features a flex room adjacent to the foyer, ideal for a formal dining room or home office. The gourmet kitchen has an oversized island for extra seating and a large pantry, and it opens to the dining area and a spacious living room. A bedroom with a full bathroom completes the main level. Bedroom One is on the second level and offers a walk-in shower, private bathroom, double vanities and a walk-in closet. There are 3 additional bedrooms, a full bathroom, a walk-in laundry room, and a loft-style living room on the second level. Quality materials and workmanship throughout, with superior attention to detail, plus a one-year builders warranty. Your new home also includes our smart home technology package!
Contact an agent
Home facts
- Year built:2026
- Listing ID #:21447445
- Added:12 day(s) ago
- Updated:April 05, 2026 at 02:27 PM
Rooms and interior
- Bedrooms:5
- Total bathrooms:3
- Full bathrooms:3
- Flooring:Carpet, Vinyl
- Bathrooms Description:Linen Closet, Separate Shower, Separate Vanities
- Kitchen Description:Dishwasher Built-In, Eating Area, Island, Microwave Built-In, Pantry, Some Stainless Appliances, Stone Counter, Stove-Electric, Tile Counter
- Bedroom Description:Split Bedrooms, Walk-In Closets
- Living area:2,511 sq. ft.
Heating and cooling
- Cooling:Central, Electric, Zoned
- Heating:Central, Electric, Zoned
Structure and exterior
- Year built:2026
- Building area:2,511 sq. ft.
- Lot area:0.19 Acres
- Lot Features:Subdivision
- Construction Materials:Siding-Hardiplank
- Exterior Features:Open Patio
- Foundation Description:Slab
- Levels:2 Stories
Schools
- High school:PELL CITY
- Middle school:DURAN
- Elementary school:IOLA ROBERTS
Utilities
- Water:Public Water
- Sewer:Sewer Connected
Finances and disclosures
- Price:$347,400
- Price per sq. ft.:$138.35
Features and amenities
- Appliances:Dishwasher Built-In, Microwave Built-In, Some Stainless Appliances, Stove - Electric
- Laundry features:Dryer-Electric, Laundry in Upper Level, Washer Hookup
- Amenities:Smooth Ceilings
- Smart home:Yes
Parking
- Parking description:Attached, Driveway Parking, Parking (MLVL)
- Garage spaces:2
New listings near 2175 OGLETREE PLACE
- New
$55,000Active0 Acres0 SKYLINE DRIVE, Pell city, AL 35128
MLS# 21448610Listed by: ERA KING REAL ESTATE - PELL CITY
$40,000Pending0.18 Acres7 MORNING GLORY DRIVE, Pell city, AL 35128
MLS# 21448555Listed by: RE/MAX HOMETOWN PROPERTIES- New
$279,900Active3 beds 3 baths1,770 sq. ft.4015 WHITES DRIVE, Pell city, AL 35128
MLS# 21448387Listed by: ARC REALTY VESTAVIA - New
$865,000Active4 beds 5 baths3,292 sq. ft.5802 LEE ROAD, Pell city, AL 35128
MLS# 21448041Listed by: REAL BROKER LLC - New
$239,900Active4 beds 3 baths1,870 sq. ft.588 CHULA VISTA MTN ROAD, Pell city, AL 35125
MLS# 21448000Listed by: RE/MAX MARKETPLACE - New
$425,000Active3 beds 3 baths2,393 sq. ft.1673 PINE HARBOR ROAD, Pell city, AL 35128
MLS# 21447843Listed by: FIELDS GOSSETT REALTY - New
$499,900Active4 beds 3 baths2,480 sq. ft.315 RICHARDS CIRCLE, Pell city, AL 35128
MLS# 21447804Listed by: FIELDS GOSSETT REALTY
$354,900Active4 beds 4 baths2,395 sq. ft.360 CAMELLIA LANE, Pell city, AL 35128
MLS# 21447525Listed by: SOUTHERN HOMETOWN SELLING, LLC
$99,900Active3 beds 2 baths2,000 sq. ft.229 GRAHAM ROAD, Pell city, AL 35125
MLS# 21447490Listed by: GOAL REALTY LLC
$215,000Pending3 beds 2 baths1,495 sq. ft.2713 DELLWOOD DRIVE, Pell city, AL 35128
MLS# 21447476Listed by: LIST WITH FREEDOM