7677 CLOVERDELL DRIVE, Pinson, AL 35126
Local realty services provided by:CENTURY 21 Novus
Listed by: chris hicks
Office: hicks realty llc.
MLS#:21443974
Source:AL_BAMLS
Price summary
- Price:$390,000
- Price per sq. ft.:$220.71
About this home
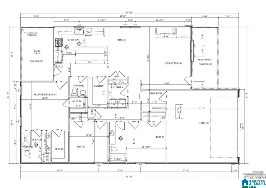
Under construction! This 3BR/2.5BA home offers approx. 1,767± sq ft with a well-designed open layout. The kitchen flows into the dining area and great room, creating an inviting space for everyday living and entertaining. The private primary suite features a spacious bath and walk-in closet. Bedrooms 2 and 3 share a full bath and are thoughtfully positioned for privacy. Additional highlights include a powder room, laundry room, drop zone, covered front porch, rear porch, and 2-car garage. Still time to select some finishes. Great opportunity to own new construction!
Contact an agent
Home facts
- Year built:2026
- Listing ID #:21443974
- Added:60 day(s) ago
- Updated:April 20, 2026 at 02:29 PM
Rooms and interior
- Bedrooms:3
- Total bathrooms:3
- Full bathrooms:2
- Half bathrooms:1
- Flooring:Hardwood Laminate, Tile Floor
- Dining Description:Dining Room
- Bathrooms Description:Separate Shower, Separate Vanities, Tub/Shower Combo
- Kitchen Description:Dishwasher Built-In, Island, Microwave Built-In, Pantry, Stone Counter, Stove-Gas
- Bedroom Description:Split Bedrooms, Walk-In Closets
- Living area:1,767 sq. ft.
Heating and cooling
- Cooling:Central
- Heating:Central
Structure and exterior
- Year built:2026
- Building area:1,767 sq. ft.
- Lot area:0.57 Acres
- Construction Materials:Brick Over Foundation, Siding-Hardiplank
- Exterior Features:Covered Deck, Porch
- Foundation Description:Crawl Space
- Levels:1 Story
Schools
- High school:CLAY-CHALKVILLE
- Middle school:CLAY-CHALKVILLE
- Elementary school:CLAY
Utilities
- Water:Public Water
- Sewer:Septic
Finances and disclosures
- Price:$390,000
- Price per sq. ft.:$220.71
Features and amenities
- Appliances:Dishwasher Built-In, Microwave Built-In, Stove - Gas
- Laundry features:Dryer-Electric, Laundry in Middle Level, Washer Hookup
- Amenities:Pull-Down Attic, Smooth Ceilings
Parking
- Parking description:Attached, Driveway Parking, Parking (MLVL)
- Garage spaces:2
New listings near 7677 CLOVERDELL DRIVE
- New
$230,000Active3 beds 2 baths2,089 sq. ft.2565 REDWOOD LANE, Pinson, AL 35126
MLS# 21450377Listed by: TMILLS REALTY GROUP - New
$19,000Active0.51 Acres8974 WOODHAVEN DRIVE, Pinson, AL 35126
MLS# 21450357Listed by: RE/MAX MARKETPLACE - New
$419,000Active4 beds 4 baths2,870 sq. ft.6491 CAMBRIDGE ROAD, Pinson, AL 35126
MLS# 21450263Listed by: KELLER WILLIAMS PELL CITY - New
$225,000Active4 beds 3 baths1,455 sq. ft.42 VALLEY CIRCLE, Pinson, AL 35126
MLS# 21450047Listed by: RE/MAX NORTHERN PROPERTIES - New
$279,000Active3 beds 2 baths2,167 sq. ft.5408 BREWER DRIVE, Pinson, AL 35126
MLS# 21450007Listed by: KELLER WILLIAMS REALTY HOOVER - New
$252,000Active3 beds 3 baths2,083 sq. ft.4637 STERLING GLEN LANE, Pinson, AL 35126
MLS# 21449974Listed by: BARNES & ASSOCIATES - New
$200,950Active3 beds 3 baths2,700 sq. ft.102 LAKEVIEW DRIVE, Pinson, AL 35126
MLS# 21449917Listed by: GENSTONE LLC - New
$249,000Active11.04 Acres8810 PINE MOUNTAIN ROAD, Pinson, AL 35126
MLS# 21449780Listed by: KELLER WILLIAMS REALTY BLOUNT - New
$29,700Active2 Acres7410 DEWEY GOODWIN ROAD, Pinson, AL 35126
MLS# 21449686Listed by: KELLER WILLIAMS REALTY BLOUNT - New
$80,000Active3 beds 2 baths1,344 sq. ft.3492 STRICKLAND ROAD, Pinson, AL 35126
MLS# 21449691Listed by: JOSEPH CARTER REALTY