4411 S 88th Street, Bentonville, AR 72713
Local realty services provided by:CENTURY 21 Action Realty
4411 S 88th Street,Bentonville, AR 72713
$915,576
- 3 Beds
- 4 Baths
- 3,287 sq. ft.
- Single family
- Pending
Listed by: jackie snead
Office: buffington homes of arkansas
MLS#:1337615
Source:AR_NWAR
Price summary
- Price:$915,576
- Price per sq. ft.:$278.54
- Monthly HOA dues:$116.67
About this home
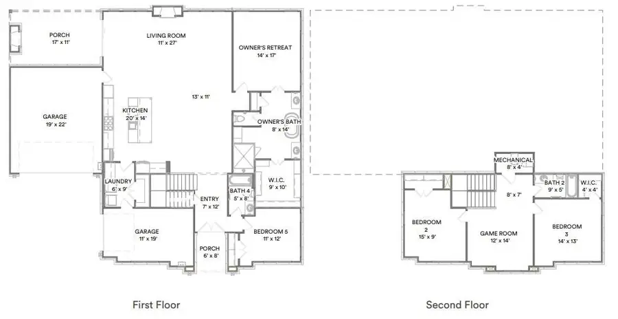
Upon entering this two-story home, you're greeted by an elegant,spacious plan. The living room features a gorgeous fireplace and numerous windows for natural light. The extended patio with valuted ceilings is the perfect outdoor space. The living room Kitchen Dining areaa with 12 ft ceilings flows seamlessly into a designer kitchen perfect for entertaining. The owner's retreat is exceptionally generous, with a huge master bath and large closet.There is a study and powder bath also to complete the 1st floor living . The Upstairs is a large game room, twobedrooms, and two full baths. Without a doubt, you’ll enjoy making the Hamilton floor plan truly yours.
Directions:
Contact an agent
Home facts
- Year built:2026
- Listing ID #:1337615
- Added:56 day(s) ago
- Updated:April 25, 2026 at 07:46 AM
Rooms and interior
- Bedrooms:3
- Total bathrooms:4
- Full bathrooms:3
- Half bathrooms:1
- Flooring:Carpet, Tile, Wood
- Kitchen Description:Built-In Oven, Built-In Range, Dishwasher, Exhaust Fan, Garbage Disposal, Gas Range, Gas Water Heater, Microwave, Pantry, Range Hood
- Bedroom Description:Split Bedrooms
- Basement:Yes
- Living area:3,287 sq. ft.
Heating and cooling
- Cooling:Central Air
- Heating:Central
- Central air:Yes
Structure and exterior
- Roof:Architectural, Shingle
- Year built:2026
- Building area:3,287 sq. ft.
- Lot area:0.29 Acres
- Lot Features:Landscaped, Subdivision, Views
- Construction Materials:Brick, Concrete
- Exterior Features:Covered, Patio, Porch
- Foundation Description:Block, Slab
- Levels:2 Story
Utilities
- Water:Public, Water Available
- Sewer:Public Sewer, Sewer Available
Finances and disclosures
- Price:$915,576
- Price per sq. ft.:$278.54
- Tax amount:$910,000
Features and amenities
- Appliances:Built-In Oven, Built-In Range, Dishwasher, Disposal, ENERGY STAR Qualified Appliances, Exhaust Fan, Gas Cooktop, Gas Range, Gas Water Heater, Microwave, Range Hood, Tankless Water Heater
- Laundry features:Dryer Hookup, Washer Hookup
- Amenities:Ceiling Fans, Double Pane Windows, Fire Sprinkler System, Pantry, Programmable Thermostat, Quartz Counters, Smoke Detectors, Split Bedrooms, Vinyl Windows, Walk-In Closets
- Pool features:Community Pool
Parking
- Parking description:Attached, Concrete Driveway, Garage, Garage Door Opener
- Garage:Yes
New listings near 4411 S 88th Street
- New
$530,000Active4 beds 3 baths2,265 sq. ft.3200 SW Satinwood, Bentonville, AR 72712
MLS# 1344235Listed by: KELLER WILLIAMS MARKET PRO REALTY BRANCH OFFICE - New
$775,000Active4 beds 3 baths3,054 sq. ft.3 David Drive, Bentonville, AR 72712
MLS# 1344238Listed by: CRYE-LEIKE REALTORS-BELLA VISTA - New
$1,299,900Active4 beds 5 baths3,925 sq. ft.111 NW Trail Ridge Road, Bentonville, AR 72712
MLS# 1344026Listed by: WEICHERT, REALTORS GRIFFIN COMPANY BENTONVILLE - New
$239,726Active3 beds 3 baths1,250 sq. ft.501 Discovery Avenue, Bentonville, AR 72713
MLS# 1344163Listed by: SCHUBER MITCHELL REALTY - New
$1,850,000Active5 beds 5 baths5,866 sq. ft.1602 NE Chapel Hill Drive, Bentonville, AR 72712
MLS# 1344170Listed by: REAL BROKER NWA - New
$239,726Active3 beds 3 baths1,250 sq. ft.531 Discovery Avenue, Bentonville, AR 72713
MLS# 1344181Listed by: SCHUBER MITCHELL REALTY - New
$239,549Active2 beds 3 baths1,250 sq. ft.521 Discovery Avenue, Bentonville, AR 72713
MLS# 1344189Listed by: SCHUBER MITCHELL REALTY - Open Sun, 2 to 4pmNew
$515,000Active3 beds 2 baths2,156 sq. ft.4 Grassland Court, Bentonville, AR 72712
MLS# 1343707Listed by: KELLER WILLIAMS MARKET PRO REALTY BRANCH OFFICE - New
$395,000Active4 beds 2 baths1,883 sq. ft.1704 Been Road, Bentonville, AR 72713
MLS# 1344131Listed by: KELLER WILLIAMS MARKET PRO REALTY - ROGERS BRANCH - New
$1,990,000Active4 beds 5 baths3,098 sq. ft.207 NE H Street, Bentonville, AR 72712
MLS# 1343648Listed by: WEICHERT, REALTORS GRIFFIN COMPANY BENTONVILLE