719 Waco St, Camden, AR 71701
Local realty services provided by:CENTURY 21 Combs & Associates Real Estate
719 Waco St,Camden, AR 71701
$155,000
- 3 Beds
- 2 Baths
- 1,327 sq. ft.
- Single family
- Active
Listed by: hannah moore
Office: southern realty group - camden branch
MLS#:26013348
Source:AR_CARMLS
Price summary
- Price:$155,000
- Price per sq. ft.:$116.8
About this home
This solid brick home offers comfort, functionality, and thoughtful updates throughout. Nestled on a shady, level lot, the property provides a welcoming outdoor setting complete with a covered back patio—perfect for relaxing or entertaining. Inside, you’ll find a fresh, modern color palette that creates a bright and inviting atmosphere. The spacious laundry area doubles as a practical entry point, leading to a convenient mudroom—ideal for keeping everyday life organized. Recent upgrades include a brand-new roof (2024) and newer energy-efficient windows, adding peace of mind and helping reduce utility costs. For those with recreational vehicles or extra equipment, the property also features an RV outlet and protective cover. A well-maintained home with valuable updates and versatile features—ready for its next owner to enjoy.
Contact an agent
Home facts
- Year built:1953
- Listing ID #:26013348
- Added:1 day(s) ago
- Updated:April 07, 2026 at 01:52 AM
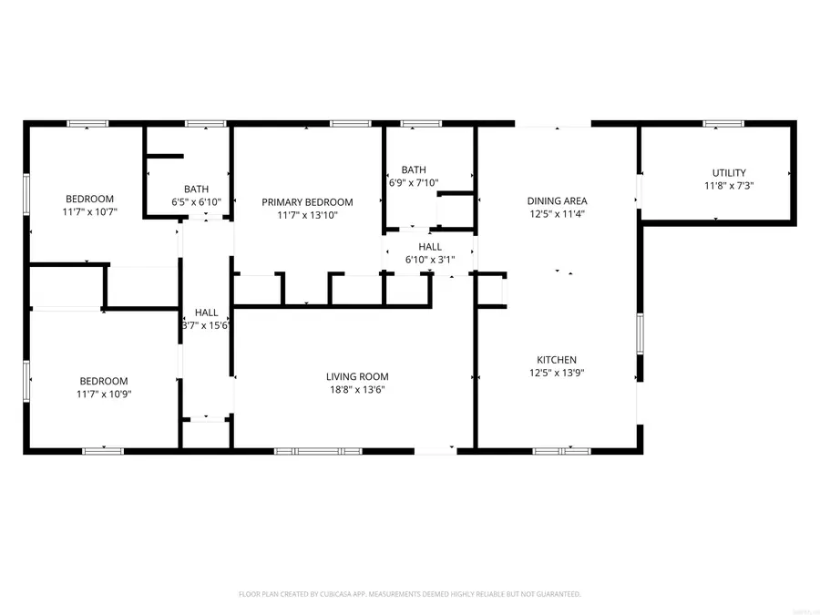
Rooms and interior
- Bedrooms:3
- Total bathrooms:2
- Full bathrooms:2
- Flooring:Carpet, Laminate
- Dining Description:Kitchen/Dining Combo
- Kitchen Description:Dishwasher, Electric Range, Refrigerator-Stays
- Bedroom Description:3 Bedrooms Same Level
- Living area:1,327 sq. ft.
Heating and cooling
- Cooling:Central Cool-Electric
- Heating:Central Heat-Gas
Structure and exterior
- Roof:Architectural Shingle
- Year built:1953
- Building area:1,327 sq. ft.
- Lot area:0.52 Acres
- Lot Features:Level
- Architectural Style:Ranch
- Construction Materials:Brick, Metal/Vinyl Siding
- Exterior Features:Covered Patio
- Foundation Description:Crawl Space
- Levels:1 Story
Schools
- High school:Camden/Fairview
- Middle school:Camden/Fairview
- Elementary school:Camden/Fairview
Utilities
- Water:Water Heater-Gas, Water-Public
- Sewer:Sewer-Public
Finances and disclosures
- Price:$155,000
- Price per sq. ft.:$116.8
- Tax amount:$661 (2025)
Features and amenities
- Appliances:Dishwasher, Electric Range
- Laundry features:Dryer Connection-Electric, Laundry Room, Washer Connection
Parking
- Parking description:Carport, One Car
New listings near 719 Waco St
- New
$6,450Active0.25 AcresTBD Cook Street, Camden, AR 71701
MLS# 1088116Listed by: REMAX REAL ESTATE RESULTS - New
$6,450Active0.25 AcresLot 10 and Lot 39 Cook, Camden, AR 71701
MLS# 1341452Listed by: REMAX REAL ESTATE RESULTS - New
$5,500Active0.18 Acres520 Oklahoma Street, Camden, AR 71701
MLS# 1088108Listed by: REMAX REAL ESTATE RESULTS - New
$3,850Active0.17 Acres407 NW Agee Avenue, Camden, AR 71701
MLS# 1088089Listed by: REMAX REAL ESTATE RESULTS - New
$1,495Active0.13 Acres396 SW Beech, Camden, AR 71701
MLS# 26012620Listed by: RE/MAX REAL ESTATE RESULTS - New
$1,495Active0.13 Acres396 SW Beech Avenue, Camden, AR 71701
MLS# 1088086Listed by: REMAX REAL ESTATE RESULTS - New
$595,000Active5 beds 5 baths5,042 sq. ft.1265 Hollow Hills, Camden, AR 71701
MLS# 26012603Listed by: KELLER WILLIAMS REALTY - New
$159,990Active2 beds 2 baths1,115 sq. ft.475 Hawkins, Camden, AR 71701
MLS# 26012578Listed by: PINK RIBBON REALTY - New
$6,495Active0.28 Acres618 SE Secession Avenue, Camden, AR 71701
MLS# 1088076Listed by: REMAX REAL ESTATE RESULTS