16793 E Kettle Avenue, Centennial, CO 80016
Local realty services provided by:CENTURY 21 Trenka Real Estate
16793 E Kettle Avenue,Centennial, CO 80016
$717,900
- 4 Beds
- 4 Baths
- 2,581 sq. ft.
- Single family
- Active
Listed by: tom ullrich
Office: re/max professionals
MLS#:1777431
Source:ML
Price summary
- Price:$717,900
- Price per sq. ft.:$278.15
- Monthly HOA dues:$44
About this home
**Contact builder today about Special Financing for this home - terms and conditions apply**
Anticipated Completion May 2026!
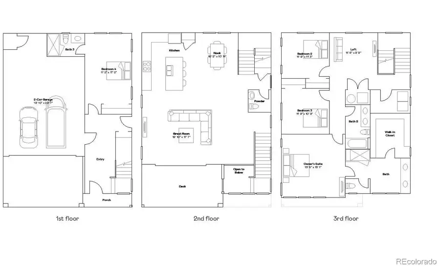
Gorgeous Overlook 3-story in the brand new Vermilion community is Northeast facing and features 4 beds (3 upper / 1 lower), 3.5 baths, loft, great room, kitchen, 2.5 car garage and crawlspace. Gorgeous finishes and upgrades throughout including Quartz package, luxury vinyl plank flooring, stainless steel appliances, spacious balcony and more. The builder provides the latest in energy efficiency and state of the art technology with several fabulous floorplans to choose from. Energy efficiency, and technology/connectivity seamlessly blended with luxury to make your new house a home. Vermilion Creek offers single family homes for every lifestyle. Close to dining, shopping, entertainment and other amenities. Photos are model only and subject to change. Finishes subject to change. Private Fencing included with this home. Adjacent to community green area. Enjoy easy access to Tagawa Gardens, nearby Trails and Cherry Creek schools....
Contact an agent
Home facts
- Year built:2026
- Listing ID #:1777431
Rooms and interior
- Bedrooms:4
- Total bathrooms:4
- Full bathrooms:1
- Half bathrooms:1
- Flooring:Carpet, Tile, Vinyl
- Kitchen Description:Dishwasher, Disposal, Kitchen Island, Microwave, Refrigerator
- Basement:Yes
- Basement Description:Crawl Space
- Living area:2,581 sq. ft.
Heating and cooling
- Cooling:Central Air
- Heating:Electric
- Central air:Yes
Structure and exterior
- Roof:Composition
- Year built:2026
- Building area:2,581 sq. ft.
- Lot area:0.06 Acres
- Construction Materials:Frame
- Exterior Features:Front Porch
- Levels:3 or More Stories
Schools
- High school:Grandview
- Middle school:Liberty
- Elementary school:Red Hawk Ridge
Utilities
- Water:Public
- Sewer:Public Sewer
Finances and disclosures
- Price:$717,900
- Price per sq. ft.:$278.15
- Tax amount:$8,471 (2025)
Features and amenities
- Laundry features:In Unit
- Amenities:Carbon Monoxide Detector(s), Double Pane Windows, Smoke Detector(s)
Parking
- Total parking spaces:2
- Parking description:Concrete Driveway
- Garage:Yes
- Garage spaces:2
New listings near 16793 E Kettle Avenue
- New
$385,000Active2 beds 2 baths1,568 sq. ft.8030 S Columbine Ct, Centennial, CO 80122
MLS# 9223677Listed by: H&CO Real Estate LLC - New
$385,000Active2 beds 2 baths1,568 sq. ft.8030 S Columbine Court, Centennial, CO 80122
MLS# 9223677Listed by: H&CO REAL ESTATE LLC - Open Sat, 11am to 2pmNew
$825,000Active5 beds 3 baths2,681 sq. ft.7713 E Jamison Drive, Centennial, CO 80112
MLS# 4615520Listed by: COMPASS - DENVER - Open Sat, 12 to 2pmNew
$950,000Active6 beds 4 baths3,285 sq. ft.6360 S Jasmine Way, Centennial, CO 80111
MLS# 1842153Listed by: HomeSmart - Open Sat, 11am to 2pmNew
$892,000Active4 beds 3 baths3,029 sq. ft.8510 E Nichols Avenue, Centennial, CO 80112
MLS# 6487987Listed by: RE/MAX PROFESSIONALS - Open Sun, 12 to 4pmNew
$800,000Active6 beds 5 baths4,026 sq. ft.6424 S Jericho Circle, Centennial, CO 80016
MLS# 1837435Listed by: EXIT REALTY DTC, CHERRY CREEK, PIKES PEAK. - New
$889,000Active4 beds 3 baths3,108 sq. ft.7821 S Clayton Way, Centennial, CO 80122
MLS# 3434177Listed by: THE STELLER GROUP, INC - New
$950,000Active9 beds 6 baths5,936 sq. ft.5702 S Pearl Street, Littleton, CO 80121
MLS# 4342198Listed by: PINNACLE REAL ESTATE ADVISORS - New
$490,000Active4 beds 2 baths1,888 sq. ft.6673 S Dahlia Cir, Centennial, CO 80121
MLS# 3531543Listed by: Colorado Home Road - Open Sat, 1 to 3pmNew
$745,000Active5 beds 4 baths4,536 sq. ft.22668 E Lake Place, Centennial, CO 80015
MLS# 5782513Listed by: RE/MAX PROFESSIONALS