1790 Drumming Drive, Windsor, CO 80550
Local realty services provided by:CENTURY 21 Trenka Real Estate
1790 Drumming Drive,Windsor, CO 80550
$529,200
- 4 Beds
- 2 Baths
- 1,672 sq. ft.
- Single family
- Active
Listed by: rob kittle9704604444
Office: kittle real estate
MLS#:IR1053591
Source:ML
Price summary
- Price:$529,200
- Price per sq. ft.:$316.51
About this home
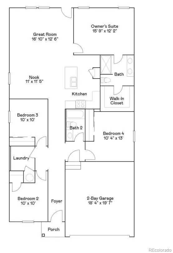
***Contact builder today about Special Financing for this home - terms and conditions apply** Welcome to this beautifully designed ranch-style home in Windsor's Prairie Song community, ideally situated backing to open space and a scenic trail corridor for added privacy and outdoor enjoyment. Inside, the open layout creates an inviting flow between the kitchen, dining nook, and spacious great room, making everyday living and entertaining effortless. The kitchen features a large center island and convenient access to the main living areas, keeping everything connected and functional. The owner's suite is privately positioned at the back of the home and includes a well-appointed bathroom and a generous walk-in closet. Three additional bedrooms provide flexible space for family, guests, or a home office, while the nearby full bathroom serves the secondary bedrooms with ease. A centrally located laundry room adds everyday convenience. Future amenities are planned to enhance life in Prairie Song, including The Nest Lifestyle Center, a community gathering hub with flexible indoor spaces, a fitness area, pool house, and outdoor patios designed for events, recreation, and connection. The surrounding park is envisioned to feature open green space, pickleball courts, play structures, an amphitheater, and scenic neighborhood trails. Construction is currently anticipated to begin in 2027, with the lifestyle center and park expected to be completed in 2028 and a resort-style pool projected to open around Memorial Day 2029. Just minutes from Downtown Windsor, Windsor Lake, and I-25 for easy commuting. Estimated completion is May 2026...
Contact an agent
Home facts
- Year built:2026
- Listing ID #:IR1053591
Rooms and interior
- Bedrooms:4
- Total bathrooms:2
- Full bathrooms:1
- Kitchen Description:Dishwasher, Disposal, Eat-in Kitchen, Kitchen Island, Microwave, Oven, Pantry, Refrigerator
- Basement:Yes
- Basement Description:Crawl Space
- Living area:1,672 sq. ft.
Heating and cooling
- Cooling:Central Air
- Heating:Forced Air
- Central air:Yes
Structure and exterior
- Roof:Composition
- Year built:2026
- Building area:1,672 sq. ft.
- Lot area:0.14 Acres
- Lot Features:Open Space, Sprinklers In Front
- Construction Materials:Frame
- Levels:1 Story
Schools
- High school:Windsor
- Middle school:Other
- Elementary school:Grand View
Utilities
- Water:Public
Finances and disclosures
- Price:$529,200
- Price per sq. ft.:$316.51
- Tax amount:$4,481 (2025)
Features and amenities
- Laundry features:In Unit
- Amenities:Smoke Detector(s)
Parking
- Total parking spaces:2
- Garage:Yes
- Garage spaces:2
New listings near 1790 Drumming Drive
- New
$475,000Active4 beds 3 baths2,492 sq. ft.821 Mt Sneffels Ave, Severance, CO 80550
MLS# 1055623Listed by: Group Mulberry - Open Sat, 1 to 3pmNew
$575,000Active4 beds 3 baths3,347 sq. ft.2169 Longfin Dr, Windsor, CO 80550
MLS# 1055579Listed by: RE/MAX Alliance-Greeley - New
$550,000Active3 beds 3 baths2,308 sq. ft.670 Moonglow Dr, Windsor, CO 80550
MLS# 1055545Listed by: eXp Realty - Northern CO - New
$475,000Active5 beds 3 baths2,208 sq. ft.414 14th Street, Windsor, CO 80550
MLS# IR1055522Listed by: RAD REAL ESTATE - New
$775,000Active5 beds 4 baths3,772 sq. ft.1858 Holloway Dr, Windsor, CO 80550
MLS# 9484793Listed by: Real Broker, LLC DBA Real - New
$599,950Active6 beds 5 baths3,809 sq. ft.479 Mt Belford Drive, Severance, CO 80550
MLS# IR1055442Listed by: GRIMES REAL ESTATE - New
$465,000Active3 beds 3 baths2,532 sq. ft.717 Oak Street, Windsor, CO 80550
MLS# IR1055422Listed by: C3 REAL ESTATE SOLUTIONS, LLC - Open Sun, 12 to 2pmNew
$569,900Active4 beds 3 baths2,073 sq. ft.1774 Drumming Dr, Windsor, CO 80550
MLS# 5999457Listed by: Kittle Real Estate
$1,662,338Pending4 beds 4 baths4,758 sq. ft.975 Warbling Dr, Windsor, CO 80550
MLS# 1055339Listed by: RE/MAX Alliance-FTC South- New
$380,000Active3 beds 3 baths1,612 sq. ft.1692 Grand Ave #2, Windsor, CO 80550
MLS# 1055308Listed by: eXp Realty - Estes Park