34061 Red Oak Dr, Frankford, DE 19945
Local realty services provided by:CENTURY 21 New Millennium
34061 Red Oak Dr,Frankford, DE 19945
$210,000
- 3 Beds
- 2 Baths
- - sq. ft.
- Mobile / Manufactured
- Sold
Listed by: kathryn r landon
Office: coldwell banker realty
MLS#:DESU2105938
Source:BRIGHTMLS
Sorry, we are unable to map this address
Price summary
- Price:$210,000
About this home
Please submit Best and Final Offers by Noon 12pm Monday March 9, 2026.
3 Bedroom, 2 Bath Home on 0.5 Acre – Great Bones & Ready for Your Vision!
This 3 bedroom, 2 bath home sits on half an acre with the convenience of public sewer, offering space, privacy, and a fantastic opportunity for anyone looking to invest or create their ideal home.
Major updates have already been taken care of, including:
Roof under 10 years old
HVAC system only 3 years old
Hot water heater replaced 1.5 years ago
The home does need TLC, making it perfect for buyers who want to add personal touches or renovate to their style. With solid mechanical systems and a great lot size, this property has tremendous potential at an attractive value.
Bring your creativity and make this home shine again!
Contact an agent
Home facts
- Year built:1987
- Listing ID #:DESU2105938
- Added:32 day(s) ago
- Updated:March 30, 2026 at 05:59 AM
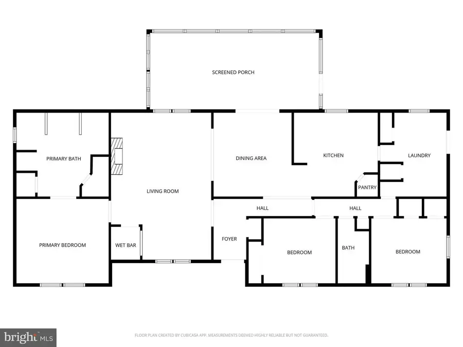
Rooms and interior
- Bedrooms:3
- Total bathrooms:2
- Full bathrooms:2
- Rooms Total:10
- Flooring:Carpet, Hardwood, Vinyl
- Dining Description:Dining Room
- Kitchen Description:Breakfast Area, Dishwasher, Exhaust Fan, Kitchen - Island, Oven/Range - Electric, Range Hood, Refrigerator, Water Heater, Wet/Dry Bar
- Bedroom Description:Additional Bedroom, Entry Level Bedroom, Primary Bedroom
Heating and cooling
- Cooling:Central A/C
- Heating:Forced Air, Propane - Leased
Structure and exterior
- Roof:Asphalt, Shingle
- Year built:1987
- Lot Features:Cleared, Landscaping
- Architectural Style:Ranch/Rambler
- Construction Materials:Modular/Manufactured, Wood Siding
- Exterior Features:Outbuilding(s), Porch(es), Screened
- Foundation Description:Block, Crawl Space
- Levels:1 Story
Utilities
- Water:Well
- Sewer:Public Sewer
Finances and disclosures
- Price:$210,000
Features and amenities
- Laundry features:Dryer - Electric, Dryer In Unit, Laundry, Washer, Washer In Unit
- Amenities:Ceiling Fan(s), Wet/Dry Bar, Window Treatments
Parking
- Parking description:Off Street, On Street
New listings near 34061 Red Oak Dr
- New
$669,900Active3 beds 3 baths2,710 sq. ft.34496 White Cap Pt, FRANKFORD, DE 19945
MLS# DESU2108786Listed by: RE/MAX REALTY GROUP REHOBOTH - Coming Soon
$319,900Coming Soon3 beds 3 baths38288 Morning Glory Ct #24, FRANKFORD, DE 19945
MLS# DESU2108828Listed by: LONG & FOSTER REAL ESTATE, INC. - New
$485,000Active4 beds 4 baths2,600 sq. ft.33900 Ardwell Rd, FRANKFORD, DE 19945
MLS# DESU2108600Listed by: LONG & FOSTER REAL ESTATE, INC. - New
$224,900Active3 beds 2 baths1,150 sq. ft.32229 Hidden Acre Dr, FRANKFORD, DE 19945
MLS# DESU2108772Listed by: LONG & FOSTER REAL ESTATE, INC. - Coming Soon
$572,500Coming Soon4 beds 3 baths32503 W Haven Wood Dr, FRANKFORD, DE 19945
MLS# DESU2108740Listed by: COLDWELL BANKER REALTY - Coming Soon
$355,000Coming Soon3 beds 3 baths38415 Driftwood #607, FRANKFORD, DE 19945
MLS# DESU2107934Listed by: IRON VALLEY REAL ESTATE AT THE BEACH - New
$403,705Active4 beds 3 baths1,953 sq. ft.21389 Cottage Ct, FRANKFORD, DE 19945
MLS# DESU2108440Listed by: D.R. HORTON REALTY OF DELAWARE, LLC - Open Sun, 12 to 2pmNew
$595,000Active4 beds 3 baths2,550 sq. ft.36427 Bunker Ct, FRANKFORD, DE 19945
MLS# DESU2108292Listed by: RLAH REAL ESTATE - New
$785,000Active4 beds 3 baths3,200 sq. ft.33997 N Hampton Cir, FRANKFORD, DE 19945
MLS# DESU2108268Listed by: EXP REALTY, LLC
$650,000Pending3 beds 3 baths1,600 sq. ft.34008 Anna Maria Dr #115, FRANKFORD, DE 19945
MLS# DESU2108150Listed by: RLAH @PROPERTIES