3900 W Shamrock, Tallahassee, FL 32309
Local realty services provided by:CENTURY 21 First Story Real Estate
Listed by: suzanne mcghee
Office: mattox realty, inc
MLS#:396448
Source:FL_TBR
Price summary
- Price:$695,000
- Price per sq. ft.:$275.9
About this home
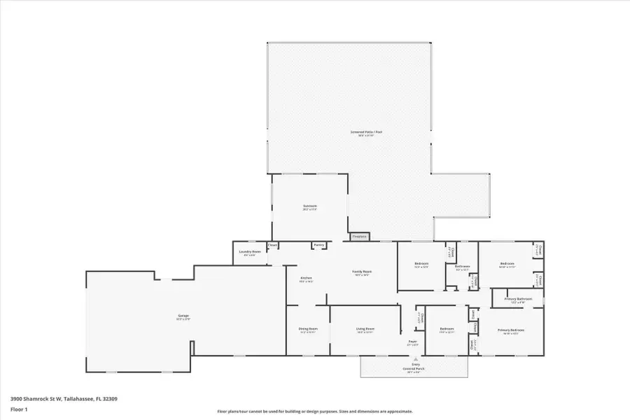
One or more photo(s) has been virtually staged. Beautifully updated and move-in ready, 4BR/2.5BA pool home. Very flexible floor plan with plenty of space to arrange this home as needed for your lifestyle... Welcoming foyer opens to a light filled Living/Dining room. Kitchen with plenty of cabinets and counters space opens to the family room and sunroom. So many options for the large garage, ~52x27 (see floor plan) space can be separated by garage doors, each section has a mini split system, 2 sets of garage doors, great for a workshop, pets, extra play space... Screened-in pool and patio offers a beautiful outdoor living space + a firepit in the privacy fenced yard. Whole house generator and crawl space encapsulated. Privacy fenced backyard offers space for playing, pets, gardening... Side entry garage from Cahir Dr.
Contact an agent
Home facts
- Year built:1977
- Listing ID #:396448
- Added:61 day(s) ago
- Updated:April 23, 2026 at 03:11 PM
Rooms and interior
- Bedrooms:4
- Total bathrooms:3
- Full bathrooms:2
- Half bathrooms:1
- Flooring:Tile
- Kitchen Description:Dishwasher, Ice Maker, Oven, Pantry, Range, Refrigerator
- Living area:2,519 sq. ft.
Heating and cooling
- Cooling:Ceiling Fans, Central Air, Ductless, Electric
- Heating:Central, Ductless, Electric, Natural Gas, Wood
- Central air:Yes
Structure and exterior
- Year built:1977
- Building area:2,519 sq. ft.
- Lot area:0.65 Acres
- Architectural Style:Traditional
- Construction Materials:Brick
- Exterior Features:Deck, Patio, Porch, Screened
- Foundation Description:Crawlspace
- Levels:1 Story
Schools
- High school:CHILES
- Middle school:William J. Montford Middle School
- Elementary school:DESOTO TRAIL
Utilities
- Sewer:Public Sewer
Finances and disclosures
- Price:$695,000
- Price per sq. ft.:$275.9
Features and amenities
- Amenities:Entrance Foyer, Window Treatments
- Pool features:In Ground, Liner, Screen Enclosure, Vinyl
Parking
- Parking description:Three Car Garage
- Garage:Yes
- Garage spaces:3
New listings near 3900 W Shamrock
- New
$665,000Active4 beds 3 baths2,872 sq. ft.2250 Cobb Drive, Tallahassee, FL 32312
MLS# B26019549Listed by: SUNNY AND ASSOCIATES - New
$685,000Active3 beds 2 baths1,820 sq. ft.22545 Frances Way, Tallahassee, FL 32310
MLS# 399046Listed by: MATTOX REALTY, INC - New
$360,000Active-- beds -- baths2,040 sq. ft.2517 Old Bainbridge Road, Tallahassee, FL 32303
MLS# 399047Listed by: FENSTERMAKER & ASSOCIATES REAL - New
$125,000Active1 AcresLot 27 Barbary Dr, Tallahassee, FL 32309
MLS# 328128Listed by: SEA CREST REAL ESTATE, INC. - Open Sun, 2 to 4pmNew
$300,000Active3 beds 2 baths1,564 sq. ft.3837 Windermere Road, Tallahassee, FL 32311
MLS# 399037Listed by: KELLER WILLIAMS TOWN & COUNTRY - New
$365,000Active3 beds 2 baths1,943 sq. ft.2430 Beautyberry Court, Tallahassee, FL 32308
MLS# 398831Listed by: KELLER WILLIAMS TOWN & COUNTRY - New
$550,000Active4 beds 3 baths2,272 sq. ft.3444 Rosemont Ridge Road, Tallahassee, FL 32312
MLS# 398796Listed by: KELLER WILLIAMS TOWN & COUNTRY - New
$242,500Active2 beds 2 baths1,308 sq. ft.3076 Royal Palm Way, Tallahassee, FL 32309
MLS# 399030Listed by: THE NAUMANN GROUP REAL ESTATE - New
$265,000Active3 beds 2 baths1,218 sq. ft.828 Mcguire Avenue, Tallahassee, FL 32303
MLS# 399022Listed by: MAGNOLIA PROPERTIES&INVESTMENT - New
$384,000Active4 beds 3 baths2,005 sq. ft.2288 Wabash Trail, Tallahassee, FL 32303
MLS# 399023Listed by: KELLER WILLIAMS TOWN & COUNTRY