2649 Northside Drive Nw, Atlanta, GA 30305
Local realty services provided by:CENTURY 21 Novus
2649 Northside Drive Nw,Atlanta, GA 30305
$595,000
- 0.57 Acres
- Lots / Land
- Active
Listed by: neal w heery
Office: atlanta fine homes sotheby's international
MLS#:7685515
Source:FIRSTMLS
Price summary
- Price:$595,000
About this home

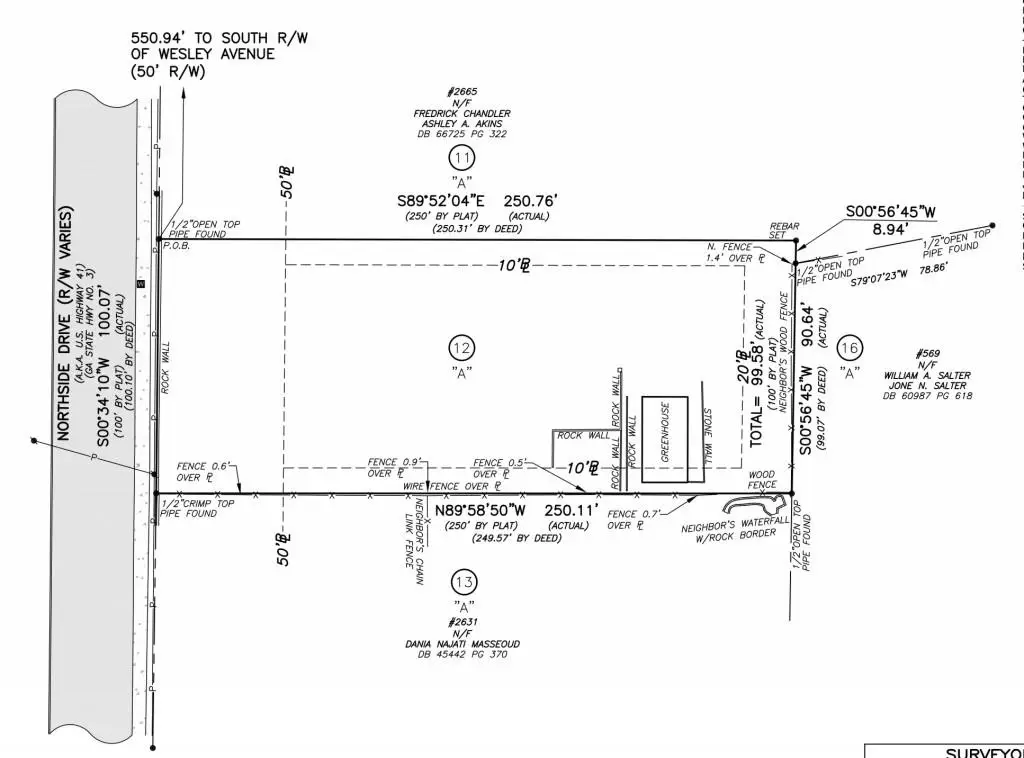
Bring all offers. Located in the prestigious Haynes Manor neighborhood, this rare, never-developed lot at 2649 Northside Drive NW presents a prime opportunity to build a custom residence in one of Buckhead's most established communities. Spanning approximately 0.57 acres, the property offers a rectangular footprint and favorable topography suited for a main-level walkout to a pool, with potential for downtown skyline views. Site work is straightforward and manageable: a driveway cut from Northside Drive can be designed left to right to moderate the grade, and utilities are accessible via an existing easement at the rear of the lot connecting to Westover Drive. Surrounded by stately homes and tree-lined streets, Haynes Manor is known for its timeless architecture and proximity to the Atlanta BeltLine and Bobby Jones Golf Course. Convenient access to parks, dining, and Buckhead amenities further enhances the appeal. A strong opportunity for a well-executed build. Please park on Westover Drive and walk up. There is no driveway in place access requires walking up the hill to the sign. Wear appropriate shoes and ensure you are comfortable with the incline for both ascent and descent....
Contact an agent
Home facts
- Listing ID #:7685515
- Updated:April 25, 2026 at 01:28 PM
Structure and exterior
- Lot area:0.57 Acres
- Lot Features:Rolling Slope
Schools
- High school:North Atlanta
- Middle school:Willis A. Sutton
- Elementary school:Morris Brandon
Finances and disclosures
- Price:$595,000
- Tax amount:$7,298 (2025)
New listings near 2649 Northside Drive Nw
- New
$2,995,000Active5 beds 8 baths9,000 sq. ft.82 Blackland Road Nw, Atlanta, GA 30342
MLS# 7759535Listed by: HOME LUXURY REAL ESTATE - New
$482,000Active3 beds 2 baths1,376 sq. ft.11 Walthall Street Se, Atlanta, GA 30317
MLS# 7759505Listed by: NORLUXE REALTY ATLANTA - New
$375,000Active3 beds 4 baths1,326 sq. ft.1232 Liberty Parkway Nw, Atlanta, GA 30318
MLS# 7759527Listed by: ATLANTA FINE HOMES SOTHEBY'S INTERNATIONAL - Coming Soon
$1,250,000Coming Soon4 beds 3 baths3902 Peachtree Dunwoody Road Ne, Atlanta, GA 30342
MLS# 7759550Listed by: KELLER WILLIAMS REALTY ATL PERIMETER - New
$325,000Active3 beds 2 baths1,559 sq. ft.2074 Morehouse Drive, Atlanta, GA 30314
MLS# 7759553Listed by: KELLER WILLIAMS REALTY METRO ATLANTA - New
$280,000Active4 beds 2 baths2,590 sq. ft.2892 Keats Drive Sw, Atlanta, GA 30311
MLS# 7759568Listed by: OPENDOOR BROKERAGE, LLC - New
$59,654Active0.73 Acres3114 Lovell Drive, Atlanta, GA 30311
MLS# 10741066Listed by: Keller Williams Realty Atl. Partners - New
$420,000Active2 beds 2 baths2,242 sq. ft.244 Peters Street #5, Atlanta, GA 30313
MLS# 10741093Listed by: Ansley RE | Christie's Int'l RE - New
$625,000Active3 beds 3 baths3,000 sq. ft.3648 Peachtree Road #4S, Atlanta, GA 30319
MLS# 7759547Listed by: CHAPMAN HALL REALTORS - Coming Soon
$650,000Coming Soon3 beds 3 baths2139 Mauldin St Nw, Atlanta, GA 30318
MLS# 7758428Listed by: KELLER WILLIAMS BUCKHEAD