45 Cypress Loop, Port Wentworth, GA 31407
Local realty services provided by:CENTURY 21 The Realty Group
Listed by: kathy ballowe, kristy theiling
Office: dr horton realty of georgia
MLS#:SA347179
Source:NC_CCAR
Price summary
- Price:$360,990
- Price per sq. ft.:$187.33
About this home
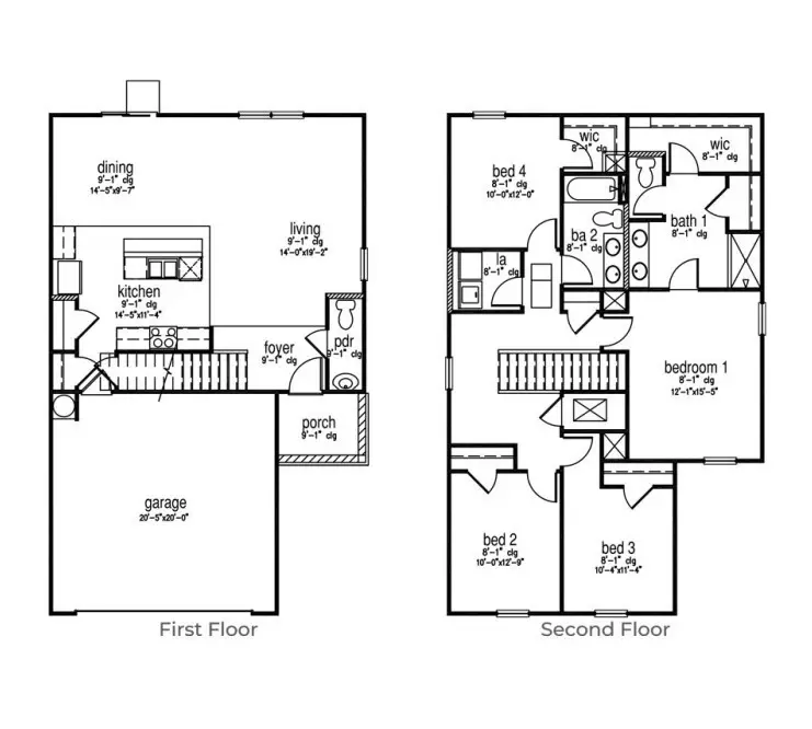
Welcome to Rice Hope - Port Wentworth's highly sought after resort style amenity rich neighborhood! Close proximity to the Park! This 4-bedroom 2.5 bath home is 2 story living at its finest. The main level features a LARGE kitchen with ample cabinetry, counter space, pantry, center island, & stainless-steel appliances including a refrigerator! The kitchen is OPEN to the generous living area w/ family room & dining area - perfect for entertaining! The second level is home to the large primary suite complete w/ double vanity, spacious walk-in shower, separate water closet, & HUGE walk-in closet! This home boasts Quartz Countertops throughout, 9' Ceilings on main level, 42" Cabinets w/ Upgraded Hardware, 51/4" Baseboards, Smart Home Technology & 2" Faux Wood Blinds. Pictures, photographs, colors, features, & sizes are for illustration purposes only & will vary from the homes as built. **Ask how to receive up to $8,500 towards closing cost w/ use of preferred lender.**
Contact an agent
Home facts
- Year built:2026
- Listing ID #:SA347179
- Added:123 day(s) ago
- Updated:May 23, 2026 at 10:11 AM
Rooms and interior
- Bedrooms:4
- Total bathrooms:3
- Full bathrooms:2
- Half bathrooms:1
- Rooms Total:1
- Kitchen Description:Dishwasher, Disposal, Kitchen Island, Microwave, Pantry, Range, Refrigerator
- Living area:1,927 sq. ft.
Heating and cooling
- Cooling:Central Air
- Heating:Electric, Heating
- Central air:Yes
Structure and exterior
- Year built:2026
- Building area:1,927 sq. ft.
- Lot area:0.13 Acres
- Architectural Style:Traditional
- Construction Materials:Vinyl Siding
- Exterior Features:Covered, Patio
- Foundation Description:Slab
Schools
- High school:Groves
- Middle school:Rice Creek
- Elementary school:Rice Creek
Finances and disclosures
- Price:$360,990
- Price per sq. ft.:$187.33
Features and amenities
- Appliances:Dishwasher, Disposal, Range, Refrigerator
- Laundry features:Laundry Room, Washer Hookup
- Smart home:Yes
Parking
- Parking description:Attached, Garage Door Opener, Off Street
- Garage:Yes
- Garage spaces:2
New listings near 45 Cypress Loop
- New
$365,000Active4 beds 3 baths2,382 sq. ft.235 Cold Creek Loop, Port Wentworth, GA 31407
MLS# SA356599Listed by: BRAND NAME REAL ESTATE, INC - New
$369,900Active4 beds 3 baths1,967 sq. ft.522 Flat Rock Trace, Port Wentworth, GA 31407
MLS# SA356422Listed by: EXP REALTY LLC - New
$182,000Active3 beds 1 baths208 Turnberry Street, Port Wentworth, GA 31407
MLS# 10766827Listed by: Next Move Real Estate
$350,190Pending3 beds 3 baths1,749 sq. ft.395 Flat Rock Trace, Port Wentworth, GA 31407
MLS# SA356310Listed by: DR HORTON REALTY OF GEORGIA
$399,990Pending5 beds 3 baths2,511 sq. ft.378 Flat Rock Trace, Port Wentworth, GA 31407
MLS# SA356314Listed by: DR HORTON REALTY OF GEORGIA- New
$429,900Active5 beds 3 baths2,956 sq. ft.104 Fenway Street, Savannah, GA 31407
MLS# 10766002Listed by: Virtual Properties Realty.com - Open Sat, 2 to 4pmNew
$345,000Active4 beds 3 baths2,164 sq. ft.203 Dogwood Circle, Port Wentworth, GA 31407
MLS# SA356154Listed by: REALTY ONE GROUP INCLUSION - New
$335,000Active3 beds 3 baths2,190 sq. ft.514 Flat Rock Trace, Port Wentworth, GA 31407
MLS# SA355807Listed by: EIGHTEEN O'TWO REALTY LLC
$350,000Active4 beds 3 baths2,008 sq. ft.112 Moonlight Trail, Port Wentworth, GA 31407
MLS# 10759242Listed by: Century 21 Luxe Real Estate Services
$424,900Active5 beds 3 baths3,236 sq. ft.74 Noble Jones Court, Port Wentworth, GA 31407
MLS# 10758105Listed by: Rawls Realty Inc.