113 Garden Walk #91, West Point, GA 31833
Local realty services provided by:CENTURY 21 Adams-Harvey & Associates
113 Garden Walk #91,West Point, GA 31833
$269,940
- 3 Beds
- 3 Baths
- 1,700 sq. ft.
- Single family
- Active
Listed by: samuel bass
Office: dfh realty georgia
MLS#:10665191
Source:METROMLS
Price summary
- Price:$269,940
- Price per sq. ft.:$158.79
- Monthly HOA dues:$50
About this home
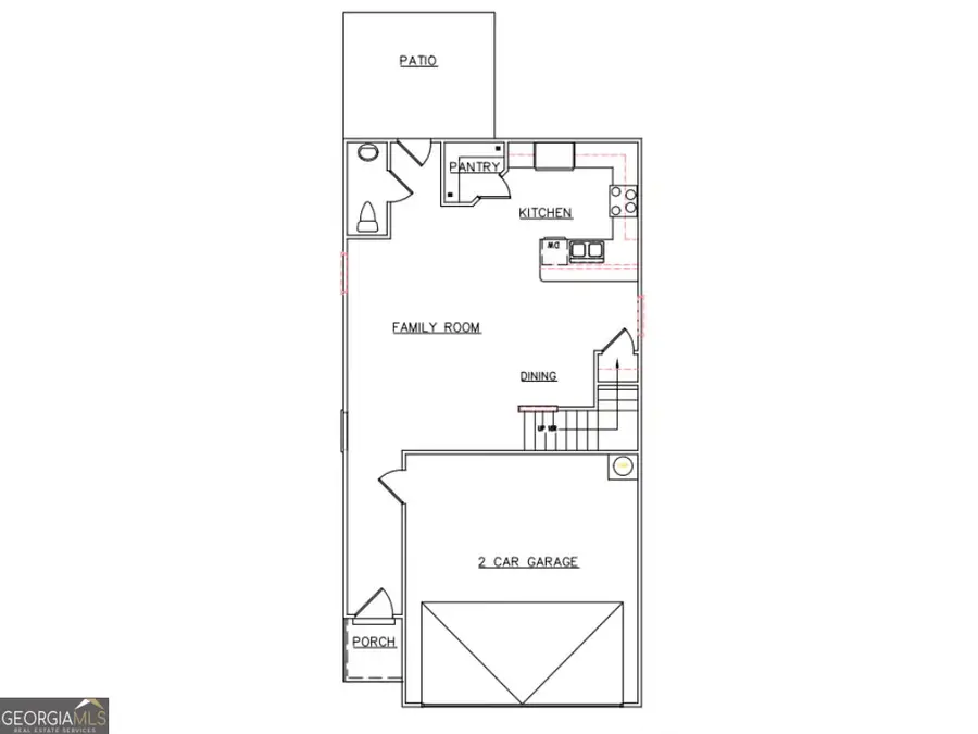
MOVE IN READY** Walking into the Nelson you will immediately feel the openness that is perfect for entertaining friends and family. The kitchen offers a lot of cabinet and granite countertops with eat in space, stainless steel appliances, large single bowl sink, and walk in pantry. The oversized family room is great for entertaining and has plenty of wall space for that extra-large TV you've been wanting! Upstairs you will find 3 oversized bedrooms including the primary suite. The primary suite has its own private bathroom with garden tub and separate shower, LED backlit mirrors. The other two bedrooms are situated on the opposite side of the home and share a guest bathroom with quick access to the loft area. Enjoy your rear 10x12 patio overlooking the backyard. To be built. Stock photos, colors and options may vary.
Contact an agent
Home facts
- Year built:2025
- Listing ID #:10665191
- Updated:April 24, 2026 at 10:52 AM
Rooms and interior
- Bedrooms:3
- Total bathrooms:3
- Full bathrooms:2
- Half bathrooms:1
- Flooring:Carpet, Vinyl
- Bathrooms Description:Double Vanity, Separate Shower
- Kitchen Description:Dishwasher, Microwave, Oven/Range (Combo), Stainless Steel Appliance(s)
- Bedroom Description:Walk-In Closet(s)
- Living area:1,700 sq. ft.
Heating and cooling
- Cooling:Ceiling Fan(s), Central Air
- Heating:Central
- Central air:Yes
Structure and exterior
- Roof:Composition
- Year built:2025
- Building area:1,700 sq. ft.
- Architectural Style:Traditional
- Construction Materials:Brick, Concrete, Rough-Sawn Lumber
- Foundation Description:Slab
- Levels:2 Story
Schools
- High school:Harris
- Middle school:Harris
- Elementary school:Mountain Hill
Utilities
- Water:Public
- Sewer:Public Sewer
Finances and disclosures
- Price:$269,940
- Price per sq. ft.:$158.79
- Tax amount:$555 (2025)
Features and amenities
- Appliances:Dishwasher, Gas Water Heater, Microwave, Oven/Range (Combo), Stainless Steel Appliance(s)
- Laundry features:Laundry, Upper Level
- Amenities:Gas Water Heater, Pulldown Attic Stairs
Parking
- Parking description:Attached, Garage
- Garage:Yes
New listings near 113 Garden Walk #91
- New
$269,900Active3 beds 2 baths2,271 sq. ft.1805 Us Highway 29, West Point, GA 31833
MLS# 10739065Listed by: J.T. Jones & Associates Realty - New
$167,500Active3 beds 2 baths1,418 sq. ft.1604 Us Hwy 29, West Point, GA 31833
MLS# 10736641Listed by: Southern Classic Realtors - New
$293,840Active4 beds 3 baths1,900 sq. ft.211 Harris Walk, West Point, GA 31833
MLS# 10734756Listed by: DFH Realty Georgia
$297,840Active4 beds 3 baths2,050 sq. ft.229 Harris Walk, West Point, GA 31833
MLS# 10730208Listed by: DFH Realty Georgia
$198,900Active3 beds 2 baths1,229 sq. ft.900 E 9th Street, West Point, GA 31833
MLS# 10727894Listed by: Coldwell Banker Spinks Brown
$219,900Active4 beds 2 baths1,657 sq. ft.797 Gabbettville Road, Lagrange, GA 30240
MLS# 10727982Listed by: Top Producers Realty
$174,900Active3 beds 2 baths1,157 sq. ft.506 E 6th Street, West Point, GA 31833
MLS# 10726565Listed by: Keller Williams River Cities
$269,440Active3 beds 2 baths1,280 sq. ft.212 Harris Walk, West Point, GA 31833
MLS# 10725621Listed by: DFH Realty Georgia
$150,000Active-- beds -- baths3,315 sq. ft.707 E 7th Street, WEST POINT, GA 31833
MLS# 230916Listed by: KELLER WILLIAMS AUBURN/OPELIKA
$278,590Active3 beds 3 baths1,700 sq. ft.225 Harris Walk, West Point, GA 31833
MLS# 10724120Listed by: DFH Realty Georgia