4403 N Maple Grove Rd, Boise, ID 83704
Local realty services provided by:CENTURY 21 Northstar
4403 N Maple Grove Rd,Boise, ID 83704
$550,000
- 0.97 Acres
- Lots / Land
- Active
Listed by: benjamin kneadlerMain: 208-229-2020
Office: nai select, llc.
MLS#:98978602
Source:ID_IMLS
Price summary
- Price:$550,000
About this home
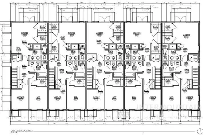
Located at 4403 N. Maple Grove Rd. in Boise, this offering presents the opportunity to acquire a development-ready site with approved plans for a new multifamily project consisting of a 5-plex and a 6-plex building. The proposed development features modern two-story residential units with attached garages, with unit sizes ranging from approximately 984 to 1,389 square feet, designed to provide spacious layouts and contemporary living. The site plan includes guest parking, bike racks, centralized mail facilities, and landscaped common areas, creating a well-planned residential environment. The seller is offering the opportunity for a buyer to purchase the land and have the seller construct the improvements, delivering a newly built multifamily project in a convenient Maple Grove corridor location with access to nearby retail, services, and major commuter routes.
Contact an agent
Home facts
- Listing ID #:98978602
- Added:15 day(s) ago
- Updated:April 04, 2026 at 02:10 PM
Structure and exterior
- Lot area:0.97 Acres
Finances and disclosures
- Price:$550,000
- Tax amount:$3,975 (2025)
New listings near 4403 N Maple Grove Rd
- New
$305,000Active2 beds 1 baths904 sq. ft.10534 W Fox Ridge Dr, Boise, ID 83709
MLS# 98980758Listed by: POINT REALTY LLC - New
$1Active3 beds 2 baths1,403 sq. ft.3385 N Creswell Way, Boise, ID 83713
MLS# 98980756Listed by: SILVERCREEK REALTY GROUP - New
$424,900Active3 beds 1 baths1,064 sq. ft.2171 N Hampton Rd., Boise, ID 83704
MLS# 98980752Listed by: BOISE PREMIER REAL ESTATE - New
$489,900Active3 beds 2 baths1,569 sq. ft.365 S Bumper Way, Boise, ID 83716
MLS# 98980723Listed by: JOHN L SCOTT BOISE - New
$559,990Active4 beds 2 baths1,872 sq. ft.4715 N Sorrento, Boise, ID 83704
MLS# 98980729Listed by: THG REAL ESTATE
$2,499,468Pending5 beds 5 baths5,065 sq. ft.6173 E Prominence Ct, Boise, ID 83716
MLS# 98980701Listed by: KELLER WILLIAMS REALTY BOISE- Open Sat, 11am to 1pmNew
$749,400Active3 beds 3 baths1,874 sq. ft.5612 W Grover St, Boise, ID 83705
MLS# 98980697Listed by: RE/MAX CAPITAL CITY - New
$1,200,000Active3.1 Acres5129 N Becker Ridge Ln, Boise, ID 83702
MLS# 98980712Listed by: WINDERMERE REAL ESTATE PROFESSIONALS - New
$559,900Active4 beds 3 baths2,009 sq. ft.6280 S Solar Way, Boise, ID 83709
MLS# 98980626Listed by: SWEET GROUP REALTY - Open Sat, 11am to 2pmNew
$799,000Active4 beds 3 baths2,666 sq. ft.10430 W La Hontan Dr, Boise, ID 83709
MLS# 98980630Listed by: SILVERCREEK REALTY GROUP