2502 Bloomington Road, East Peoria, IL 61611

Local realty services provided by:CENTURY 21 Community
2502 Bloomington Road,East Peoria, IL 61611
$70,000
  • 1.9 Acres
  • Lots / Land
  • Active
Listed by: matthew dionne
Office: gnomad realty llc.
MLS#:25014771
Source:MO_MARIS

Price summary

  • Price:$70,000

About this home

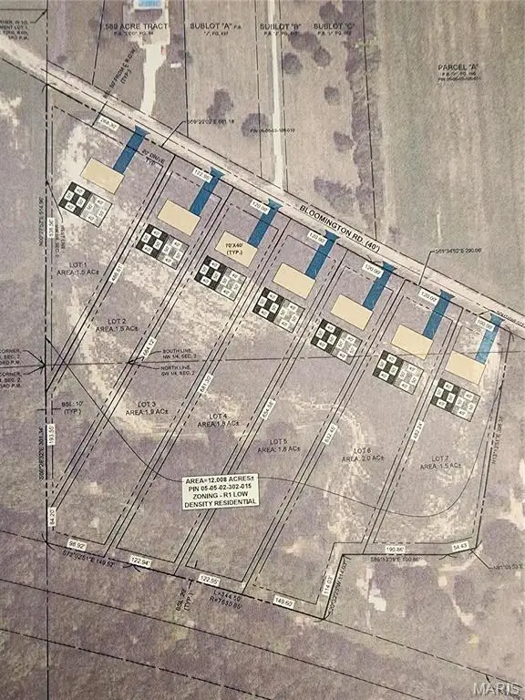
Discover the perfect blend of country living and urban convenience with this 1.901 acre centrally located lot (Lot 3) in the newly recorded Old Bloomington Road Subdivision in the heart of Tazewell County. This partially wooded lot is nestled alongside the picturesque East Peoria walking trail and provides an ideal canvas for your dream home. Easy access to I-74 and I-474 provides a short commute to Morton or Peoria. Don't miss this opportunity to create your dream home. Additional Rooms: In Platted Subdv.

Contact an agent

contact an agent

Yes, I would like more information. Please use and/or share my information with an independent agent affiliated with the CENTURY 21®  brand to contact me about my real estate needs. By clicking Send message, I request to be contacted by phone or text message and consent to being contacted by automated means. I understand that my consent to receive calls or texts is not a condition of purchasing any property, goods, or services. Alternatively, I understand that I can access real estate services by email or I can contact the agent myself.

If an independent agent affiliated with the CENTURY 21®  brand is not available in the area where I need assistance, I agree to be contacted by a real estate agent affiliated with another brand owned or licensed by Anywhere Real Estate (BHGRE® , Coldwell Banker® , Corcoran® , ERA® , Sotheby's International Realty® ).
 I acknowledge that I have read and agree to theTerms of useandPrivacy notice

Home facts

  • Listing ID #:25014771
  • Added:400 day(s) ago
  • Updated:April 24, 2026 at 12:33 AM

Structure and exterior

  • Lot area:1.9 Acres
  • Lot Features:Pasture

Schools

  • High school:EAST PEORIA
  • Middle school:EAST PEORIA SD#86
  • Elementary school:EAST PEORIA SD#86

Finances and disclosures

  • Price:$70,000
MLS LogoCopyright 2026 Mid-America Regional Information Systems. All rights reserved. Listings courtesy of Mid-America Regional Information Systems as distributed by MLS GRID <Last Updated September 20, 2025. Mid-America Regional Information Systems provides content displayed here (“provided content”) on an “as is” basis and makes no representations or warranties regarding the provided content, including, but not limited to those of non-infringement, timeliness, accuracy, or completeness. Individuals and companies using information presented are responsible for verification and validation of information they utilize and present to their customers and clients. Mid-America Regional Information Systems will not be liable for any damage or loss resulting from use of the provided content or the products available through Portals, IDX, VOW, and/or Syndication. Recipients of this information shall not resell, redistribute, reproduce, modify, or otherwise copy any portion thereof without the expressed written consent of Mid-America Regional Information Systems.