12173 Dodwell Street, Huntley, IL 60142
Local realty services provided by:CENTURY 21 Circle
12173 Dodwell Street,Huntley, IL 60142
$376,990
- 3 Beds
- 3 Baths
- 1,767 sq. ft.
- Townhouse
- Active
Listed by: bill flemming
Office: homesmart connect llc.
MLS#:12630309
Source:MLSNI
Price summary
- Price:$376,990
- Price per sq. ft.:$213.35
- Monthly HOA dues:$230
About this home
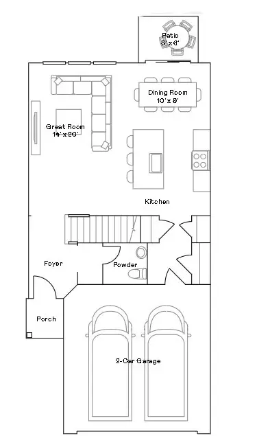
AVAILABLE MAY! Homesite #5303 Introducing the Marianne, a newly designed two-story townhome that seamlessly blends comfort and elegance. This model offers three spacious bedrooms, two full baths, a half bath, and a contemporary open-concept living space, complete with a two-car garage for added convenience. The first floor features the great room, the focal point of the home, effortlessly flowing into the dining area and the chef-inspired kitchen. The kitchen boasts a magnificent island with a breakfast bar, 42" cabinets, polished quartz countertops, and top-of-the-line stainless steel appliances. Luxury vinyl plank flooring spans the main floor, while sliding glass doors open to the patio, ideal for outdoor relaxation. On the second floor, you'll find two generously sized secondary bedrooms, along with the exquisite owner's suite-a true sanctuary to unwind after a busy day. This serene retreat includes a generous walk-in closet and a spa-inspired bath, complete with a deluxe shower for the ultimate relaxation experience. Complete with a convenient upstairs laundry room, the Marianne combines thoughtful design and modern amenities, offering both comfort and style in every corner. *Photos are not this actual home* Regency Square offers an exciting opportunity to own a new home in the heart of Huntley, just minutes from its vibrant and bustling downtown. Designed for a variety of lifestyles, this thoughtfully planned community will feature a three-acre park, dog park, and a scenic lake, all providing residents with a peaceful connection to nature and plenty of space to relax and recharge. Just around the corner, Deicke Park offers expansive green space ideal for picnics, sports, and outdoor fun. With walking trails, a serene pond, and playgrounds for all ages, it's the perfect local retreat for families and individuals alike. Downtown Huntley enhances the lifestyle with its charming small-town atmosphere, tree-lined streets, and a wide variety of boutiques, cafes, and restaurants. Whether you're exploring local artisan shops or enjoying a cozy meal at a favorite eatery, there's something to discover around every corner. For those seeking fun and adventure, the Stingray Bay Aquatic Center is just minutes away. Dive into excitement with a massive pool, thrilling water slides, and a splash park perfect for younger kids-offering a mix of relaxation and recreation for all ages. At Regency Square, you're not just finding a home-you're becoming part of a community rich in amenities, charm, and everyday convenience....
Contact an agent
Home facts
- Year built:2025
- Listing ID #:12630309
- Updated:April 28, 2026 at 06:43 PM
Rooms and interior
- Bedrooms:3
- Total bathrooms:3
- Full bathrooms:2
- Half bathrooms:1
- Rooms Total:6
- Kitchen Description:Dishwasher, Disposal, Microwave, Range, Stainless Steel Appliance(s)
- Basement:Yes
- Living area:1,767 sq. ft.
Heating and cooling
- Cooling:Central Air
- Heating:Forced Air, Natural Gas
- Central air:Yes
Structure and exterior
- Roof:Asphalt
- Year built:2025
- Building area:1,767 sq. ft.
- Lot Features:Common Grounds
Schools
- High school:Huntley High School
- Middle school:Heineman Middle School
- Elementary school:Leggee Elementary School
Utilities
- Water:Public
- Sewer:Public Sewer
Finances and disclosures
- Price:$376,990
- Price per sq. ft.:$213.35
Parking
- Total parking spaces:2
- Parking description:Asphalt, Attached Garage, Garage
- Garage:Yes
- Garage spaces:2
New listings near 12173 Dodwell Street
- New
$400,990Active3 beds 3 baths2,039 sq. ft.12321 Tinsley Street, Huntley, IL 60142
MLS# 12630306Listed by: HOMESMART CONNECT LLC - New
$376,990Active3 beds 3 baths1,767 sq. ft.12173 Dodwell Street, Huntley, IL 60142
MLS# 12630309Listed by: HOMESMART CONNECT LLC - New
$385,490Active2 beds 2 baths1,512 sq. ft.12230 Barcroft Circle, Huntley, IL 60142
MLS# 12630315Listed by: HOMESMART CONNECT LLC - New
$424,900Active2 beds 2 baths1,596 sq. ft.9111 Marks Court, Huntley, IL 60142
MLS# 12630037Listed by: ONE SOURCE REALTY - New
$624,999Active3 beds 4 baths2,365 sq. ft.9242 Enstrom Court, Huntley, IL 60142
MLS# 12620276Listed by: BAIRD & WARNER REAL ESTATE - ALGONQUIN - New
$92,000Active1.11 Acres11114 Musgrave Parkway, Huntley, IL 60142
MLS# 12629226Listed by: COMPASS - New
$317,000Active2 beds 2 baths1,343 sq. ft.12759 Kishwaukee Lane, Huntley, IL 60142
MLS# 12622046Listed by: CENTURY 21 NEW HERITAGE - New
$390,000Active2 beds 2 baths1,604 sq. ft.12668 Rock Island Trail, Huntley, IL 60142
MLS# 12625532Listed by: CENTURY 21 CIRCLE
$479,900Pending4 beds 3 baths2,867 sq. ft.10516 Longfield Drive, Huntley, IL 60142
MLS# 12627392Listed by: RE/MAX HORIZON
$420,000Pending3 beds 3 baths2,490 sq. ft.11830 Blue Bayou Drive, Huntley, IL 60142
MLS# 12612158Listed by: CENTURY 21 NEW HERITAGE