22164 W Casa Bella View, Kildeer, IL 60047
Local realty services provided by:CENTURY 21 Affiliated
22164 W Casa Bella View,Kildeer, IL 60047
$707,900
- 2 Beds
- 2 Baths
- 1,408 sq. ft.
- Single family
- Active
Listed by: scott ottenheimer
Office: baird & warner
MLS#:12629658
Source:MLSNI
Price summary
- Price:$707,900
- Price per sq. ft.:$502.77
- Monthly HOA dues:$300
About this home
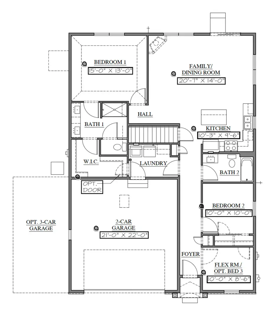
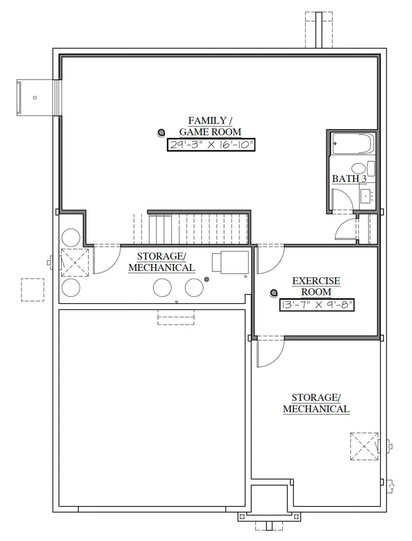
RANCH. NEW CONSTRUCTION! Another exceptional new construction community from the team at Fidelity Wes! Welcome to Casa Bella of Kildeer, one of the Northwest Suburbs' most coveted new construction communities, and one of the last opportunities to own within it! This stunning Aspen model RANCH on Lot 9 offers over 1,400 square feet of beautifully appointed living space on one floor. The showstopping open-concept main level features a chef's kitchen with quartz countertops, a premium LG appliance package, and a dramatic center island that flows effortlessly into the dining area with exterior access, perfect for everyday living and elevated entertaining alike. Generously sized bedrooms and luxurious finishes offer a peaceful, elegant retreat at the end of every day. The optional full basement offers tremendous potential for additional living space, a recreation room, home gym, or in-law suite. An impressive menu of upgrade packages allows you to make it truly your own, including a basement bath rough-in, engineered hardwood and tile flooring, 8-foot doors, expanded deck or patio, elevated trim packages, and more. Set within a beautifully designed private cul-de-sac community featuring wooded views, scenic ponds, and walking paths, Casa Bella offers a serene setting with an exceptional location. Take advantage of top-rated Lake Zurich District 95 schools and just minutes from the upscale dining and shopping of Deer Park Town Center and the Quentin Collection. With only a handful of sites remaining, this is your last chance to secure your place in Casa Bella. Other lots available. Late 2026 delivery....
Contact an agent
Home facts
- Year built:2026
- Listing ID #:12629658
- Updated:April 28, 2026 at 11:01 AM
Rooms and interior
- Bedrooms:2
- Total bathrooms:2
- Full bathrooms:2
- Rooms Total:6
- Dining Description:Combined With Family Room
- Bathrooms Description:Double Sinks
- Kitchen Description:Dishwasher, Disposal, Microwave, Range, Range Hood, Refrigerator, Stainless Steel Appliance(s)
- Basement:Yes
- Basement Description:Full, Unfinished
- Living area:1,408 sq. ft.
Heating and cooling
- Cooling:Central Air
- Heating:Forced Air, Natural Gas
- Central air:Yes
Structure and exterior
- Roof:Asphalt
- Year built:2026
- Building area:1,408 sq. ft.
- Lot area:0.18 Acres
- Lot Features:Landscaped
- Levels:2 Story
Schools
- High school:Lake Zurich High School
- Middle school:Lake Zurich Middle - S Campus
- Elementary school:Isaac Fox Elementary School
Utilities
- Sewer:Public Sewer
Finances and disclosures
- Price:$707,900
- Price per sq. ft.:$502.77
Features and amenities
- Amenities:CO Detectors
Parking
- Total parking spaces:2
- Parking description:Asphalt, Attached Garage, Garage
- Garage:Yes
- Garage spaces:2
New listings near 22164 W Casa Bella View
- New
$922,400Active4 beds 3 baths3,048 sq. ft.22075 W Casa Bella View, Kildeer, IL 60047
MLS# 12628179Listed by: BAIRD & WARNER
$749,900Pending5 beds 3 baths2,273 sq. ft.21329 W North Boschome Circle, Kildeer, IL 60047
MLS# 12614414Listed by: COLDWELL BANKER REALTY
$1,095,000Pending5 beds 5 baths5,000 sq. ft.22844 N Ridgewood Lane, Kildeer, IL 60047
MLS# 12619042Listed by: COMPASS
$1,050,000Pending5 beds 6 baths3,905 sq. ft.22898 N Foxtail Drive, Kildeer, IL 60047
MLS# 12603760Listed by: @PROPERTIES CHRISTIE'S INTERNATIONAL REAL ESTATE
$1,295,000Active4 beds 6 baths4,811 sq. ft.23553 N Sanctuary Club Drive, Kildeer, IL 60047
MLS# 12613714Listed by: BERKSHIRE HATHAWAY HOMESERVICES CHICAGO
$560,000Pending4 beds 2 baths1,795 sq. ft.21075 W Oak Knoll Court, Kildeer, IL 60047
MLS# 12606824Listed by: RE/MAX SUBURBAN
$715,000Active3 beds 3 baths2,442 sq. ft.23155 N Pinehurst Drive, Kildeer, IL 60047
MLS# 12616978Listed by: KELLER WILLIAMS SUCCESS REALTY
$1,095,000Pending5 beds 5 baths3,893 sq. ft.23752 N Sanctuary Club Drive, Kildeer, IL 60047
MLS# 12607882Listed by: @PROPERTIES CHRISTIE'S INTERNATIONAL REAL ESTATE
$1,500,000Active6 beds 7 baths5,275 sq. ft.21660 W Savanna Lane, Kildeer, IL 60047
MLS# 12613614Listed by: BAIRD & WARNER