312 E Ormsby Ave, Louisville, KY 40203
Local realty services provided by:CENTURY 21 Simpson & Associates
312 E Ormsby Ave,Louisville, KY 40203
$637,143
- 8 Beds
- 4 Baths
- 3,184 sq. ft.
- Multi-family
- Active
Listed by: gary aronov
Office: real estate go to
MLS#:1715037
Source:KY_MSMLS
Price summary
- Price:$637,143
- Price per sq. ft.:$200.11
About this home
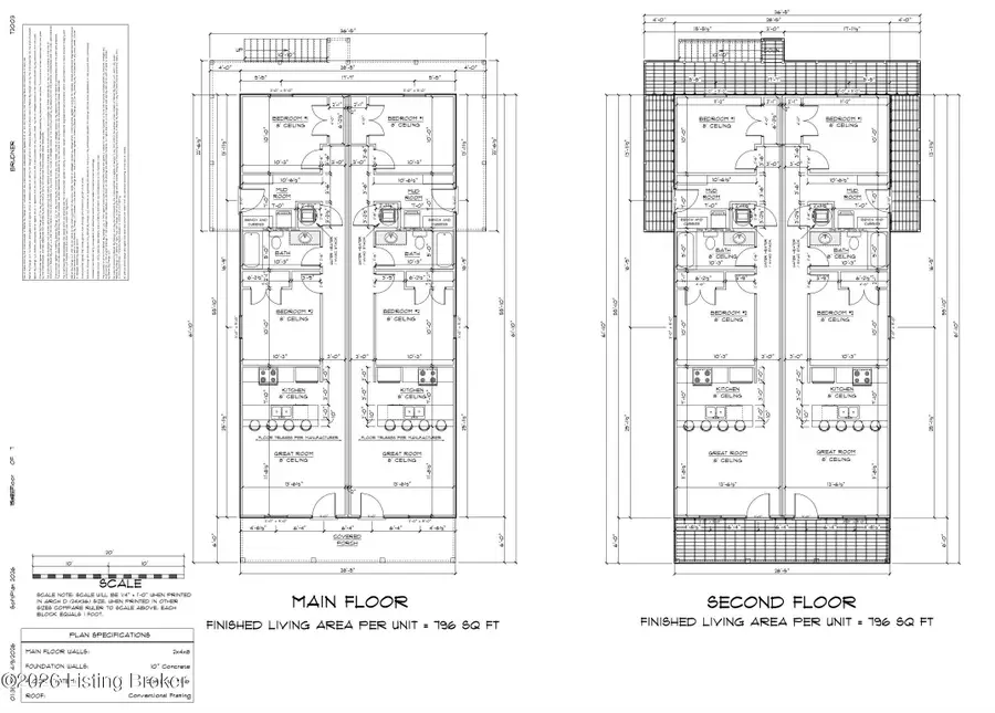
Rare new construction quadplex opportunity with built-in upside. This to-be-built property will feature four well-designed units, each offering 2 bedrooms, 1 bathroom, and approximately 796 square feet of efficient living space—ideal for maximizing rental income and tenant appeal. Each unit will be thoughtfully laid out to provide comfortable living, low maintenance, and strong long-term performance. With new construction, investors can benefit from reduced capital expenditures and modern systems from day one. An additional value-add opportunity may exist with the potential for an accessory dwelling unit (ADU) at the rear of the property. Plans are currently in the approval process for a proposed 3-bedroom, 1.5-bath residence; however, construction of the ADU is subject to final approv by the appropriate governing authorities. Pro forma projections indicate a 7% cap rate, making this an attractive option for investors seeking both stability and future growth.
Contact an agent
Home facts
- Year built:2026
- Listing ID #:1715037
- Added:2 day(s) ago
- Updated:April 21, 2026 at 03:47 PM
Rooms and interior
- Bedrooms:8
- Total bathrooms:4
- Living area:3,184 sq. ft.
Heating and cooling
- Heating:Electric
Structure and exterior
- Year built:2026
- Building area:3,184 sq. ft.
- Lot area:0.22 Acres
- Construction Materials:Vinyl siding, Wood Frame
- Exterior Features:Deck, Porch
Utilities
- Sewer:Public Sewer
Finances and disclosures
- Price:$637,143
- Price per sq. ft.:$200.11
New listings near 312 E Ormsby Ave
$565,000Pending3 beds 3 baths2,524 sq. ft.2112 Strathmoor Blvd, Louisville, KY 40205
MLS# 1715319Listed by: KELLER WILLIAMS COLLECTIVE- New
$185,000Active3 beds 2 baths986 sq. ft.13404 Dixie Hwy, Louisville, KY 40272
MLS# 1715299Listed by: RE/MAX PREMIER PROPERTIES - New
$429,900Active3 beds 4 baths3,352 sq. ft.5508 Pavilion Way, Louisville, KY 40291
MLS# 1715300Listed by: GREEN TEAM REAL ESTATE SERVICES - Open Fri, 12 to 5pmNew
$210,000Active3 beds 1 baths1,025 sq. ft.9601 Polaris Dr, Louisville, KY 40229
MLS# 1715301Listed by: 85W REAL ESTATE - New
$275,000Active4 beds 3 baths2,456 sq. ft.2210 Deveron Dr, Louisville, KY 40216
MLS# 1715302Listed by: RE/MAX PREMIER PROPERTIES - New
$495,000Active3 beds 3 baths2,430 sq. ft.2706 Lime Kiln Ln, Louisville, KY 40222
MLS# 1715304Listed by: SIMPLER.REALESTATE - Open Sun, 2 to 4pmNew
$335,000Active4 beds 2 baths2,276 sq. ft.820 Fetter Ave, Louisville, KY 40217
MLS# 1715307Listed by: KENTUCKY SELECT PROPERTIES - Open Sun, 2 to 4pmNew
$460,000Active4 beds 2 baths2,732 sq. ft.3802 Old Brownsboro Hills Rd, Louisville, KY 40241
MLS# 1715308Listed by: KELLER WILLIAMS COLLECTIVE - New
$329,900Active4 beds 3 baths2,015 sq. ft.840 Melford Ave, Louisville, KY 40217
MLS# 1715309Listed by: RED EDGE REALTY - New
$265,000Active2 beds 2 baths1,233 sq. ft.1006 Mayer Ave, Louisville, KY 40217
MLS# 1715311Listed by: KENTUCKY SELECT PROPERTIES