Cherry Lane #Lot 2, York, ME 03909

Local realty services provided by:CENTURY 21 McLennan & Company
Cherry Lane #Lot 2,York, ME 03909
$1,200,000
  • 3 Beds
  • 3 Baths
  • 2,380 sq. ft.
  • Single family
  • Active
Listed by: susan green, grant parham
Office: green & company603-964-7572
MLS#:5084009
Source:PrimeMLS

Price summary

  • Price:$1,200,000
  • Price per sq. ft.:$345.72
  • Monthly HOA dues:$278

About this home

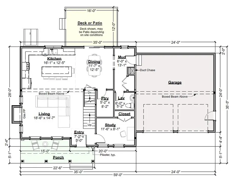
NEW CONSTRUCTION: Introducing Harbor Woods, York's newest community of seven new homes now beginning construction. Nestled amongst conservation land, and minutes to York Harbor and Kittery Point. Harbor Woods is the perfect location to enjoy all that Coastal Maine living provides.This thoughtfully designed Scotch Fox home style offers three bedrooms, home office, and spacious finished bonus room. The living space is centered around the kitchen, with island seating area, open dining and living room centered around a cozy gas fireplace. First floor study provides a beautiful sunny work space. Walk-in pantry with plenty of storage. Up the hardwood stairs is a primary suite with walk-in closet, and private bath with tile shower, linen storage and double vanity. Two additional bedrooms, full bath, and laundry on this floor. Finished "bonus " room over garage has endless options - family room, guest bedroom, hobby space! Enjoy morning coffee on the front farmer's porch or back...

Contact an agent

contact an agent

Yes, I would like more information. Please use and/or share my information with an independent agent affiliated with the CENTURY 21®  brand to contact me about my real estate needs. By clicking Send message, I request to be contacted by phone or text message and consent to being contacted by automated means. I understand that my consent to receive calls or texts is not a condition of purchasing any property, goods, or services. Alternatively, I understand that I can access real estate services by email or I can contact the agent myself.

If an independent agent affiliated with the CENTURY 21®  brand is not available in the area where I need assistance, I agree to be contacted by a real estate agent affiliated with another brand owned or licensed by Anywhere Real Estate (BHGRE® , Coldwell Banker® , Corcoran® , ERA® , Sotheby's International Realty® ).
 I acknowledge that I have read and agree to theTerms of useandPrivacy notice

Home facts

  • Year built:2026
  • Listing ID #:5084009
  • Added:1 day(s) ago
  • Updated:April 17, 2026 at 12:48 AM

Rooms and interior

  • Bedrooms:3
  • Total bathrooms:3
  • Full bathrooms:1
  • Rooms Total:10
  • Flooring:Carpet, Hardwood, Tile
  • Kitchen Description:Dishwasher, Microwave, Refrigerator
  • Basement Description:Concrete, Concrete Floor, Exterior Access, Full, Interior, Interior Access, Storage Space, Unfinished
  • Living area:2,380 sq. ft.

Heating and cooling

  • Cooling:Central AC
  • Heating:Forced Air, Hot Air, Multi Zone

Structure and exterior

  • Year built:2026
  • Building area:2,380 sq. ft.
  • Levels:2.5 Story

Utilities

  • Sewer:Private, Septic

Finances and disclosures

  • Price:$1,200,000
  • Price per sq. ft.:$345.72

Features and amenities

  • Appliances:Refrigerator
  • Amenities:Underground

Parking

  • Parking description:Paved Driveway
  • Garage spaces:2
MLS LogoCopyright 2026 Prime MLS, Inc. All rights reserved. This information is deemed reliable, but not guaranteed. The data relating to real estate displayed on this Site comes in part from the IDX Program of Prime MLS. The information being provided is for consumers’ personal, noncommercial use and may not be used for any purpose other than to identify prospective properties consumers may be interested in purchasing. Data last updated April 17, 2026