721 Anchor Lake, Carriere, MS 39426
Local realty services provided by:CENTURY 21 Eric Enterprises Incorporated
Listed by: donna molina
Office: the real estate company, llc.
MLS#:186396
Source:MS_PRBR
Price summary
- Price:$299,900
- Price per sq. ft.:$196.27
About this home
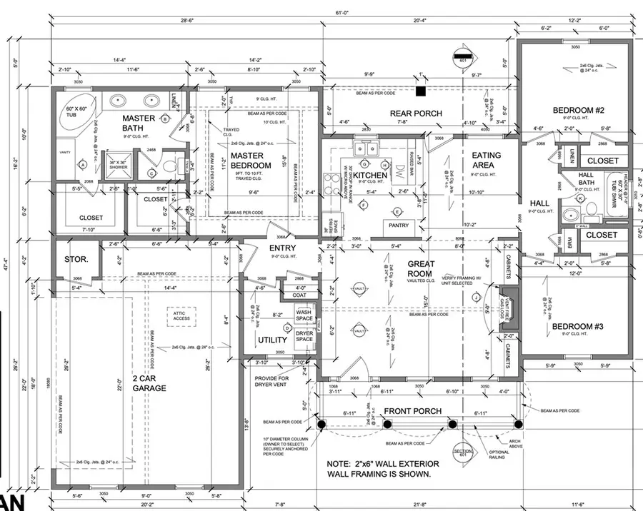
TO BE BUILT....This stylish 3 bedroom, 2 bath home with a little country flare will be adorned with front and rear porches. The arched front columns and spacious porch will be inviting. The living room will feature a vaulted ceiling, fireplace, open concept to eating areas both for dining and bar in kitchen. The spilt floor plan offers privacy for the primary. The walk in closets, separate shower, water closet and soaking tub makes the primary outstanding. All of this is situated on a 1 acre lot with privacy.
Contact an agent
Home facts
- Year built:2026
- Listing ID #:186396
- Added:106 day(s) ago
- Updated:May 24, 2026 at 03:07 PM
Rooms and interior
- Bedrooms:3
- Total bathrooms:2
- Full bathrooms:2
- Rooms Total:7
- Flooring:Laminate, Vinyl
- Kitchen Description:Built-in Microwave, Dishwasher, Range-Electric
- Living area:1,528 sq. ft.
Heating and cooling
- Cooling:Ceiling Fan(s), Central, Electric
- Heating:Central, Electric
Structure and exterior
- Roof:Architectural, Composition
- Year built:2026
- Building area:1,528 sq. ft.
- Lot area:1 Acres
- Construction Materials:Brick
- Exterior Features:Covered Patio, Porch
- Foundation Description:Poured Concrete
- Levels:1 Story
Schools
- Middle school:PRC
Utilities
- Water:Well
- Sewer:Septic Tank
Finances and disclosures
- Price:$299,900
- Price per sq. ft.:$196.27
Features and amenities
- Appliances:Range-Electric
- Amenities:Cathedral Ceilings, Columns, Walk-in Closet
Parking
- Parking description:2 Car, Garage
- Garage spaces:2
New listings near 721 Anchor Lake
$362,610Pending3 beds 2 baths2,040 sq. ft.104 Knoll Creek Dr, Carriere, MS 39426
MLS# 185333Listed by: PROFESSIONAL REALTY- New
$29,900Active1 Acres000 Anchor Lake Rd, Carriere, MS 39426
MLS# 187868Listed by: THE REAL ESTATE COMPANY, LLC - New
$215,000Active4 beds 3 baths1,908 sq. ft.2 Hundley Rd., Carriere, MS 39426
MLS# 147206Listed by: CADENCE REALTY GROUP
$199,000Pending4 beds 3 baths2,128 sq. ft.21 Choctaw Drive, Carriere, MS 39426
MLS# 4150107Listed by: EAGENT GULF COAST (POF)- New
$295,000Active3 beds 3 baths2,304 sq. ft.5270 Hwy 43 N., Carriere, MS 39426
MLS# 187864Listed by: THE SMITH GROUP REALTY - New
$100,000Active6 Acres0 Bell Tower Parkway, Carriere, MS 39416
MLS# 187857Listed by: MISSISSIPPI LAND & HOME SALES LLC - New
$199,000Active3 beds 2 baths1,568 sq. ft.9 W Ridge, Carriere, MS 39426
MLS# 187851Listed by: THE SMITH GROUP REALTY - New
$270,000Active3 beds 3 baths2,054 sq. ft.401 Hide A Way Lane, Carriere, MS 39426
MLS# 187853Listed by: PROFESSIONAL REALTY - New
$349,000Active4 beds 2 baths2,392 sq. ft.4 Papps Circle, Carriere, MS 39426
MLS# 187848Listed by: TYNER PROPERTIES - New
$379,900Active4 beds 2 baths1,882 sq. ft.55 Switch Drive, Carriere, MS 39426
MLS# 4149605Listed by: THE SMITH TEAM REALTY GROUP DBA THE SMITH GROUP REALTY