114 N Harris Street N, China Grove, NC 28023

Local realty services provided by:CENTURY 21 DiGioia Realty
Listed by: melissa yates, richard yates
Office: lantern realty & development llc.
MLS#:4322100
Source:CH
114 N Harris Street N,China Grove, NC 28023
$270,000
  • 5 Beds
  • 2 Baths
  • 2,643 sq. ft.
  • Single family
  • Active

Price summary

  • Price:$270,000
  • Price per sq. ft.:$102.16

About this home

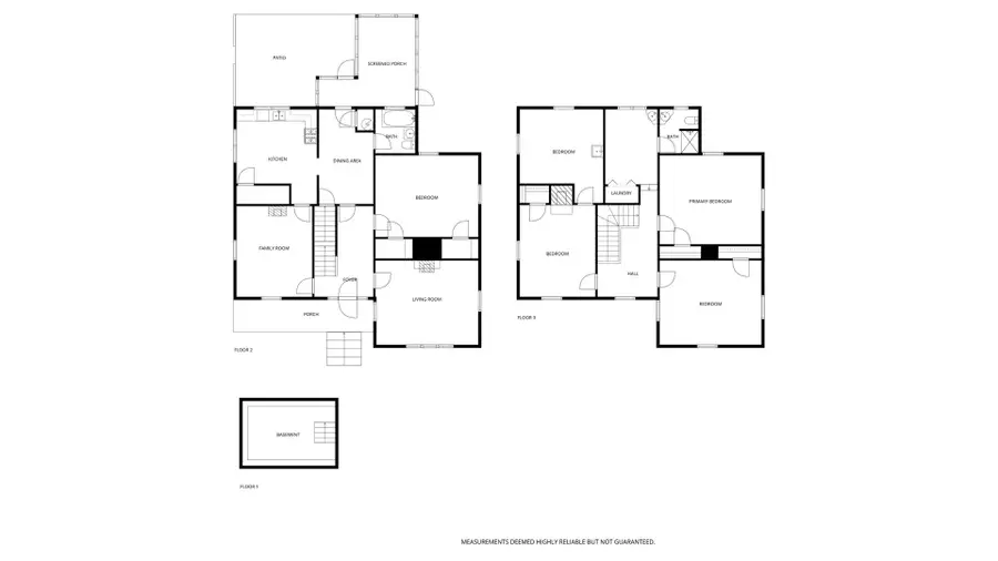
Charming circa-1900 (1881 per Historical Books) home on a spacious 0.55-acre lot in the heart of China Grove. Located on established N Harris Street, this property offers classic character, tall ceilings, and historic appeal with room to update or personalize. New roof replaced in 2024, Upstairs heat pump replaced 2023, central air upstairs 2023, Gaspack downstairs 2010, 3 free standing gas units downstairs approx 10 years old. Large yard with mature trees provides plenty of outdoor space for gardening, pets, or future improvements. Conveniently located near downtown China Grove, parks, shops, and I-85 for easy access to Salisbury, Kannapolis, and Charlotte. A great opportunity for buyers seeking a home with history, potential, and small-town charm.

Contact an agent

contact an agent

Yes, I would like more information. Please use and/or share my information with an independent agent affiliated with the CENTURY 21®  brand to contact me about my real estate needs. By clicking Send message, I request to be contacted by phone or text message and consent to being contacted by automated means. I understand that my consent to receive calls or texts is not a condition of purchasing any property, goods, or services. Alternatively, I understand that I can access real estate services by email or I can contact the agent myself.

If an independent agent affiliated with the CENTURY 21®  brand is not available in the area where I need assistance, I agree to be contacted by a real estate agent affiliated with another brand owned or licensed by Anywhere Real Estate (BHGRE® , Coldwell Banker® , Corcoran® , ERA® , Sotheby's International Realty® ).
 I acknowledge that I have read and agree to theTerms of useandPrivacy notice

Home facts

  • Year built:1900
  • Listing ID #:4322100
  • Updated:March 18, 2026 at 01:20 PM

Rooms and interior

  • Bedrooms:5
  • Total bathrooms:2
  • Full bathrooms:2
  • Kitchen Description:Oven
  • Basement:Yes
  • Living area:2,643 sq. ft.

Heating and cooling

  • Cooling:Heat Pump
  • Heating:Heat Pump, Natural Gas

Structure and exterior

  • Year built:1900
  • Building area:2,643 sq. ft.
  • Lot area:0.55 Acres
  • Construction Materials:Wood
  • Foundation Description:Basement, Crawl Space

Schools

  • High school:Unspecified
  • Elementary school:Unspecified

Utilities

  • Sewer:Public Sewer

Finances and disclosures

  • Price:$270,000
  • Price per sq. ft.:$102.16

Features and amenities

  • Laundry features:Laundry Room, Upper Level

Parking

  • Parking description:Driveway
MLS LogoListings courtesy of Canopy MLS as distributed by MLS GRID. Copyright 2021 Canopy MLS. All rights reserved. Canopy MLS, provides content displayed here (“provided content”) on an “as is” basis and makes no representations or warranties regarding the provided content, including, but not limited to those of non-infringement, timeliness, accuracy, or completeness. Individuals and companies using information presented are responsible for verification and validation of information they utilize and present to their customers and clients. Canopy MLS will not be liable for any damage or loss resulting from use of the provided content or the products available through Portals, IDX, VOW, and/or Syndication. Recipients of this information shall not resell, redistribute, reproduce, modify, or otherwise copy any portion thereof without the expressed written consent of Canopy MLS.