1521 Eastbay Dr., Fayetteville, NC 28312
Local realty services provided by:CENTURY 21 Total Real Estate Solutions
1521 Eastbay Dr.,Fayetteville, NC 28312
$346,400
- 4 Beds
- 3 Baths
- 2,013 sq. ft.
- Single family
- Pending
Listed by: nicole marie andrews
Office: costello real estate & investm
MLS#:10133391
Source:RD
Price summary
- Price:$346,400
- Price per sq. ft.:$172.08
- Monthly HOA dues:$25
About this home
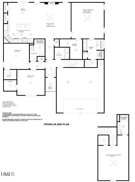
$10K BUILDER/PREFERRED LENDER CREDITS! Spring Delivery! Stunning RANCH plan with 4th bedroom/ bonus and full bath up adjacent to Baywood Golf Club. Enjoy main-level living in a tranquil surrounding with easy highway access to all amenities & Fort Bragg with NO CITY TAXES. This home features a large living room with fireplace focal point, raised ceiling and a door that provides seamless access to the rear patio. Designed for both elegance and functionality, the open kitchen overlooks the living room and features granite countertops, white shaker cabinets with gray accent island, subway tile backsplash and a suite of stainless steel appliances—including a microwave, dishwasher, and smooth top range—for added convenience. The primary suite is tucked away for privacy and showcases a vaulted ceiling and spacious WIC while the en-suite bathroom features a dual sink vanity with a quartz countertop, shaker cabinets, a walk-in shower with tile niche, separate garden tub with tile surround and a linen closet.
Two additional bedrooms are located off the entry hall, each with hall access to a full bathroom that includes a vanity and a tub/shower combination. Durable luxury vinyl plank (LVP) flooring extends through the entry, great room, kitchen, dining area, laundry room and bathrooms. Upstairs is another bedroom or bonus room with full bathroom & large storage closet- an excellent space for a theatre room, watching the game, hosting guests, or even a second primary suite! Enjoy low-maintenance exterior vinyl siding with board and batten and stone accents with gutters and 30-year architectural shingles. This home features a 2-car front-load garage and sits on a sprawling .44 ac lot. All homes in Baywood Terrace include upgrades such as bedroom ceiling fans, painted garages, elevated trim packages. $10K Builder-Preferred Lender Incentive & 1 Year Golf/ Tennis Club and Pool Membership at Baywood Golf Club. First image has been virtually staged to show landscaped potential, actual landscaping plan may vary....
Contact an agent
Home facts
- Year built:2026
- Listing ID #:10133391
- Added:117 day(s) ago
- Updated:February 20, 2026 at 02:11 PM
Rooms and interior
- Bedrooms:4
- Total bathrooms:3
- Full bathrooms:3
- Rooms Total:5
- Flooring:Carpet, Vinyl
- Bathrooms Description:Bathtub/Shower Combination, Walk-In Shower
- Kitchen Description:Electric Range
- Bedroom Description:Second Primary Bedroom
- Living area:2,013 sq. ft.
Heating and cooling
- Cooling:Ceiling Fan(s), Electric
- Heating:Electric
Structure and exterior
- Roof:Shingle
- Year built:2026
- Building area:2,013 sq. ft.
- Lot area:0.44 Acres
- Architectural Style:Ranch
- Construction Materials:Stone Veneer, Vinyl Siding
- Exterior Features:Patio
- Foundation Description:Slab
- Levels:One and One Half
Schools
- High school:Cumberland - Cape Fear
- Middle school:Cumberland County Schools
- Elementary school:Cumberland County Schools
Utilities
- Water:Public
- Sewer:Septic Tank
Finances and disclosures
- Price:$346,400
- Price per sq. ft.:$172.08
- Tax amount:$454
Features and amenities
- Appliances:Electric Range
- Laundry features:Lower Level
- Amenities:Granite Counters, Pantry, Quartz Counters, Vaulted Ceiling(s)
Parking
- Parking description:Concrete, Driveway, Garage, Garage Faces Front
- Garage:Yes
- Garage spaces:2
New listings near 1521 Eastbay Dr.
- New
$179,900Active3 beds 1 baths1,132 sq. ft.1209 Martindale Drive, Fayetteville, NC 28304
MLS# 758810Listed by: REALTY ONE GROUP LIBERTY - New
$269,900Active3 beds 2 baths1,511 sq. ft.178 King Road, Fayetteville, NC 28306
MLS# 758814Listed by: REALTY ONE GROUP LIBERTY - New
$260,000Active3 beds 3 baths1,784 sq. ft.6709 Lune Circle, Fayetteville, NC 28314
MLS# LP758714Listed by: KELLER WILLIAMS REALTY (FAYETTEVILLE) - New
$190,000Active3 beds 2 baths1,132 sq. ft.319 Nugget Court, Fayetteville, NC 28311
MLS# 758808Listed by: JASON MITCHELL GROUP - Open Sat, 2 to 4pmNew
$499,999Active3 beds 3 baths2,378 sq. ft.220-404 Hugh Shelton Loop, Fayetteville, NC 28301
MLS# LP758803Listed by: MILITARY FAMILY REALTY LLC - New
$615,000Active5 beds 4 baths3,395 sq. ft.4633 Weaverhall Drive, Fayetteville, NC 28314
MLS# 758751Listed by: HOME PRO USA REALTY.COM - New
$289,999Active4 beds 2 baths1,864 sq. ft.208 Haverhill Drive, Fayetteville, NC 28314
MLS# LP758713Listed by: WHITE HOUSE INVESTMENT GROUP
$525,000Active6.52 Acres2016 Hoke Loop Road, Fayetteville, NC 28314
MLS# 732859Listed by: COLDWELL BANKER ADVANTAGE - FAYETTEVILLE- New
$299,500Active3 beds 3 baths1,994 sq. ft.7787 Trappers Road, Fayetteville, NC 28311
MLS# 758802Listed by: COLDWELL BANKER ADVANTAGE - FAYETTEVILLE - Open Sat, 1 to 3pmNew
$499,999Active3 beds 3 baths2,378 sq. ft.220-404 Hugh Shelton Loop #404, Fayetteville, NC 28301
MLS# 758803Listed by: MILITARY FAMILY REALTY LLC