230 Chavasse Avenue, Henderson, NC 27536
Local realty services provided by:CENTURY 21 Total Real Estate Solutions
230 Chavasse Avenue,Henderson, NC 27536
$245,000
- 3 Beds
- 2 Baths
- 2,050 sq. ft.
- Single family
- Active
Listed by: jim allen, daphne anderson-wall
Office: coldwell banker hpw
MLS#:10141182
Source:RD
Price summary
- Price:$245,000
- Price per sq. ft.:$119.51
About this home
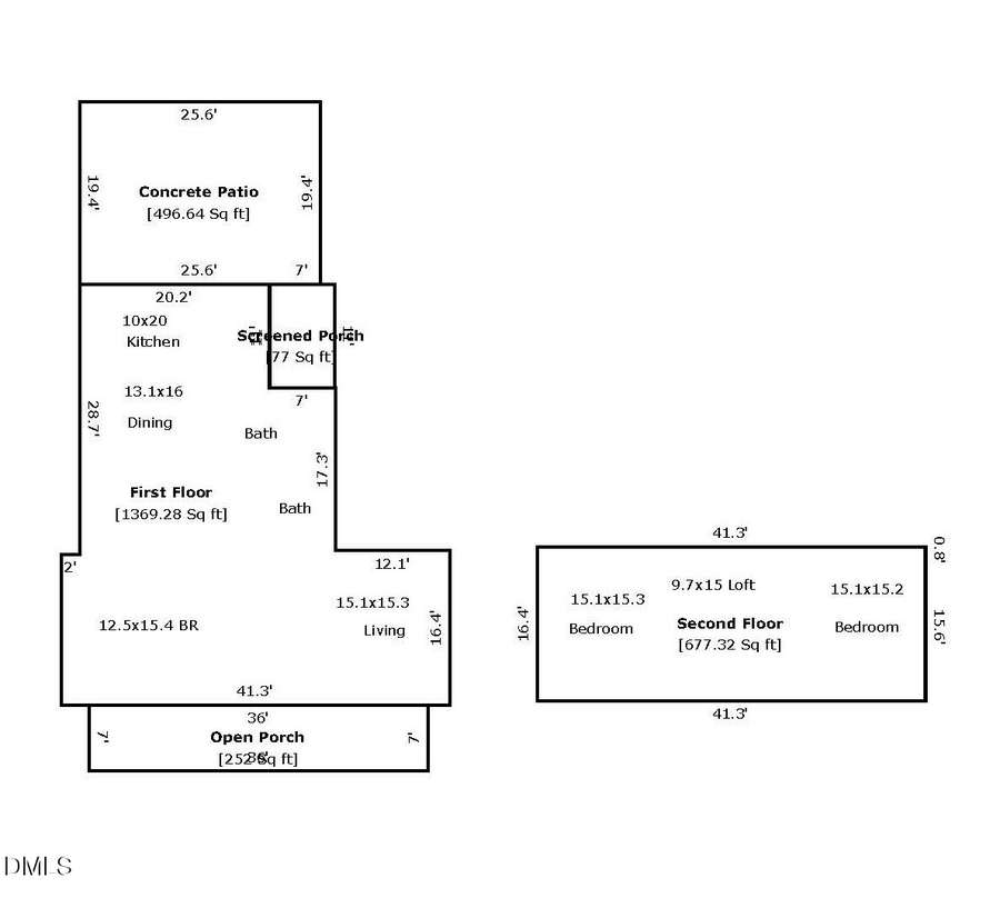
Welcome to this classic turn-of-the-century farmhouse, rich with character and timeless appeal. Built in 1904, this 3-bedroom, 2-bath home offers approximately 2,050 square feet on a .44-acre homesite in Henderson.
Original hardwood floors, high ceilings, and generously sized rooms showcase the craftsmanship of a bygone era, paired with extensive recent updates throughout.
The interior has been fully repainted, including walls and ceilings. Kitchen and bathroom cabinets have been painted, new LVT flooring installed in the kitchen and baths, and updated quarter round added. Bathroom improvements include resurfaced sink and tub/shower insert, a new mirror, and updated primary bath hardware with new shower valve and faucet.
All light fixtures have been replaced, with additional lighting added in the stairwell, primary bedroom, upstairs hallway, and transitional hall. Most light switches and electrical receptacles have been replaced. Stairwell paneling was removed, plaster walls resurfaced and painted, stair railings painted black, the fireplace refreshed with black paint, upstairs drop ceiling tiles updated, and the front door repainted.
Major improvements include a brand-new roof installed June 2025 with a 5-year transferable warranty, crawl space improvements with vapor barrier, and a 2-year transferable home warranty.
Enjoy the expansive front porch and rear screened porch overlooking a level, landscaped yard with garden shed, garden spot, and ample parking.
Conveniently located near I-85 and U.S. Route 1, approximately 40-45 miles to Raleigh and about 40 miles to Durham, with nearby access to Kerr Lake, Holding Park, and Hix Recreation Park.
Schedule your private tour today!...
Contact an agent
Home facts
- Year built:1904
- Listing ID #:10141182
- Added:104 day(s) ago
- Updated:April 29, 2026 at 03:05 PM
Rooms and interior
- Bedrooms:3
- Total bathrooms:2
- Full bathrooms:2
- Rooms Total:9
- Flooring:Hardwood, Vinyl
- Dining Description:Eat-in Kitchen
- Bathrooms Description:Bathtub/Shower Combination, Shower Only
- Kitchen Description:Electric Range, Range Hood, Self Cleaning Oven
- Bedroom Description:Master Downstairs
- Living area:2,050 sq. ft.
Heating and cooling
- Cooling:Ceiling Fan(s), Central Air, Heat Pump
- Heating:Central, Heat Pump, Natural Gas
- Central air:Yes
Structure and exterior
- Roof:Shingle
- Year built:1904
- Building area:2,050 sq. ft.
- Lot area:0.45 Acres
- Lot Features:Back Yard, Landscaped
- Construction Materials:Vinyl Siding
- Exterior Features:Front Porch, Garden, Rain Gutters, Rear Porch, Screened
- Levels:Two
Schools
- High school:Vance - Vance County
- Middle school:Vance - Vance County
- Elementary school:Vance - Clark Street
Utilities
- Water:Public
- Sewer:Public Sewer
Finances and disclosures
- Price:$245,000
- Price per sq. ft.:$119.51
- Tax amount:$1,023
Features and amenities
- Appliances:Electric Range, Range Hood, Self Cleaning Oven
- Laundry features:Electric Dryer Hookup, Main Level, Washer Hookup
- Amenities:Built-in Features, Ceiling Fan(s), Crown Molding, High Ceilings
Parking
- Parking description:Driveway, Gravel
New listings near 230 Chavasse Avenue
- New
$60,000Active1 Acres0 Lot 19, Henderson, NC 27537
MLS# 10162980Listed by: BEYCOME BROKERAGE REALTY LLC - New
$165,000Active3 beds 2 baths1,501 sq. ft.432 N Chestnut Street, Henderson, NC 27536
MLS# 10162986Listed by: NINJA REALTY - New
$199,900Active3 beds 1 baths1,088 sq. ft.1402 S Williams Street, Henderson, NC 27536
MLS# 10162804Listed by: INSIGHT RESIDENTIAL REALTY LLC - Coming Soon
$239,000Coming Soon3 beds 2 baths110 Quail Ridge, Henderson, NC 27536
MLS# 10162776Listed by: COLDWELL BANKER ADVANTAGE HEND - New
$244,000Active3 beds 2 baths1,644 sq. ft.7829 Nc 39, Henderson, NC 27537
MLS# 10162697Listed by: KEYSTONE BROKERAGE & ASSOCIATE - New
$365,000Active4 beds 3 baths2,215 sq. ft.84 Weybossett Road, Henderson, NC 27537
MLS# 10162669Listed by: COLDWELL BANKER ADVANTAGE HEND
$50,000Pending1 Acres338 Abbott Road, Henderson, NC 27537
MLS# 10162637Listed by: CENTURY 21 FOLKS PROPERTIES- New
$215,000Active3 beds 2 baths1,664 sq. ft.230 Big Buck Road, Henderson, NC 27537
MLS# 10162498Listed by: THE REAL ESTATE CO. NC | VA - New
$769,000Active3 beds 3 baths2,057 sq. ft.363 Pool Rock Shores Lane, Henderson, NC 27536
MLS# 10162476Listed by: COLDWELL BANKER ADVANTAGE HEND - New
$25,000Active0.73 Acres4 Plum Nutty Road, Henderson, NC 27537
MLS# 10162369Listed by: BEYCOME BROKERAGE REALTY LLC