204 Candytuft Court, Lexington, NC 27295

Local realty services provided by:CENTURY 21 Total Real Estate Solutions
204 Candytuft Court,Lexington, NC 27295
$315,000
  • 3 Beds
  • 2 Baths
  • - sq. ft.
  • Single family
  • Pending
Listed by: makayla hall, becca thomason
Office: mungo homes336-765-9661
MLS#:1212094
Source:NC_TRIAD

Price summary

  • Price:$315,000
  • Monthly HOA dues:$50

About this home

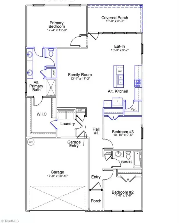
ONE-LEVEL LIVING! Welcome to homesite 66 at Fieldstone featuring the Lawrence floor plan. This new construction home offers true single-level living with the primary suite, additional bedrooms, and main living areas all conveniently located on the first floor. The open layout creates an easy flow between the kitchen, dining, and family room. The kitchen features stone gray cabinetry, granite countertops, and a GE stainless steel appliance package including a gas range. The primary suite offers a comfortable retreat with dual vanities, quartz countertops, and a spacious 5-foot shower. Enjoy outdoor living on the covered back porch, plus the convenience of an automatic irrigation system while the HOA takes care of the lawn maintenance for you. Residents of Fieldstone enjoy fantastic community amenities including a pool, clubhouse, and sidewalks that make morning walks or evening strolls a pleasure. Come check out all that Fieldstone has to offer! Estimated completion in June.

Contact an agent

contact an agent

Yes, I would like more information. Please use and/or share my information with an independent agent affiliated with the CENTURY 21®  brand to contact me about my real estate needs. By clicking Send message, I request to be contacted by phone or text message and consent to being contacted by automated means. I understand that my consent to receive calls or texts is not a condition of purchasing any property, goods, or services. Alternatively, I understand that I can access real estate services by email or I can contact the agent myself.

If an independent agent affiliated with the CENTURY 21®  brand is not available in the area where I need assistance, I agree to be contacted by a real estate agent affiliated with another brand owned or licensed by Anywhere Real Estate (BHGRE® , Coldwell Banker® , Corcoran® , ERA® , Sotheby's International Realty® ).
 I acknowledge that I have read and agree to theTerms of useandPrivacy notice

Home facts

  • Year built:2026
  • Listing ID #:1212094
  • Added:42 day(s) ago
  • Updated:March 21, 2026 at 07:50 PM

Rooms and interior

  • Bedrooms:3
  • Total bathrooms:2
  • Full bathrooms:2

Heating and cooling

  • Cooling:Central Air
  • Heating:Forced Air, Natural Gas
  • Central air:Yes

Structure and exterior

  • Year built:2026
  • Construction Materials:Stone, Vinyl Siding
  • Foundation Description:Slab

Utilities

  • Water:Public
  • Sewer:Public Sewer

Finances and disclosures

  • Price:$315,000

Parking

  • Parking description:Attached, Attached Garage, Garage
  • Garage spaces:2
MLS Logo2026 Triad MLS, Inc. All rights reserved. IDX information is provided exclusively for personal, non-commercial use, and may not be used for any purpose other than to identify prospective properties consumers may be interested in purchasing. Information is deemed reliable but not guaranteed. This site will be monitored for ‘scraping’ and any use of search facilities of data on the site other than by potential buyers/sellers is prohibited. All Sale data is for informational purposes only and is not an indication of a market analysis or appraisal. Properties marked with the Triad MLS, Inc. icon are provided courtesy of the Triad MLS, Inc.’s, Internet Data Exchange Database.