909 Harold Andrews Road, Siler City, NC 27344

Local realty services provided by:CENTURY 21 Total Real Estate Solutions
909 Harold Andrews Road,Siler City, NC 27344
$5,500,000
  • 98.54 Acres
  • Lots / Land
  • Pending
Listed by: bob atkinson
Office: atkinson properties group
MLS#:2487756
Source:RD

Price summary

  • Price:$5,500,000

About this home

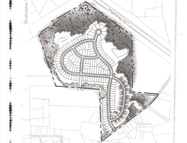
THIS LIKELY WILL BE THE NEXT RESIDENTIAL SUBDIVISON APPROVED FOR CONSTRUCTION IN SILER CITY. IT HAS POTENTIAL TO BE A MULTI-FAMILY SITE AS WELL UNDER IT'S RECENTLY APPROVED R3-C REZONING. A LOT OF GROWTH IS BEING PLANNED IN SILER AS THE 2 LARGE MEGA SITES ARE UNDER CONTRUCTION ON US 64 AND 421 IN LIBERTY AND VINFAST COMING TO MONCURE. NOW IS THE TIME !!!!!!

Contact an agent

contact an agent

Yes, I would like more information. Please use and/or share my information with an independent agent affiliated with the CENTURY 21®  brand to contact me about my real estate needs. By clicking Send message, I request to be contacted by phone or text message and consent to being contacted by automated means. I understand that my consent to receive calls or texts is not a condition of purchasing any property, goods, or services. Alternatively, I understand that I can access real estate services by email or I can contact the agent myself.

If an independent agent affiliated with the CENTURY 21®  brand is not available in the area where I need assistance, I agree to be contacted by a real estate agent affiliated with another brand owned or licensed by Anywhere Real Estate (BHGRE® , Coldwell Banker® , Corcoran® , ERA® , Sotheby's International Realty® ).
 I acknowledge that I have read and agree to theTerms of useandPrivacy notice

Home facts

  • Listing ID #:2487756
  • Added:1140 day(s) ago
  • Updated:February 10, 2026 at 08:36 AM

Structure and exterior

  • Lot area:98.54 Acres
  • Lot Features:Level, Rolling Slope, Sloped, Wooded

Schools

  • High school:Chatham - Jordan Matthews
  • Middle school:Chatham - Horton
  • Elementary school:Chatham - Pittsboro

Utilities

  • Water:Public, Water Available

Finances and disclosures

  • Price:$5,500,000
MLS LogoListings marked with a Doorify MLS icon are provided courtesy of the Doorify MLS, of North Carolina, Internet Data Exchange Database. Brokers make an effort to deliver accurate information, but buyers should independently verify any information on which they will rely in a transaction. The listing broker shall not be responsible for any typographical errors, misinformation, or misprints, and they shall be held totally harmless from any damages arising from reliance upon this data. This data is provided exclusively for consumers’ personal, non-commercial use. Copyright 2026 Doorify MLS of North Carolina. All rights reserved.