Map 23 Lot 11-25 Frederick Lane, Nottingham, NH 03290
Local realty services provided by:CENTURY 21 Barbara Patterson
Listed by: heather heigis, donna beauregard
Office: heigis real estate llc.603-817-5605
MLS#:5080574
Source:PrimeMLS
Price summary
- Price:$1,225,000
- Price per sq. ft.:$269.11
- Monthly HOA dues:$237
About this home
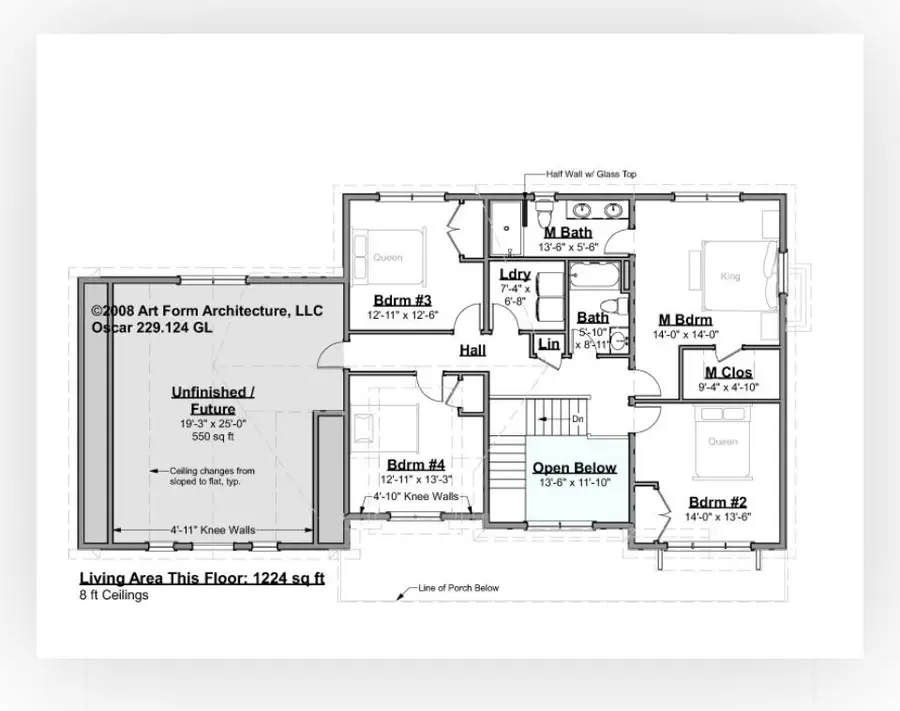
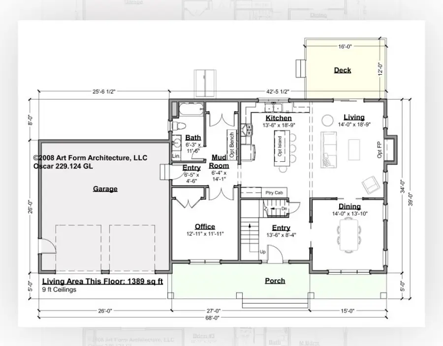
Welcome to Peekaboo Estates, Nottingham’s newest luxury subdivision, where homes are thoughtfully placed to maximize privacy and preserve the natural landscape. Mature, indigenous trees and intentional lot layouts create a setting that feels tucked away and peaceful, yet still close to everything you need. Here, you have the flexibility to bring your own plans or build from a selection of architecturally designed homes. Featured is the “Oscar” plan, a spacious and highly adaptable design offering approximately 3,100+ sq ft of living space, with 4 bedrooms and 3 baths, plus options for additional finished space to suit your needs. Designed with modern living in mind, this home offers an expansive, open layout where the kitchen, dining, and living areas come together effortlessly. Large, well-proportioned rooms and flexible spaces make it easy to accommodate everything from entertaining to working from home or hosting extended family. Quality is at the forefront, with high-end finishes, energy-efficient systems, and craftsmanship you can feel. Buyers will appreciate the ability to customize selections and create a home that is truly their own. Peekaboo Estates offers a rare blend of new construction and natural beauty set in desirable Nottingham with convenient access to Route 4, the Seacoast, and surrounding towns. A unique opportunity to build a home that fits your lifestyle in a setting that feels like a retreat....
Contact an agent
Home facts
- Listing ID #:5080574
- Added:57 day(s) ago
- Updated:May 21, 2026 at 10:23 AM
Rooms and interior
- Bedrooms:4
- Total bathrooms:3
- Full bathrooms:3
- Rooms Total:7
- Basement Description:Concrete, Interior
- Living area:3,163 sq. ft.
Heating and cooling
- Cooling:Central AC
- Heating:Forced Air
Structure and exterior
- Building area:3,163 sq. ft.
- Lot area:2 Acres
- Levels:2 Story
Schools
- High school:Coe Brown-Northwood Acad
- Elementary school:Nottingham Elementary School
Utilities
- Sewer:Private
Finances and disclosures
- Price:$1,225,000
- Price per sq. ft.:$269.11
Parking
- Parking description:Gravel Driveway
- Garage spaces:2
New listings near Map 23 Lot 11-25 Frederick Lane
- Coming SoonOpen Fri, 3 to 5pm
$599,000Coming Soon3 beds 3 baths112 Gile Road, Nottingham, NH 03290
MLS# 5089562Listed by: DUSTON LEDDY REAL ESTATE - New
$949,900Active3 beds 1 baths968 sq. ft.47 Sachs Road, Nottingham, NH 03290
MLS# 5089394Listed by: COLDWELL BANKER REALTY - PORTSMOUTH, NH
$399,900Pending2 beds 2 baths1,560 sq. ft.338 Stage Road, Nottingham, NH 03290
MLS# 5088165Listed by: HEIGIS REAL ESTATE LLC.- Open Sat, 10am to 12pm
$599,000Active3 beds 2 baths1,980 sq. ft.249 Cooper Hill Road, Nottingham, NH 03290
MLS# 5086314Listed by: HEIGIS REAL ESTATE LLC.
$499,900Pending2 beds 1 baths924 sq. ft.22 Pine Street, Nottingham, NH 03290
MLS# 5087580Listed by: NEW SPACE REAL ESTATE, LLC
$983,015Active3 beds 2 baths1,965 sq. ft.Lot 5 Pawtuckaway Ridge, Nottingham, NH 03290
MLS# 5087852Listed by: THE GOVE GROUP REAL ESTATE, LLC
$669,000Active3 beds 2 baths2,947 sq. ft.38 Garland Road, Nottingham, NH 03290
MLS# 5087487Listed by: PJMREALESTATE.COM
$650,000Active3 beds 3 baths2,160 sq. ft.21 Brustle Road, Nottingham, NH 03290
MLS# 5087211Listed by: RE/MAX SHORELINE
$679,000Active3 beds 2 baths1,084 sq. ft.2 Mccrillis Road, Nottingham, NH 03290
MLS# 5086848Listed by: REMAX HOME SWEET HOME
$450,000Pending2 beds 1 baths1,344 sq. ft.345 Stage Road, Nottingham, NH 03290
MLS# 5085912Listed by: KW COASTAL AND LAKES & MOUNTAINS REALTY/ROCHESTER