TBD Silver Lake Scotchtown Road, Middletown, NY 10940
Local realty services provided by:CENTURY 21 American Homes
TBD Silver Lake Scotchtown Road,Middletown, NY 10940
$525,000
- 0.38 Acres
- Lots / Land
- Active
Listed by: jason l mcgovern, matthew w. gibbs
Office: keller williams hudson valley
MLS#:928228
Source:OneKey MLS
Price summary
- Price:$525,000
About this home
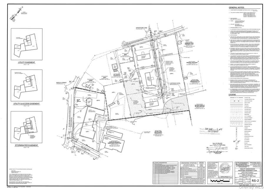
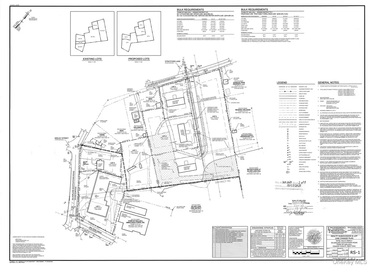
Attention Builders and Developers: Presenting a rare, fully-approved 3-lot subdivision on Silverlake Scotchtown Road in the desirable Town of Wallkill, ready for the construction of three new two-family homes. Each lot is designed to accomodate a 32x80 structure which is large enough for each unit to include 3 bedrooms, 2 baths and a 1 car garage. Seller does not have architectural plans so builder/developer can decide exactly what they want to build. This is a shovel-ready project as all major hurdles have been cleared: the plans for the Patel Multi-Family Realty Subdivision have been granted Planning Board approval and the map is officially filed, eliminating months of risk and carrying costs. The infrastructure is approved for connection to Municipal Water, Municipal Sewer, and Natural Gas (O&R). The location offers superior convenience, situated just off Route 211 with excellent proximity to major highways like I-84 and Route 17/I-86, and only minutes from the Metro North train, making the final units highly marketable. The approved zoning allows the buyer significant flexibility to provide their own architectural drawings to the Town, enabling them to tailor the unit sizes and finishes to the current market. A previous design concept centered around high-yield duplexes featuring spacious 3-bedroom, 2-bathroom units with a 1-car garage. This offering includes Lot 3 (+/- 0.432 acres), Lot 4 (+/- 0.867 acres), and Lot 5 (+/- 2.5 acres). For streamlined long-term management, a common/shared driveway and a common use and maintenance agreement are already prepared and in place. This is a premium opportunity for a developer looking to maximize their construction timeline and profitability with a de-risked site. Contact the listing agent today to receive all filed site plans and engineering reports (See Documents for the Filed Map)...
Contact an agent
Home facts
- Listing ID #:928228
- Added:133 day(s) ago
- Updated:March 12, 2026 at 03:28 PM
Structure and exterior
- Lot area:0.38 Acres
- Lot Features:Part Wooded
Schools
- High school:Middletown High School
- Middle school:Middletown Twin Towers Middle Sch
- Elementary school:Presidential Park Elementary
Utilities
- Water:Public, Water Available
- Sewer:Public Sewer, Sewer Available
Finances and disclosures
- Price:$525,000
- Tax amount:$1,160 (2025)
New listings near TBD Silver Lake Scotchtown Road
- New
$550,000Active3 beds 3 baths2,809 sq. ft.7 Starhaven Avenue, Middletown, NY 10940
MLS# 970509Listed by: REAL ESTATE CIRCUIT INC - New
$199,999Active2 beds 1 baths1,140 sq. ft.29 Parsons Lane, Middletown, NY 10940
MLS# 963209Listed by: RE/MAX DISTINGUISHED HMS.&PROP - New
$365,000Active3 beds 2 baths1,752 sq. ft.29 Van Burenville Road, Middletown, NY 10940
MLS# 970358Listed by: COMPASS GREATER NY, LLC - New
$699,900Active4 beds 3 baths2,174 sq. ft.TBD Kirbytown Road, Middletown, NY 10940
MLS# 970130Listed by: REALTY PROMOTIONS INC - New
$278,000Active2 beds 1 baths1,142 sq. ft.108 Sproat Street, Middletown, NY 10940
MLS# 968831Listed by: HOWARD HANNA RAND REALTY - Open Sun, 1 to 3pmNew
$429,000Active3 beds 2 baths1,663 sq. ft.17 Last Road, Middletown, NY 10941
MLS# 969654Listed by: YOURHOMESOLD GUARANTEED REALTY - Open Sun, 11am to 1pmNew
$259,000Active1 beds 2 baths960 sq. ft.331 Highland Ave Extension, Middletown, NY 10940
MLS# 967269Listed by: KELLER WILLIAMS HUDSON VALLEY - Open Sat, 11am to 1pmNew
$369,000Active3 beds 2 baths1,646 sq. ft.5 Loch Invar Lane, Middletown, NY 10941
MLS# 969140Listed by: KELLER WILLIAMS REALTY - New
$369,000Active4 beds 4 baths1,692 sq. ft.19 Red Barn Lane, Middletown, NY 10940
MLS# 967228Listed by: KELLER WILLIAMS HUDSON VALLEY - New
$369,900Active4 beds 2 baths1,602 sq. ft.15 Scotchtown Place, Middletown, NY 10941
MLS# 965998Listed by: DIMATTEO REALTY LLC